随波浪起伏的温柔
129
作品说明
- 项目类型:住宅公寓
- 项目地点:武汉市
- 建筑面积:128㎡
- 项目造价:45万元
- 主案设计师: 刘璐
- 参与设计师:刘璐
- 竣工时间:2024/11
- 设计机构:武汉咫尺设计
-
项目定位:本案为年轻夫妻两口之家,在快节奏的当下,家需要成为他们心灵的栖息地,温馨的避风港,在设计进行时,我越来越注重情绪的表达:结束忙碌的一天,归家踏入专属松弛的小角落,陷在柔软沙发抱枕里,暖了身心。
-
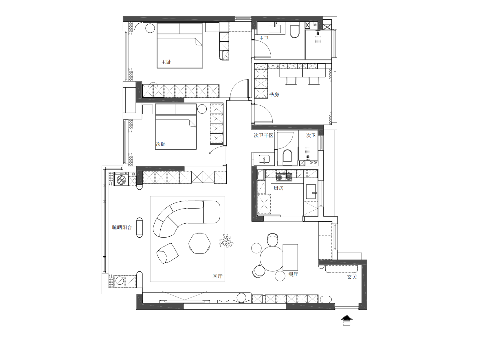
空间意境:推开家门,就会被浓烈的色彩冲击视觉感官,端景柜静静伫立,承担收纳的重任也展示屋主的个性。在软装的选择上都是采用低矮敦厚的款式,搭配低饱和的粉色绿色营造出舒适氛围,在这里与家人一起看看电视或是独自窝在沙发说看看书,都是一种享受。主卧维持柔和的暖色调,卧床与卫门之间用衣柜隔断,床头造型穿插至衣帽间,形成灵活通透的空间关系,光线得以均匀散布在空间各处。次卧采用复古的床头配色加上绒面质感的定制床靠,让白色系现代家居多了一丝温馨,搭配中古风床头柜加强氛围感。
-
空间布局:大通厅的布局,公共区域可以轻松容纳一家人的生活起居,大面用洁净的白色打底,为生活做减法,在流动的曲线中感受生活的从容与松弛。烹饪是屋主热爱的,作为需要长时间停留的区域,用岛台+圆桌+西厨柜的组合大大提升餐厅空间的利用率;餐桌可以根据用餐人数来挪动位子,为了适应这种不确定的摆放方式,在灯具的选择上就采用了可任意调节位子的摇臂灯,厨房使用频率高,封闭式更贴合屋主的习惯,为扩大门洞的视觉效果及更宽面的采光,厨房门采用一固一滑的方式呈现,左侧的固定扇采用的双方格玻璃,对冰箱高柜的侧边稍作遮挡,右侧移门则是超白透明玻璃,这样组合不仅保证了光线尽可能多的穿进室内也更加美观。
-
设计选材:电视背景处石材的精致纹理与GRG材料柔和的弧度碰撞出不一样的火花,穿插于台面的球体也是点睛之笔,同样用GRG材料定制,让台面的轻盈感多了一分踏实。考虑减少家务负担去掉了地毯的形式,在客厅区域划分出一块方型铺设地板,既保留了温润的质感又加强了围合感,让客厅成为空间中十分有辨识度的存在。
-
用户体验:作为刚刚完成新家装修的业主,我想分享一下与设计师合作的整体感受。从最初的设计沟通到最终的落地呈现,整个过程让我深感选择以为专业负责的设计师是多么重要。在设计方案阶段,设计师展现了极高的专业度和耐心,我们前后沟通多次,每次她都能精准捕捉到我的有需求,并在实用性和美学之间找到平衡。尤其对于空间布局和细节处理,她考虑的非常周全,甚至提前帮我规避了一些后期可能遇到的问题。最终落地效果我非常满意,实景几乎完美还原了设计图,整体氛围正是我想要的家的感觉,很多朋友来访时都称赞设计很有质感,这也让我觉得当初的选择非常值得,我也很乐意将这位设计师推荐给身边的朋友,感谢设计师的付出,期待未来有机会再次合作。
0
0

认证 · 让您身份增值