-
项目定位:客群定位:中高端改善型住宅业主,注重居住品质与审美表达,追求“低调的奢华”,兼顾家庭日常使用与社交会客需求。
2. 风格定位:现代轻奢风格,融合现代简约的利落线条与轻奢元素的精致质感,拒绝过度繁复,强调材质与细节的高级感。
3. 功能定位:集休闲观影、家庭互动、轻社交于一体的核心起居空间。
二、设计策划要点
1. 材质与色彩策划
◦ 主材质:大理石(背景墙)、皮革(沙发)、柔光石材/瓷砖(地面)、木饰面,通过不同质感的材质碰撞营造高级感;
◦ 主色调:暖米色+浅灰为基底,搭配黑色金属、大理石纹理做点缀,色调柔和且层次分明。
2. 空间布局策划
◦ 采用大开间横厅布局,弱化空间分割,让客厅视野更开阔;
◦ 家具摆放遵循“集中式休闲区”思路,沙发+茶几形成核心互动区,电视墙区域聚焦观影功能,动线流畅无遮挡。
3. 灯光与软装策划
◦ 灯光:结合无主灯设计(线性灯、筒灯)+ 落地灯,打造多层次的氛围光,兼顾照明与氛围感;
◦ 软装:以艺术雕塑、简约花艺、质感地毯作为点缀,少而精,避免视觉杂乱,强化轻奢的艺术调性。
4. 功能细节策划
◦ 电视墙整合收纳与展示功能,满足影音设备摆放与藏品展示需求;
◦ 沙发选择大尺寸舒适款,适配家庭休闲与待客场景 -
空间意境:核心是打破传统轻奢的元素堆砌模式,以“材质叙事+空间共生”重构高端居住的体验感,具体创新点可分为三大维度:
一、材质运用的创新
1. 石材的“非装饰化”使用
摒弃传统轻奢中大理石仅作背景墙装饰的单一用法,将大理石(包括艺术雕塑台、茶几台面、地面)作为空间结构元素,通过纹理的连续呼应(如背景墙石材与摆件台石材的纹路衔接),让材质成为空间的视觉主线,而非零散的装饰点缀。
2. 软硬质材的“柔化平衡”
用暖米色皮质沙发的柔软质感,中和大理石、金属、高光瓷砖的冷硬感;同时以木饰面的温润纹理穿插在石材与金属之间,打破轻奢风格易出现的“冰冷感”,实现材质触感与视觉感受的双重平衡。
二、空间布局的创新
1. “无界横厅”的动线重构
采用全开放式横厅布局,取消传统客厅与过道、休闲区的物理分隔,让客厅、餐厅(远景可见)形成视觉贯通的整体;家具以“核心休闲区”为中心呈松散式摆放,既保留社交互动的核心功能,又让空间动线更自由,适配大平层的尺度优势。
2. 功能区的“隐形融合”
电视墙将收纳、影音、展示功能整合为一体,柜体与背景墙采用同材质、同色系设计,弱化“家具感”,让功能区成为空间的有机组成部分,而非独立的“家具模块”,实现功能与美学的无缝融合。
三、光影与氛围的创新
1. 无主灯的“分层光影”设计
摒弃传统主灯的单一照明模式,采用线性灯、筒灯、落地灯组合的多层次光影系统:顶面线性灯勾勒空间轮廓,筒灯提供基础照明,落地灯营造局部休闲氛围,让光影成为塑造空间层次的核心手段,而非单纯的照明工具。
2. “低调奢华”的氛围营造
拒绝轻奢风格常见的金属元素过量使用,仅以少量黑色金属线条、金属灯具支架作为点缀;转而通过材质的原生质感(如皮革的肌理、石材的天然纹路)营造高级感,实现“轻奢不张扬”的氛围创新。 -
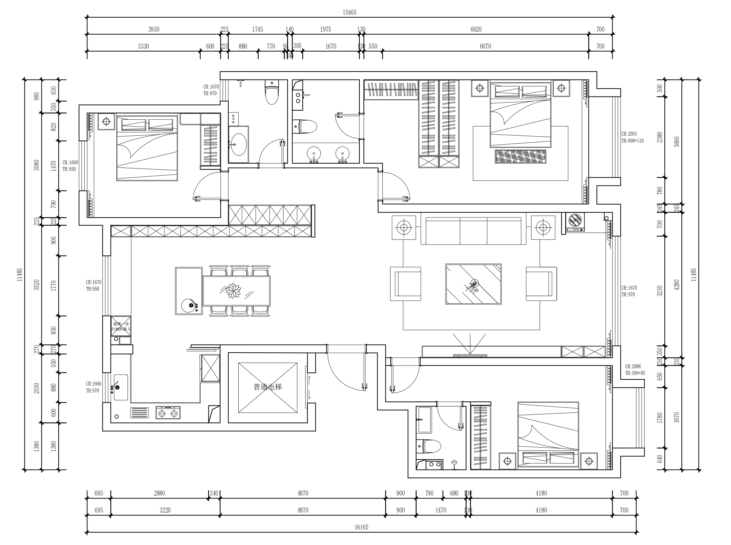
空间布局:一、无界化的空间联动设计
1. 客餐一体化的全域开放
摒弃客厅与餐厅的物理隔断(如墙体、屏风),通过地面高光石材的连续铺设、顶面无主灯设计的延伸,让两个空间形成视觉与动线的完全贯通;利用空间纵深打造“客厅休闲区—餐厅用餐区”的递进式视觉层次,最大化释放大平层的尺度优势。
2. 功能区的隐形过渡
电视墙收纳系统与餐厅餐边柜采用同材质、同设计逻辑(封闭收纳+开放展示),软装材质(皮质、大理石)也跨空间呼应,让客厅、餐厅从“独立区域”变为“有机整体”,弱化功能区的边界感。
二、模块化的核心休闲区布局
1. 沙发组合的灵活适配
从传统L型沙发升级为U型模块化皮质沙发,围合出更私密的核心休闲区,既适配多人社交场景,也可通过模块拆分满足单人放松的需求;沙发的错落摆放让大空间的层次更丰富,避免传统布局的呆板感。
2. 家具的“去中心化”摆放
不再以电视为唯一视觉中心,而是以“沙发休闲区+茶几互动区”为核心,电视墙仅作为功能补充;茶几选用大尺寸大理石台面,成为休闲区的视觉锚点,让空间布局从“观影导向”转向“社交互动导向”。
三、动线的自由重构与优化
1. 开放式横厅的流线型动线
采用大开间横厅布局,取消客厅与过道的冗余分隔,动线从“单向通行”变为“多向自由穿梭”,从入户区可直接抵达客厅休闲区、餐厅用餐区,无任何遮挡,提升空间的通透感与使用效率。
2. 功能场景的动线衔接
客厅休闲区与餐厅用餐区的动线直接贯通,实现“休闲放松—用餐社交”的场景无缝切换;电视墙旁的展示区、沙发旁的艺术摆件区也与核心动线衔接,让空间的观赏与使用功能并行。
四、功能区的复合化整合设计
1. 电视墙的“多功能集成”
电视墙不再是单一的装饰面,而是整合了影音设备区、藏品展示区、日常收纳区的复合功能模块;悬浮式设计的柜体既弱化了墙体的厚重感,又让电视墙成为“功能载体”而非“视觉壁垒”。
2. 休闲与社交的场景融合
客厅兼顾“休闲观影、日常放松”,餐厅承担“用餐、轻社交(小型聚餐/下午茶)”,两个区域通过开放式布局实现场景的灵活切换,让单一的“起居空间”变为能满足多元生活需求的“复合型社交空间”。 -
设计选材:1. 免漆墙板替代传统油漆木作
◦ 传统墙面木作与木门多采用油漆工艺,会释放甲醛等挥发性有机物,且油漆生产、施工过程能耗高、污染大;免漆墙板通过覆膜工艺实现饰面效果,无油漆喷涂环节,从源头减少VOCs排放与碳排放,同时安装采用卡扣式拼接,干法施工无需湿法作业,降低施工阶段的能源消耗与污染。
2. 岩板替代天然大理石
◦ 天然大理石的开采会造成山体破坏、生态损耗,且加工过程耗水量大、碳排放高;岩板由天然石料与黏土经高压高温成型,属于人造石材,生产过程可通过工业技术控制能耗与污染,且原料利用率远高于天然大理石开采。
◦ 岩板无天然石材的辐射风险,且表面致密不易滋生细菌,在室内空间使用更健康环保,同时可回收再利用,降低材料废弃后的环境负担。
-
用户体验:储物空间的增大是室内空间的零碎有了更好的归置,客餐厅阳台一体化的设计感觉空间更加的通透,整体色调的搭配和灯光更能符合回到家的感觉。
0
0

认证 · 让您身份增值
86