素白裹暖棕,把松弛揉进每寸空间
133
作品说明
- 项目类型:住宅公寓
- 项目地点:泰州市
- 建筑面积:140㎡
- 项目造价:197000万元
- 竣工时间:2025.10.15
-
项目定位:本案是一套黑白极简风的住宅,更是一个浪漫又温馨的自由岛屿。没有过多的色彩表达和繁复的装饰,仅以肌理与纯色为简单的载体,丰富空间视觉。整体以白色、浅米色为主色调,呈现出简洁、通透的质感。
-
空间意境:设计师希望通过设计,来传递一种温馨平淡的生活,让业主在城市中邂逅山林的豁朗,沐浴在原木材质的纯净中,内心也能得到治愈
-
空间布局:以 “少即是多” 为设计内核,统一的浅色调 + 利落的直线条,构建出通透纯粹的空间肌理,让阳光在空间里自由流淌;原创手绘装饰画、金属质感摆件等个性化元素点缀其间,如星辰般点亮整体,为极简空间注入灵魂温度,既满足都市人对整洁生活的需求,又以细节质感彰显不俗品味。
-
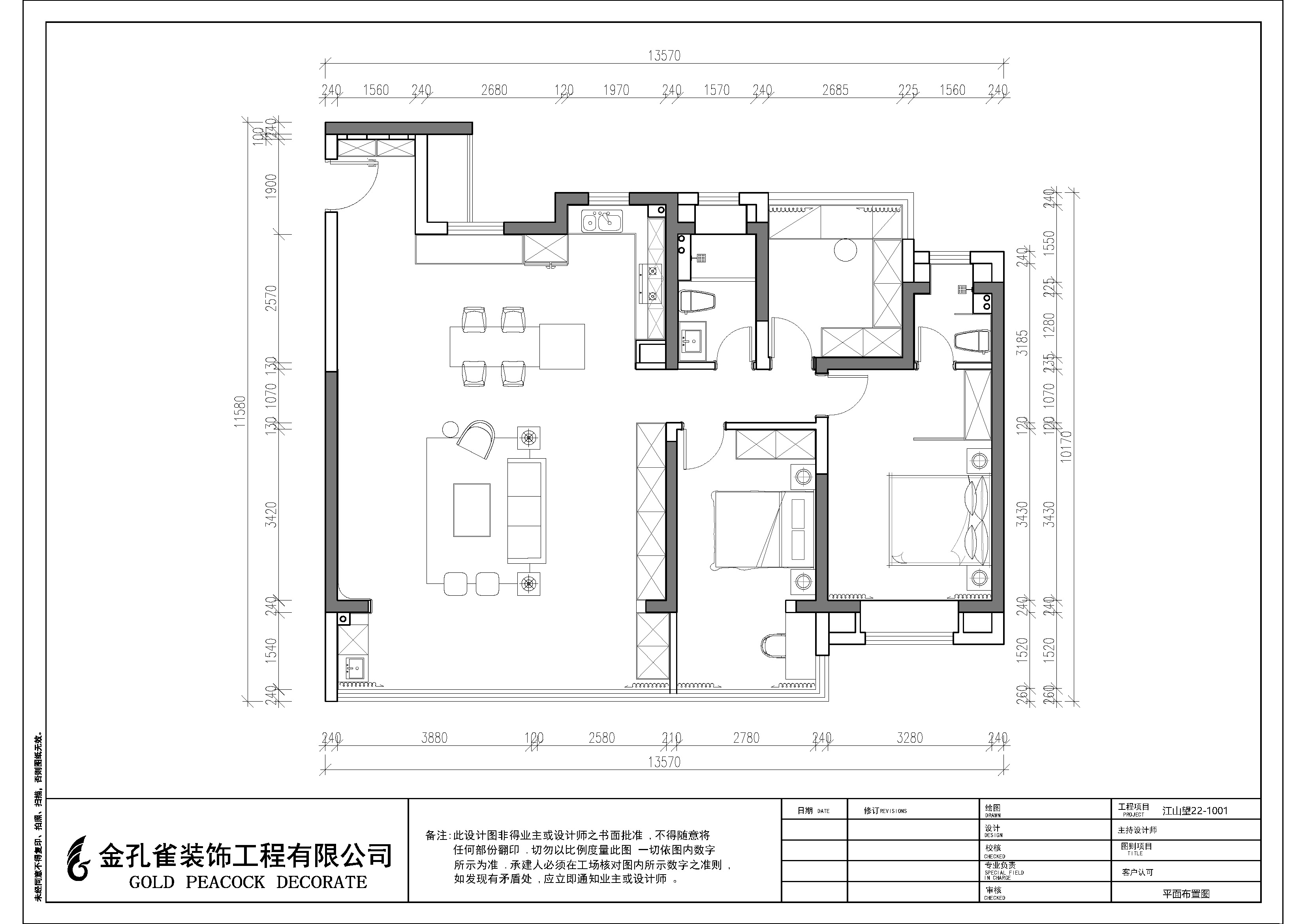
设计选材:空间内饰,采用 LDK 一体化开放格局,客餐厨无界连通,如展开的素色画卷,瞬间拉阔空间视野;墙面嵌入通顶式定制收纳系统,将杂物隐匿于无形,让空间在 “留白” 与 “收纳” 间找到绝佳平衡。
-
用户体验:沟通零障碍!设计师耐心帮我定风格,监理验收超严格,服务太到位,已经推荐给亲戚了!
餐厅、吧台、西厨一体的设计,彰显了颜值和功能的最佳平衡,让客厅和吧台能亲密联动,空间的利用率攀升,活动区域的划分也更为合理。
一方简洁大气的长餐桌搭配岛台,赋予餐厅一览无余的通透视觉。平时一家人在这享用美味的一日三餐、品茗静思,回味喜乐团圆的一幕幕日常。后方隐有一中厨,展现厨房的无限可能性。
主卧是套房形式,在满足基本生活陈列的基础上,一陈一设皆是精心挑选,拥有辨识度的同时也更有仪式感。 延续整个原木自然格调空间的设计元素,变化的层次,柔和的光线,自然的诗意,都隐藏着设计的艺术。 窗边地台设计,闲暇时,拿上一本喜爱的读物,沉浸于此,品书中人生赏四时之景。
以素白为底、暖棕为韵,将休憩与轻办公功能织就成松弛的生活场域,核心特点如下:空间布局:采用 “休憩 + 轻办公” 复合功能布局,功能区衔接如溪流般自然,既保留卧室的静谧属性,又嵌入实用的轻工作角,让空间在 “松弛” 与 “高效” 间达成共生。 双拼式布艺床头如暖棕云团,承托休憩时的松弛感;纯白床品似月光覆床,与深灰针织毯交织出柔和层次,肌理触感如午后棉麻般亲肤。
0
0

认证 · 让您身份增值