圆滿和谐
13
作品说明
- 项目类型:别墅
- 项目地点:福清市
- 建筑面积:1500㎡
- 项目造价:2500万元
- 主案设计师: 刘汉文(Mark LAU)
- 竣工时间:2024年5月
-
项目定位:“幸福”是家最核心的场所精神。整个项目的设计基调强调——打造一个幸福温暖的家,以“圆”满和谐,实现情感与生活的对话。
正如《幸福的建筑》中提到:“如果对幸福的追求就是我们人生中最根本的要务,那么美所蕴涵的根本主题理所当然也该如此。
所谓“奢”、所谓“生活Style”,往往通过空间情绪、幸福设计、美学理念、艺术升华、全屋系统、灯光氛围、智慧应用等维度,构建一个充满生命力和人文气息的家,让家成为真正属于每个人的幸福时光容器。 -
空间意境:从入口处,便以”圆”“孤”型线条作基础,圆弧象征着家庭的团结和平等,家里每个人都处于同等地位,这种平等的关系反过来促进了尊重和互助;同时,圆弧也象征着家庭的连接与和谐,家庭成员之间的情感交织、羁绊彼此。整体空间营造了一种圆满和温暖的环境。
-
空间布局:除了孤形、圆形,项目设计元素偏重暖色整木、暖色墙身。大自然拥有无尽的疗愈力,空间设计元素的偏向性也再现自然智慧,山语、花境等等“化身隐藏”在适配现代生活风格的空间中。
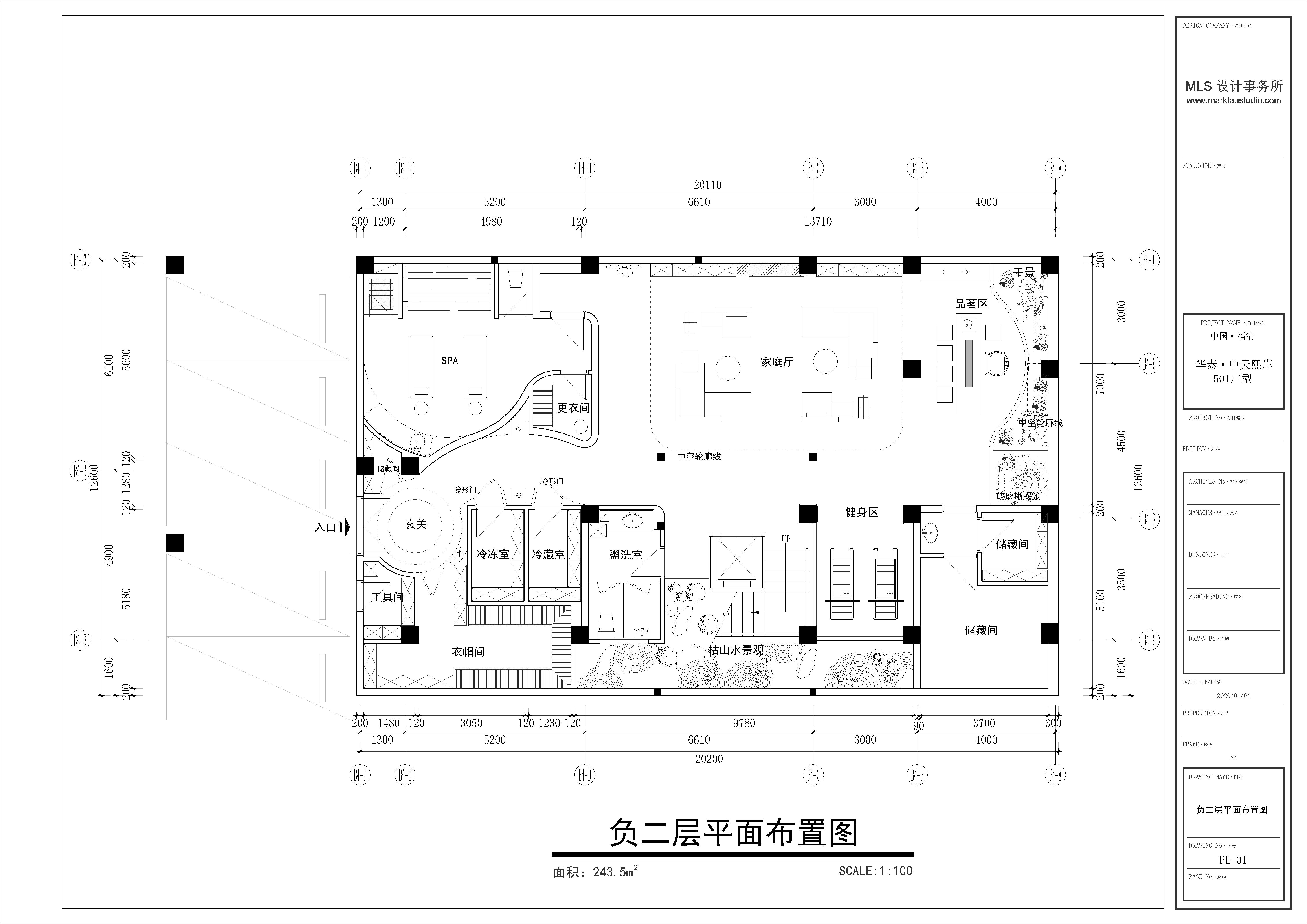
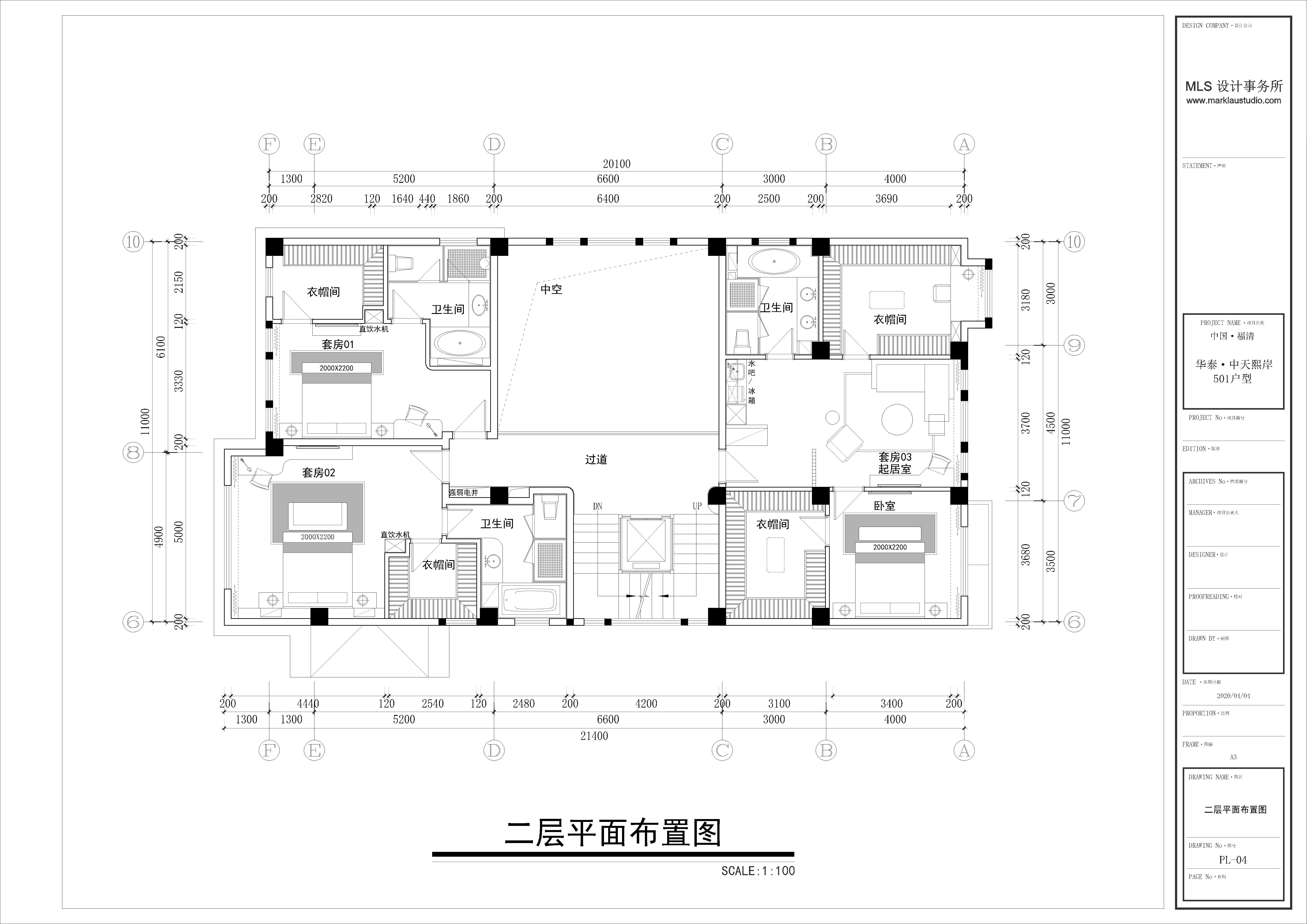
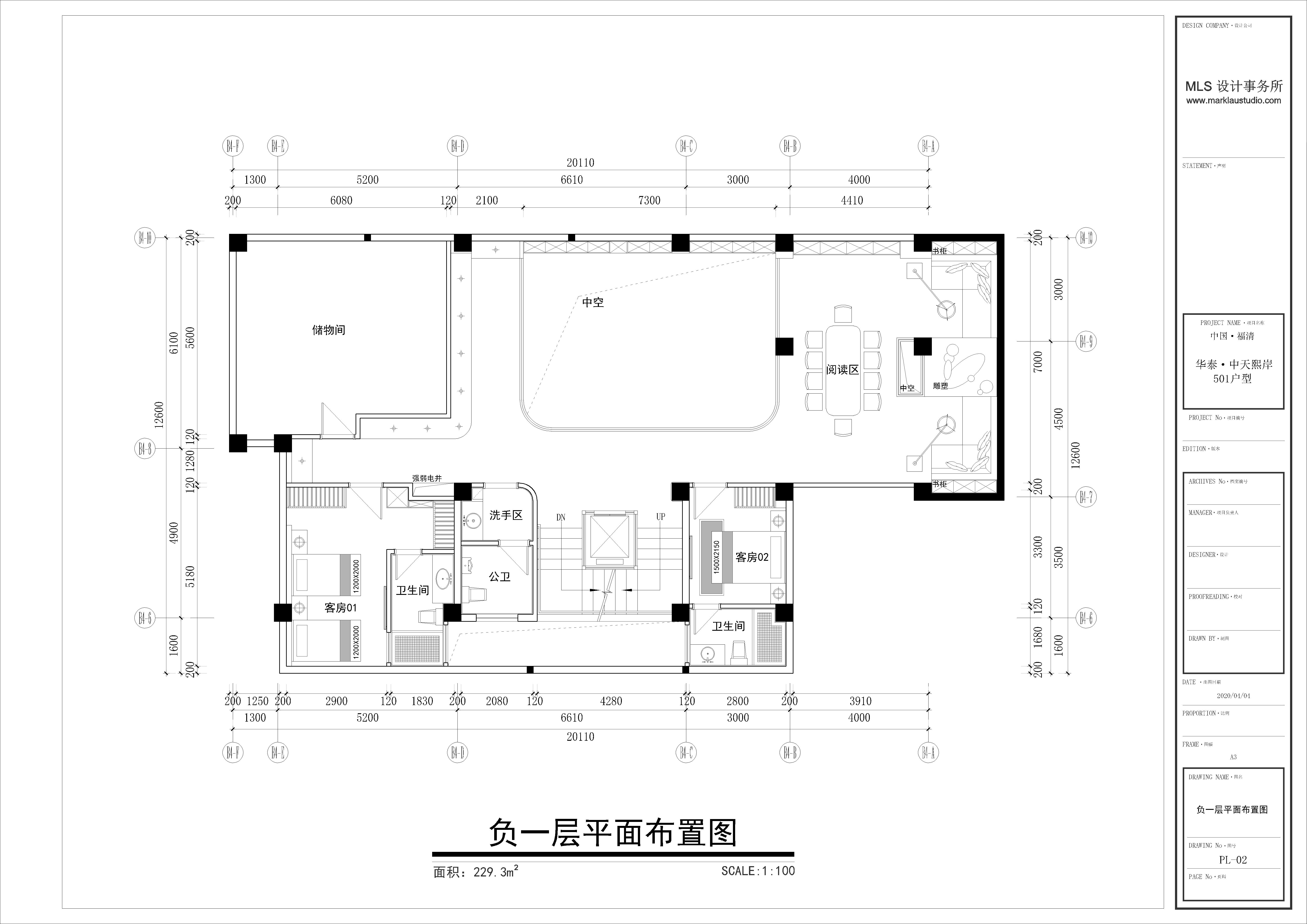
布局的根本→这是由原房子,加建改变而成,所以實用性起強,及这层功能的報局。 -
设计选材:富有亲和力的色彩与质感贯穿其中,从客厅到餐厅,又到主客房间,甚至书房、茶室、过道等都互相呼应;也透过现代的设计手法,充分考虑到颜色、材料、工艺融合的设计搭配,将板材、金属、实木等巧妙的结合在一起,打造了一个满足不同家庭成员审美需求的中性空间,且极具空间层次感与仪式感的生活,诉说着居者对美好生活的向往。
低碳→地下层部分天面,以天窗设计,白间光線直接利用及透下成日光照明。
全屋材料大量为国產品牌,以设计手法表现的勝價比项目。 -
用户体验:于用戶而言,家的空间代表着修养与情怀。设计师刘汉文Mark LAU认为:深入挖掘居者与空间的情感连接,无论用设计、艺术还是科技的形式呈现架设情感的架构逻辑,才是当下当代奢居/豪宅设计和创新的解决方案。
0
0

认证 · 让您身份增值