法式浪漫书写东方美韵
56 - 项目类型:别墅
- 项目地点:福清市
- 建筑面积:4000㎡
- 项目造价:200000000万元
- 主案设计师: 刘汉文(Mark LAU)
- 参与设计师:刘汉文
- 竣工时间:Sep 2023
- 设计机构:香港里空间设计事务所
-
项目定位:本案由香港设计师刘汉文先生 (Mark Lau) 亲自操刀, 从建筑外观到室内设计均体现其独特工艺。项目占地5亩, 总建 筑面积达到4000平方米, 以法式风格为主导设计。室内空间上, 整个项目结合了私人住宅与多用途功能综合体的理念。
-
空间意境:这座别墅不仅包含客厅、饭厅、厨房、浴室、客房及套房等基本功能区域, 还创新性地设有茶室、舞踏室、影音室 棋牌室、烘焙间、健身区、中式金丝楠木书房及艺术收藏馆等多样空间。
每个空间的风格与选用材料经过精心设计 充分展现出极富创意的项目理念。
项目按照业主需求配置了戶外景观花园, 不仅有精心搭配的园林景观, 还配有满足业主运动休闲的籃球場, 別墅后的假山里设有一台柴油发电机。
室內空间部分, 一层由法式玄关入户, 大气优雅。大厅餐厅厨房均采用浪漫法式设计.
二, 三楼现代风格的独立空间及卧房, 采用了明亮的配色与软装搭配, 各具特点的室內设计 透露着异域风情的时尚感。房间开敞明亮, 映衬着窗外的绿植与远处的风景, 同时宽阔的居所使人更添一份松弛感。 -
空间布局:一层由法式玄关入户, 大气优雅。大厅餐厅厨房均采用浪漫法式设计.
二三层为屋主的私人卧房及家庭公共活动空间。每当假日时光, 一家人在三层的家庭生活厅欢聚一堂, 伴着春日暖阳 看着窗外绿意盎然的风景, 可以很好地享受家中的愜意时光。
顶层-功能及实用性
从观光电梯可直达顶层。及戶外观景 露台, 顶层配有由中式金丝楠木打 造的书房及收藏空间, 用于展示业主珍贵的私人藏品, 也可用于会客品茶或者家庭小聚, 读书练字都是 个非常合适的休闲空间。
地下层-功能及实用性 地下层为多用途空間, 通过艺术大厅, 可到达女主人烘焙房。地下空间还包含了中西酒窖, 影音室 健身室, 桑拿房, 棋牌室, 茶室, 烘焙房, 会客厅, 收藏室等休闲娱乐多功能 空间及两间客房, 分別通 往左右兩个露台花园。让屋主足不出户即可享受品 质生活, 招待友人与访客。 -
设计选材:前瞻性-功能上, 全幢別墅使用中央五恒空气系统, 地下层为了防潮而设有电滲 透系统, 用来驱走水份子。别墅内也配置了备用柴油发电机.
环境生态-现代法式艺术孤型楼梯由地下层延伸至顶层位于西边。每当西照时间, 日光通过楼梯, 照通每层。地下层东边由于无法接受西照, 故休闲室上方采用天面玻璃, 来获取自然光, 亦可打开满足通风需求。全幢使用节能供水 ecology 系统。外墙及內墙使用隔热物料令室內空气温度得以保留, 且外墙取用大 型玻璃窗, 光照十分充足。全屋材料使用均达到环保要求。 -
用户体验:竣工至现在,取得十多个国际设计奖项。业主高兴及大赞项目,美学创新而有实用.
前戶外花园
后戶外花园
庄园别墅正立面
庄园别墅背立面
一层玄关
一层玄关
过道
一层玄关
一层大客厅
一层现代法式客廳 本案是一座自建法式庄园主题高端私家别墅 , 吸引眼球 ,堪称艺术精品 。项目共五层连地下室 , 室内面积超过4000平方米 真正体现了豪宅的典范 。 设计巧妙融合了法式风格与现代唯美主义 以简约的笔触展现了现代豪宅的气派与和谐 汇聚了法式建筑的优雅奢华与中式建筑的精美大气特征.
拼花图案 : 大理石地台上采用了大量艺术拼花图案,一层大客厅、走廊及圆形楼梯的梯级上均有拼花设计 。此项 工艺耗费了大量时间和精力 特别是在选择合适的材料以及配合花朵和植物的本色上
一层大客厅
一层大客厅
一层大客厅
一层饭厅
一层法式厨房 法式厨房 : 厨房融入了古典法式元素 ,尽显法式风格 特意选择了意大利imola的仿古瓷砖。
一层法式厨房
孤型楼梯(由地下层至顶层)
孤型楼梯(由地下层至顶层)
孤型楼梯(由地下层至顶层) 圆形大理石墙面 : 使用实心石材制作的圆形楼梯级墙面 在工艺和材料选择上也花费了很多时间 ,尤其是在选用 大理石纹理和颜色的统一性上
孤型楼梯(由地下层至顶层)
孤型楼梯(由地下层至顶层)
孤型楼梯(由地下层至顶层)
建筑和室内设计以现代法式风格为主 完美融合业主多年来的收藏成果 将艺术品擺放于中式空间和特藏室 ,部 分展品巧妙地展示在弧形楼梯的墙面上 。 通过中央孤形楼梯和拼花图案的地台 搭配精工制作的法式图案扶手 流畅地连接到现代风格的其他房间 ,仿佛游走于艺术殿堂。
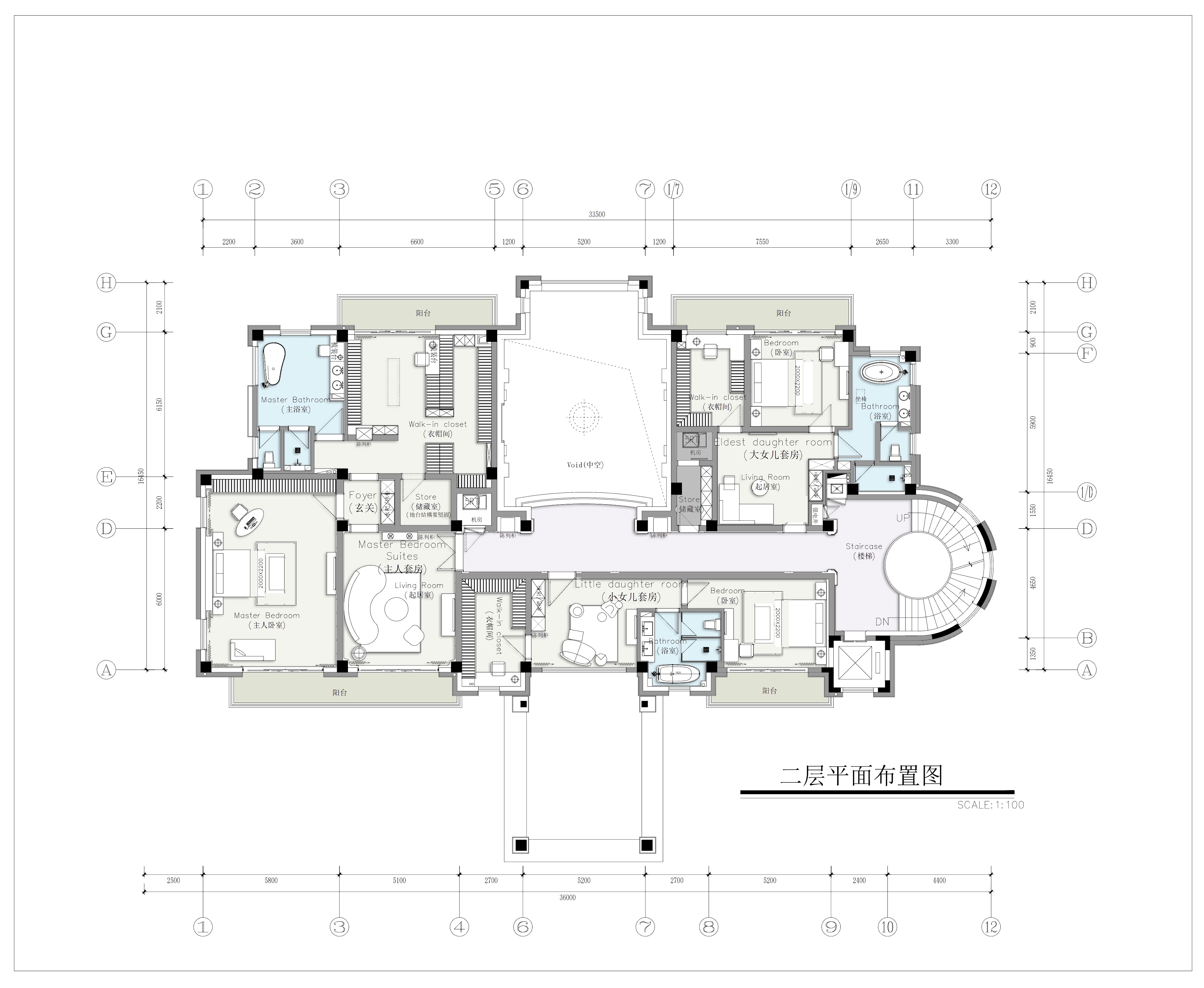
二层女儿套房
二层女儿套房
二层女儿套房
二层女儿套房
二层女儿套房
二层女儿套房
二层女儿套房
二层过道
二层主人套房 艺术化美感的浴室 : 浴室的设计风格与卧室相协调 ,全部采用意大利imola瓷砖品牌 尽显艺术魅力 。
二层主人套房
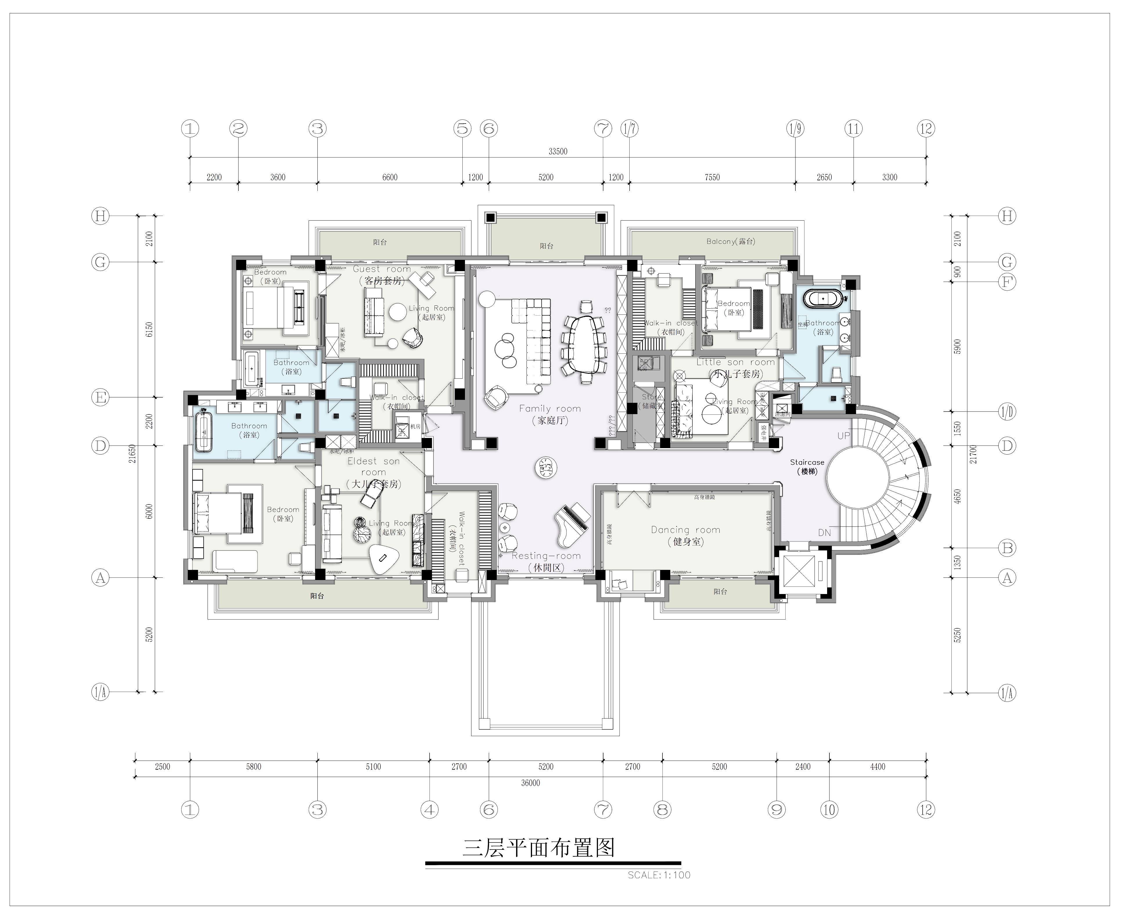
三层儿子套房
三层家庭休闲区
三层家庭休闲区 项目地理位置靠近海边 建筑设计无疑对设计师提出了挑战 。凭借多年积累的丰富经验和对豪宅业主品质追求的把控, 设计师在材料的选择上更加严格。优质材料的运用 ,使整体设计如虎添翼 最终实现项目的完美落地 。
三层过道
三层家庭休闲区
三层家庭休闲区
三层儿子套房
三层儿子套房
三层儿子套房
三层客套房
三层客套房
二层主人套房
二层主人套房
二层主人套房
二层主人套房
三层儿子套房
三层儿子套房
三层儿子套房
顶层的艺术书房和收藏室采用中式设计
顶层的艺术书房
顶层的收藏室
顶层的收藏室
顶层卫生间
顶层的收藏室 顶层设有中式金丝楠木书房及收藏空间 墙面和天花板采用实心金丝楠木材料 选材和工艺方面同样耗费了很多 时间 特别是在选择木纹和颜色的统一性上。
地下层则是多功能空间 ,通过艺术大厅可以到达女主人烘焙房 。地下空间还包含中西酒窖、影音室、健身室`桑拿房、棋牌室、茶室、烘焙房、会客厅、收藏室等休闲娱乐设施 ,以及两间客房 ,分别通往左右两个露台花园 让业主足不出户便可享受高品质生活 招待朋友和访客
地下层则是多功能空间
地下层则是多功能空间
地下层则是多功能空间
地下层则是多功能空间
地下层则是多功能空间
地下层健身室
地下层健身室
地下层会客厅
地下层茶室
地下层茶室
地下层影音室
地下层西酒窖
地下层西酒窖
地下层烘焙房
地下层棋牌室
地下层露台花园
地下层露台花园
地下层露台花园
地下层卫生间
地下层卫生间
地下层露台花园
1F FLOOR PLAN
1F FLOOR PLAN
2F FLOOR PLAN
2F FLOOR PLAN
3F FLOOR PLAN
3F FLOOR PLAN
4F FLOOR PLAN
4F FLOOR PLAN
BF FLOOR PLAN
BF FLOOR PLAN
0
0

认证 · 让您身份增值