万安映邸 · 时代映卷
135
作品说明
- 项目类型:样板间/售楼处
- 项目地点:上海市
- 建筑面积:450㎡
- 项目造价:400万元
- 主案设计师: 杨星滨
- 竣工时间:2025年10月
- 设计机构:一然设计
-
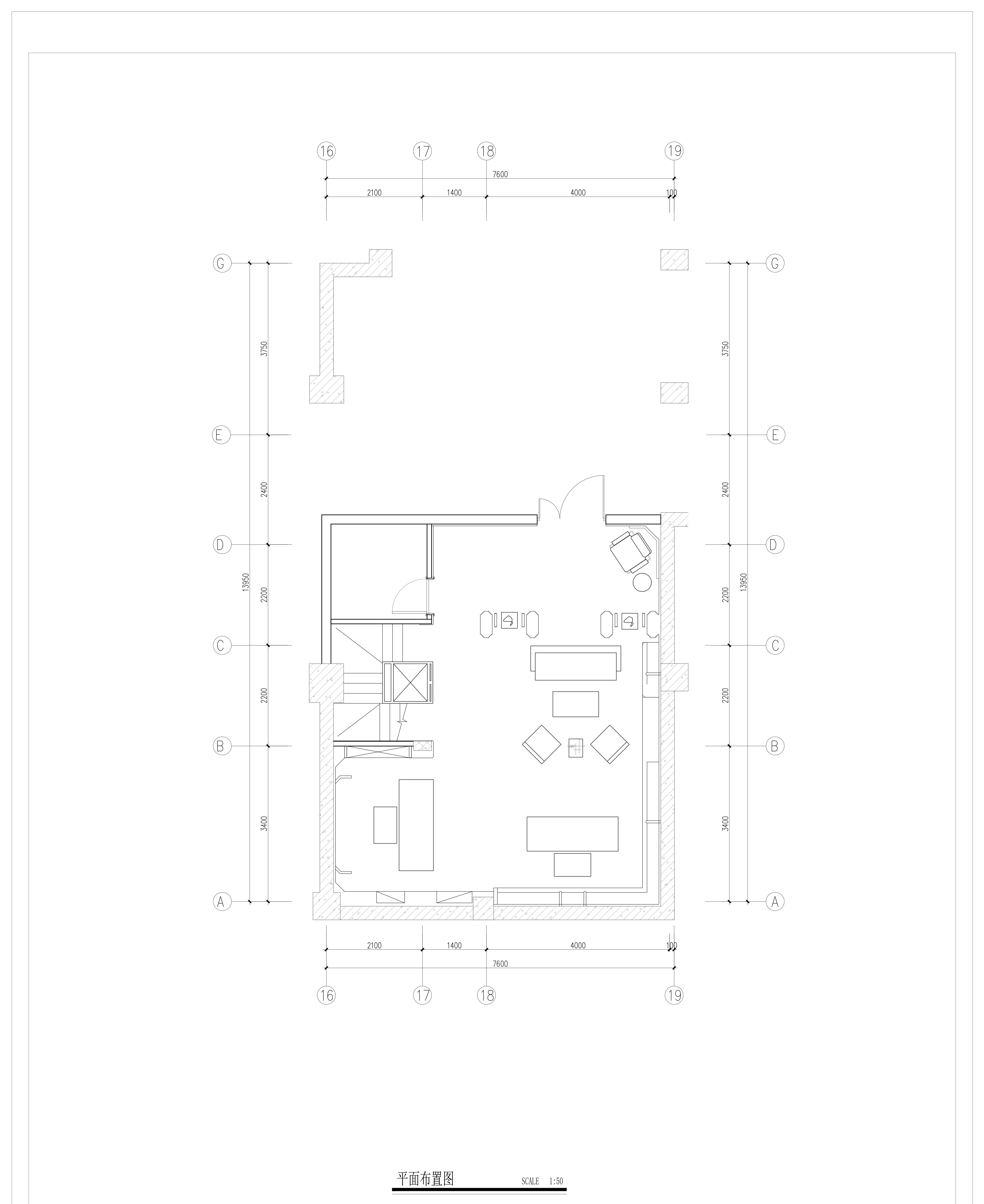
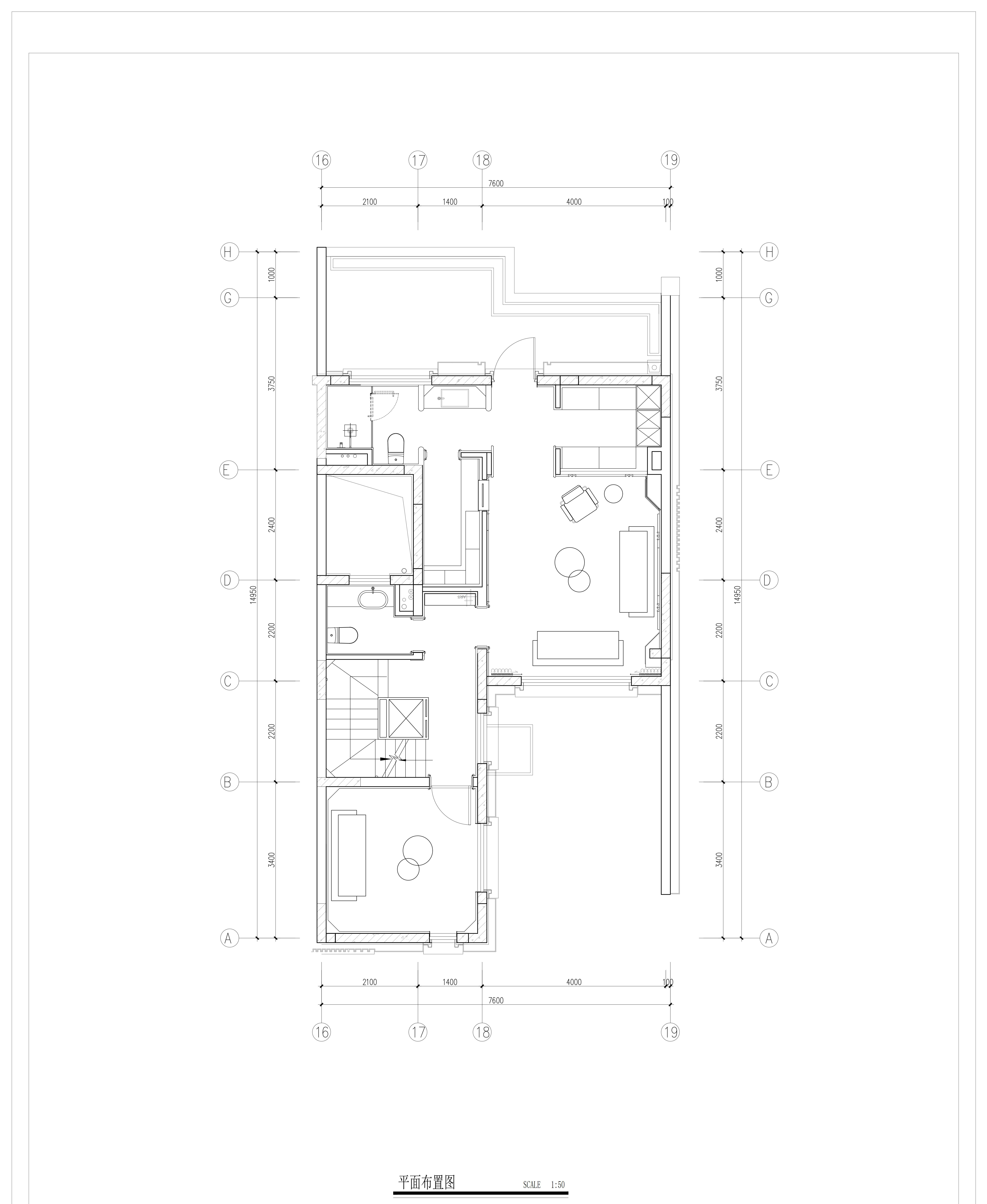
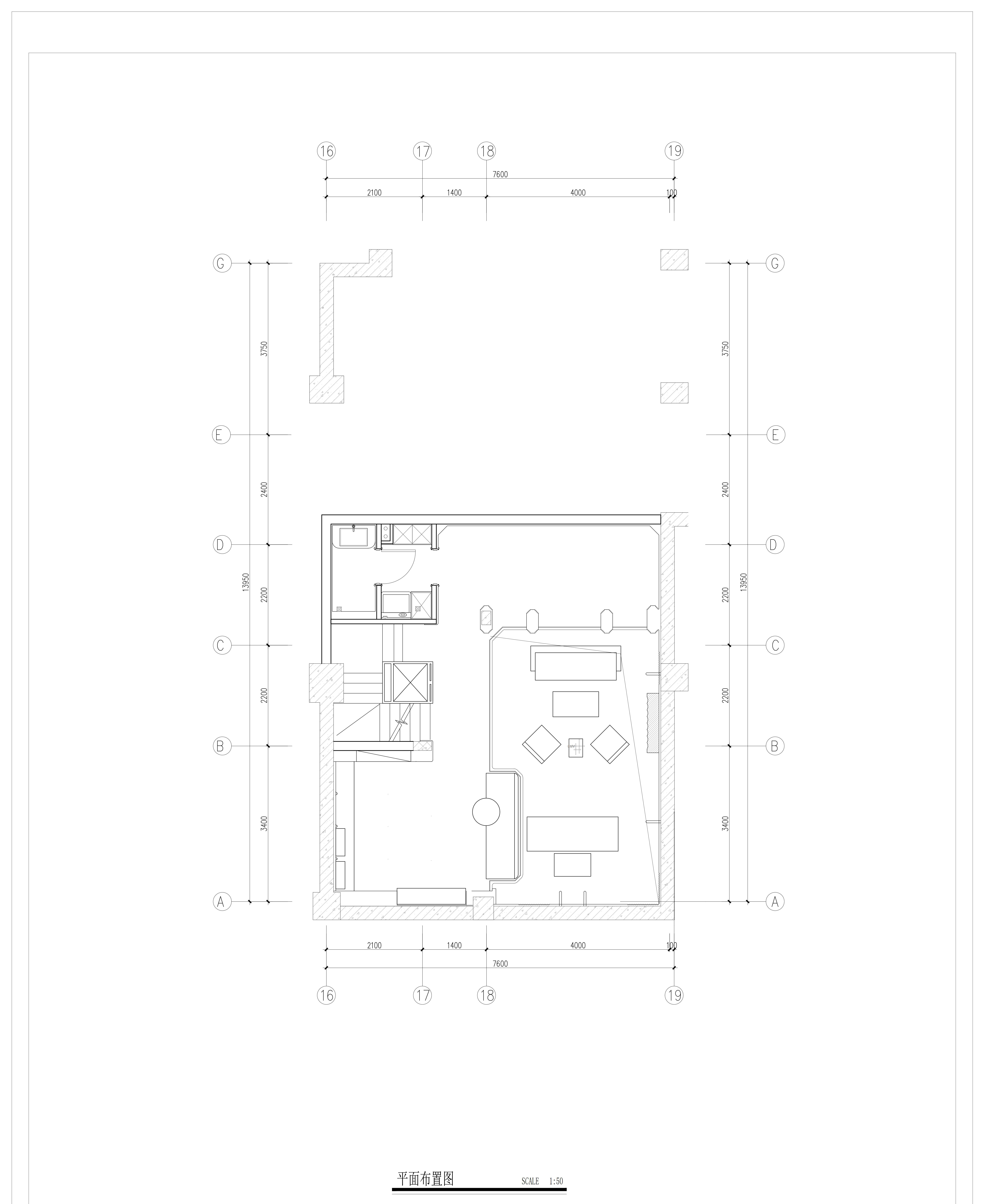
项目定位:这是一个具备样板间展示的售楼处,一共5层的独特建筑,有庭院,有阳台,将售楼处沙盘区设置在一层,其它空间还包括会客区,VIP室,超级套房,瑜伽区以及黑胶区,我们希望业主在了解售楼处的同时,直观的感受到未来的生活方式。
-
空间意境:将上海的城市基因,转化为可沉浸体验的当代居住艺术。
庭院:从“观赏”到“承载”的上海微缩
创新点:它可能并非传统中式园林,而是一个 “上海意象庭院”。地面铺装或许映射着黄浦江的流线,绿植选用梧桐与苔藓,搭配金属或玻璃的当代艺术装置,形成“摩登山水”。它不止是景观,更是一个承载城市记忆与未来想象的 “在地性艺术装置”。
阳台:从“观景台”到“生活舞台”的界面革命
创新点:阳台被设计为 “悬浮的都市客厅”。它可能通过无界转角玻璃、可升降幕帘系统,实现从私密茶室到全景观景台的场景切换。更重要的是,它让居住者从“看风景的人”,变为 “与城市天际线共餐、共饮、共生活的主演”,重塑了人与城市风景的心理距离。
露营区:都市核心的“野性诗意”
创新点:在极度精致的售楼处内植入露营区,制造了 “ curated wilderness(精心策划的野趣)” 的戏剧性反差。它用高级的材质(如夯土墙面、野奢装备)模拟自然粗犷感,实则极度精致。这呼应了上海精神中“在秩序中追求自由”的矛盾与浪漫,提供一种 “不出城郭而获山林之怡” 的当代解决方案。 -
空间布局:万安映邸的空间布局创新,在于以“上海折叠”为理念,打破传统售楼处单一流线。它并非功能分区,而是将城市意象解构重组:沙盘区如都市广场,居于核心;庭院、阳台与露营区则如城市公园、私享露台与都市营地,环绕并渗透其中,形成“内景外透”的流动剧场。访客穿行其间,体验从宏大规划到私密栖居的无界转换,每一步都是对“浓缩上海”的沉浸式阅读,实现了从“观看模型”到“走入场景”的根本性颠覆。
-
设计选材:
-
用户体验:这不仅是看房,更是一次对“自我理想生活”的主动发现与共鸣之旅,最终将空间记忆深刻转化为归属渴望。
0
0

认证 · 让您身份增值