克制的隐退
5
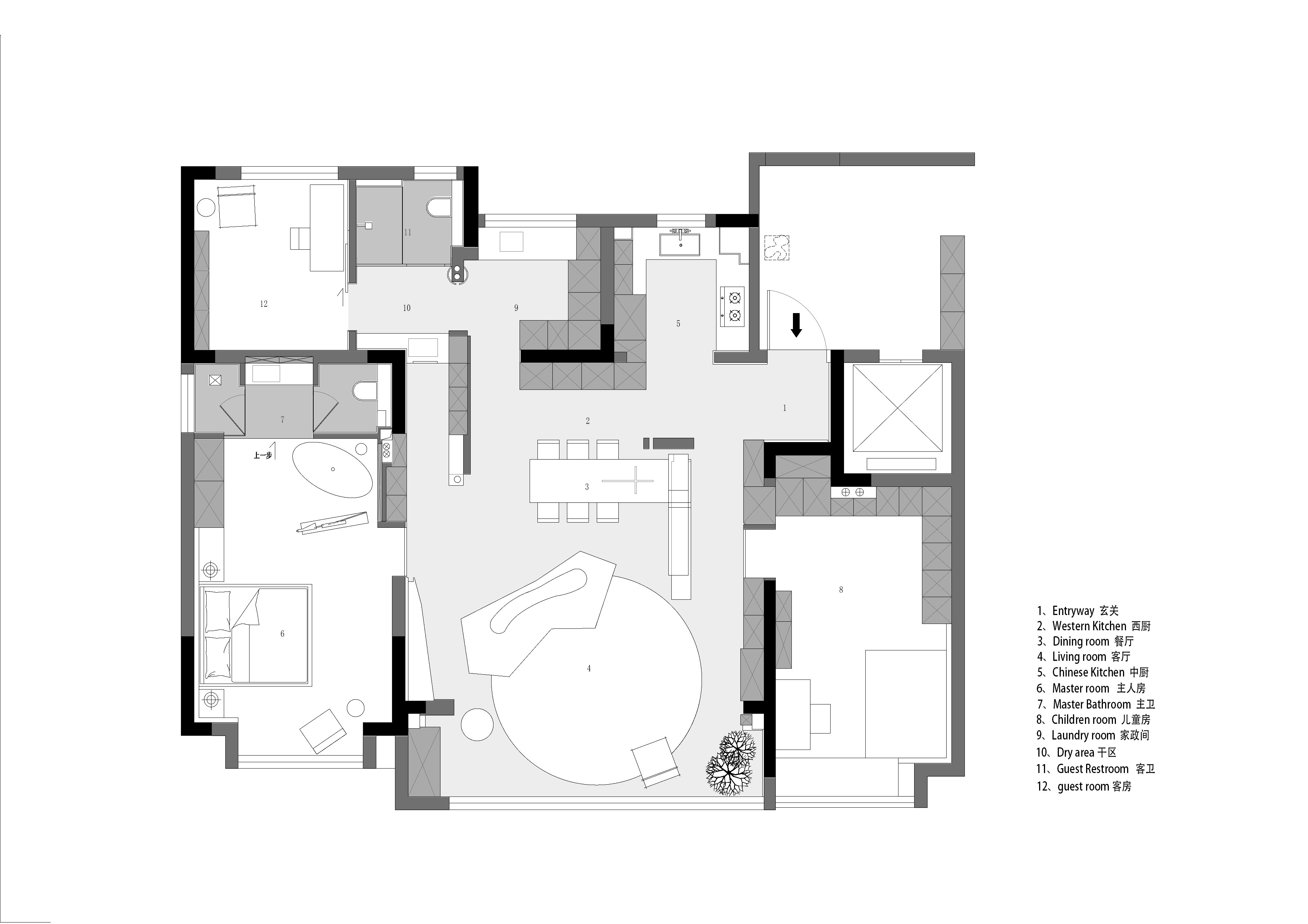
作品说明
- 项目类型:住宅公寓
- 项目地点:合肥市
- 建筑面积:178㎡
- 项目造价:80万元
- 竣工时间:2023/10
-
项目定位:立足客户对“就要黑的”个性化需求,塑造一种真正独特且属于自己的生活方式。依照斯卡帕的“波特莱尔”情节抗拒世俗对黑暗的负面理解,将反向视为正向力量、生命韵律的起始点,在暗黑处重构生命秩序。
-
空间意境:暗灰色调的运用,使空间散发出一种低调的奢华气质。通过几何体、线条的置入来形成节奏,来控制虚实的错落。而光,作为最终的设计语言被引入,成为穿透暗调的一缕希望与诗意。
-
空间布局:入户被定义为引导生命的符号,而非具象的开口。由此启程,空间体块如动态雕塑般穿插、重组,塑造出“移步易境”的惊奇体验。它们在看似自由的分布中,遵循着一种内在的韵律,最终和谐共存,别有洞天。
-
设计选材:平滑的镜面金属与跃动的电子炉火相遇,以异质结合的形态重构了背景墙。两种力量在此纠缠、渗入,形成一种向上的动态延伸。而一侧的木饰面,则以其温润与经典的空间意象,为整个场域注入深邃的格调,平衡了科技的凛冽。
-
用户体验:最终呈现不仅完全回应了客户的个性诉求,更超越了所有到访者的常规预期,带来一致的震撼体验。空间虽以黑色为基调,却通过精妙的光影设计,确保了充沛而柔和的生活照明,毫无晦暗之感,在深邃的氛围中实现了功能与美学的完美平衡。
0
0

认证 · 让您身份增值