折衷见境
73
作品说明
- 项目类型:住宅公寓
- 项目地点:合肥市
- 建筑面积:140㎡
- 项目造价:80万元
- 竣工时间:2025/06
-
项目定位:项目定位在于营造一种折中而松弛的东方静奢之境,让西方现代设计的风骨,承载东方美学的留白与气韵。设计打破常规,于折中的平衡间,探寻一种去形式化的松弛气韵。我们弱化传统的“客厅”中心,旨在重塑一个自由、流动且滋养身心的当代生活形态。
-
空间意境:设计以折中手法与留白意境,塑造引导内省的空间氛围。我们消弭固有边界,让气息自由流动。陈设上,恪守“慎独”原则,仅以少数精选器物点睛,便成就空间宁静深远的诗意气质。
-
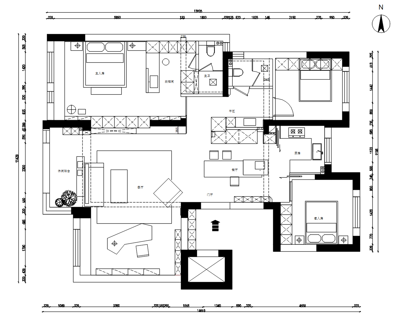
空间布局:我们重新规划空间关系:释放阳台融入客厅,最大化景观视野与公区尺度;将洗衣房高效集约于卫生间过道,实现彻底的动静分区。主卧套间借鉴酒店式布局逻辑,营造私密、舒缓的休憩之境。
-
设计选材:老木、洞石等天然材质的肌理,构成了空间的拙朴底色与呼吸感;木质百叶则进一步柔化了光影。大面积的留白、拒绝无意义的堆砌,也是对自然质感的回归。
-
用户体验:最终实现的住家空间,呈现出一种松弛而高级的整体氛围。每一位到访的亲友都感受到一种被包裹的舒适与不经意的美,那些耐人寻味的细节之中蕴藏着我们对这个家的真情实感。
0
0

认证 · 让您身份增值