机电聚落
309
作品说明
- 项目类型:公共
- 项目地点:常州市
- 建筑面积:1000㎡
- 项目造价:80万元
- 主案设计师: 蒋国成
- 参与设计师:蒋国成
- 竣工时间:2025年10月30日
- 设计机构:初品设计
票数 : 0
-
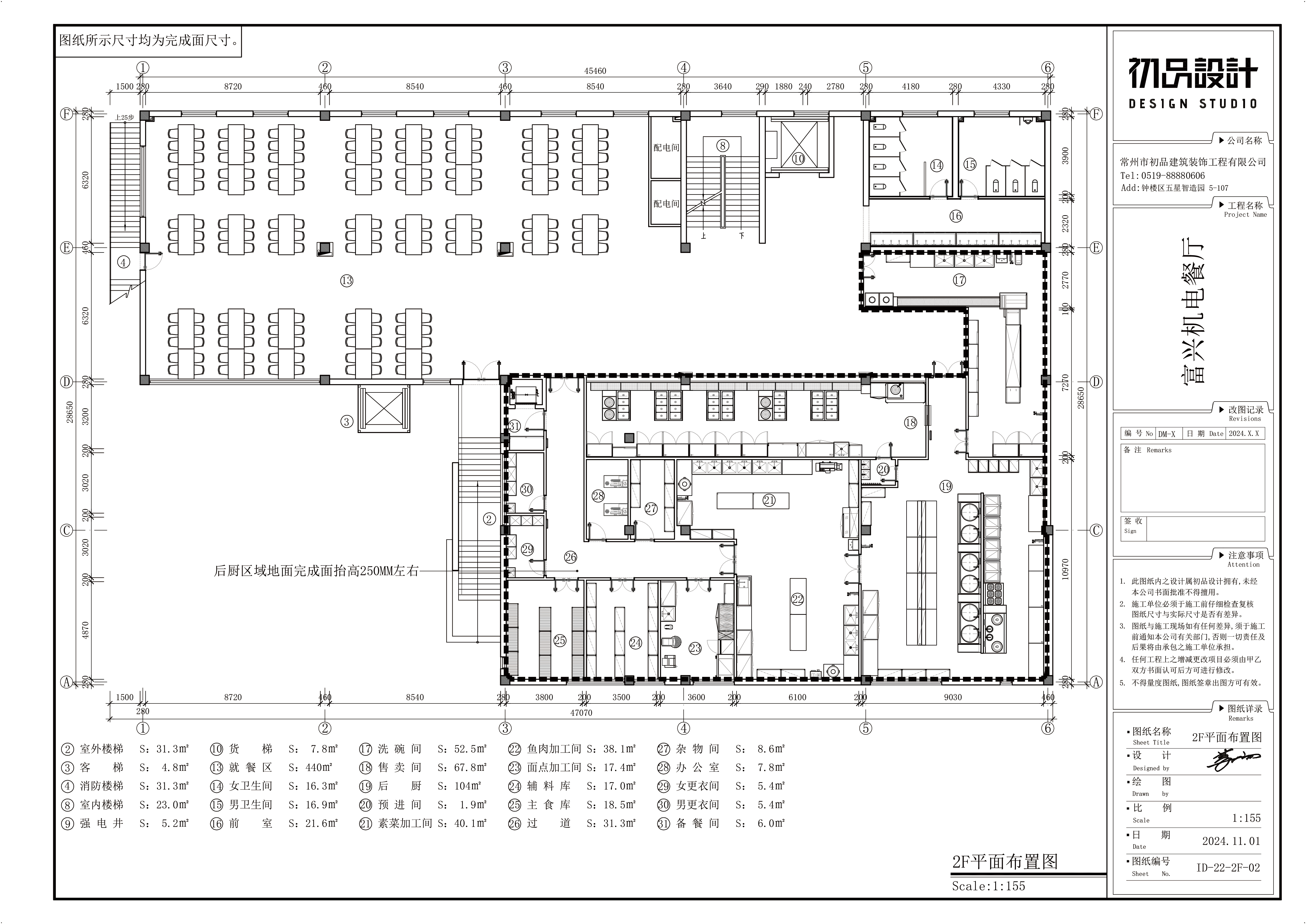
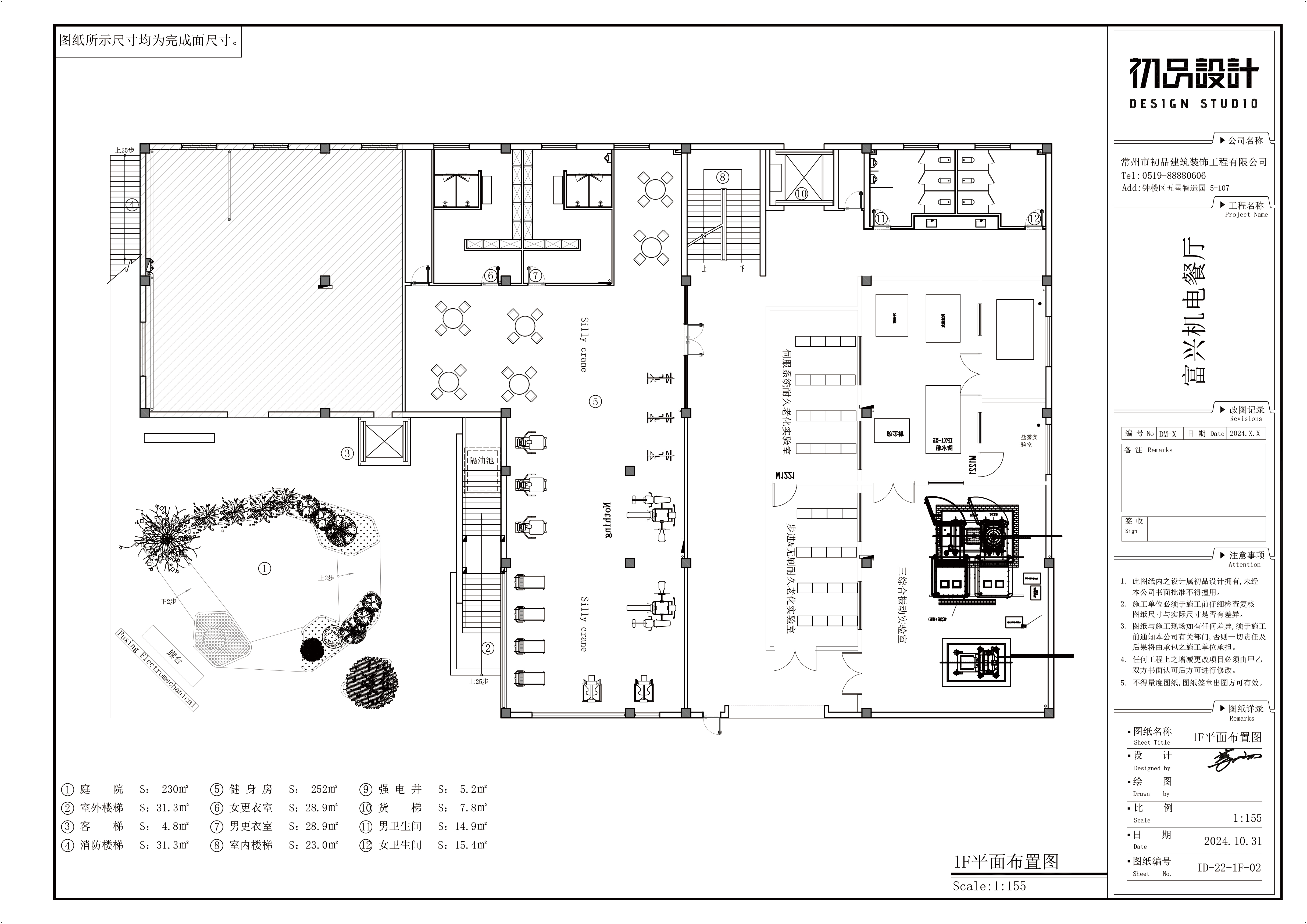
项目定位:富兴机电综合楼不只提供一顿饭、一次健身、一场聚会——它旨在构建一个 “滋养身心、激发创意、连接价值”的立体社区核心。通过建筑空间的精心整合,我们将助力企业将“机电”的精密精神,延伸为对“人”的细致关怀,最终实现生产力与生活力的协同共振。
-
空间意境:富兴机电综合楼在环境风格上的核心创新,在于摒弃了工业风的粗犷复刻或商业空间的浮华堆砌,转而塑造一种 “科技人文主义”的后台美学。我们不再隐藏结构的力与美,而是将梁柱、管线、设备风道视为精密的“室内基础设施”进行艺术化编排,如同将机电设备的内部逻辑外化为空间肌理;同时,通过一套智能光影系统与自然材质(如锈化钢板、温润木材、素混凝土)的对话,使空间氛围能在冷静的技术感与温暖的人文性之间动态平衡,最终营造出一个既展现产业内核的理性秩序,又流淌着社群温度与时间诗意的独特场域。
-
空间布局:富兴机电综合楼的空间设计,本质上是一场对“工业基因”的诗意转译。其高级感源于一种克制的矛盾美学:我们将裸露的结构、艺术化排布的管线作为空间的“骨骼”与“血管”进行展示,象征产业内核的精密与力量;同时,以温润的木材、细腻的微水泥和精致的金属细节点缀其间,注入人文温度。通过精心构筑的光影叙事、如机械装置般流畅的动线规划,以及可随场景灵活转换的“社交舞台”,空间超越了单一功能,成为一个激发交流、滋养身心的立体社区枢纽。这栋建筑最终化身为企业品牌的精神雕塑,静谧而有力地传达出:在富兴机电,严谨的工程逻辑与对人的细致关怀,可以完美共生。
-
设计选材:在选材创新上,我们摒弃了风格化的材料堆砌,转而构建一套 “具有叙事性的感官系统” :通过对工业基础材料(如混凝土、钢材、管线)进行精工化与艺术化提纯,使其成为空间坦诚的“骨骼”与“韵律”;同时,大胆引入随时间温和变化的材料(如铜、实木)与极具触感的温暖材质,营造丰富的感官对比与时间痕迹;最具突破性的是,我们将机电产业的基因——如生产过程中的特定金属部件——转化为独一无二的艺术构件,使材料本身成为企业精神的终极诉说,最终让空间在原始与精致、永恒与生长之间,达成深邃而充满生命力的高级质感。
-
用户体验:该系列阐述成功地将一栋企业配套综合楼,提升到了 “品牌精神载体” 与 “产业社区标杆” 的高度。其创新性不在于奇异的形态,而在于深刻的内涵挖掘与系统性落地策略,展现出了顶级设计思考应有的前瞻性、严谨性与人文温度。
0
0

认证 · 让您身份增值