寻里
142
作品说明
- 项目类型:住宅公寓
- 项目地点:成都市
- 建筑面积:90㎡
- 项目造价:30万元
- 主案设计师: 罗天振
- 竣工时间:2024
- 设计机构:成都集间设计
-
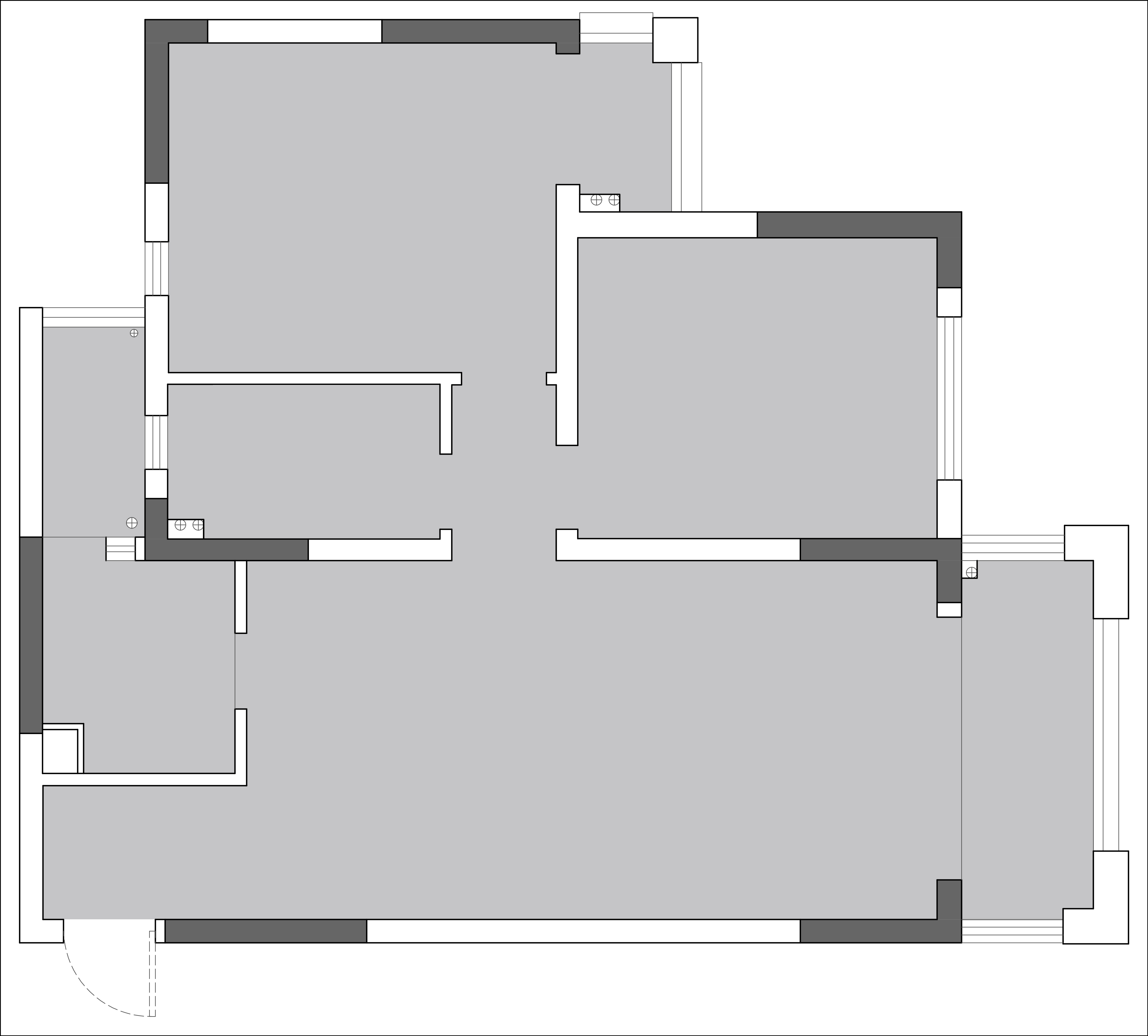
项目定位:原始 89㎡两居存在户型局促、动线单一、厨卫空间狭小等问题。基于客户保留 2 卧、追求开放公共空间及多互动回游动线的需求,以 “空间重构、功能复合、质感营造” 为核心理念
-
空间意境:通过空间重组、功能复合与材质打磨,破解 89㎡两居原始局限,打造出开放互动、高效实用的居住空间。木饰面的温润、水泥艺术漆的粗粝与洞石的天然纹理融合,塑造极简松弛感,适配全周期生活需求,让小空间承载 “大功能、多互动、有温度” 的居住体验。
-
空间布局:打破传统分区,将厨房、餐厅、客厅贯通为超级公共区 。厨房采用半开放式 + 扩大操作空间,买菜回家动线,进出餐厨动线,通过木饰面与水泥艺术漆的材质延伸,自然衔接;客厅取消多余墙体,与主卧通过玻璃隔断 + 窗帘实现 “通透 - 隐私” 双模式,构建 “社交型” 互动场域,适配聚会、亲子交流。
将原狭小卫生间拆分为 “洗漱区、马桶区、淋浴区”,干区外置浴室柜(悬浮浴室柜挂装墙面 + 悬浮镜柜),满足多人同时使用;增设家政柜(集成收纳),打通 “洗衣 - 晾晒 - 收纳” 家政动线,提升空间利用率。 -
设计选材:木饰面元素:公共区墙面、卧室背景墙及收纳柜体采用木饰面,以温润纹理传递 “松弛感”,搭配极简家具(悬浮地台床、布艺沙发 ),强化自然质感;局部嵌入不锈钢收边(如中岛边缘、柜体线条),增添精致细节。
水泥艺术漆:客厅、卧室墙面使用水泥艺术漆,呈现粗粝哑光质感,与木饰面形成 “冷硬 - 温润” 对比,塑造极简工业氛围;洞石用于中岛、浴室柜台面,天然纹理提升空间高级感。
灯光营造:采用 “无主灯 + 重点照明” 组合,轨道灯 + 磁吸灯分区照亮公共区,地台床底部灯带、浴室柜镜前灯营造氛围,实现 “有温度的极简照明”。 -
用户体验:客户体验感非常好
1.回家第一看,看着空间不在局促,每天都想呆在温暖明亮的家里
2.原狭小卫生间拆分为三个区域过后,能够同时满足一家人的使用,洗完澡到家政间的动线非常舒服
0
0

认证 · 让您身份增值