内设计office
201
作品说明
- 项目类型:办公
- 项目地点:桂林市
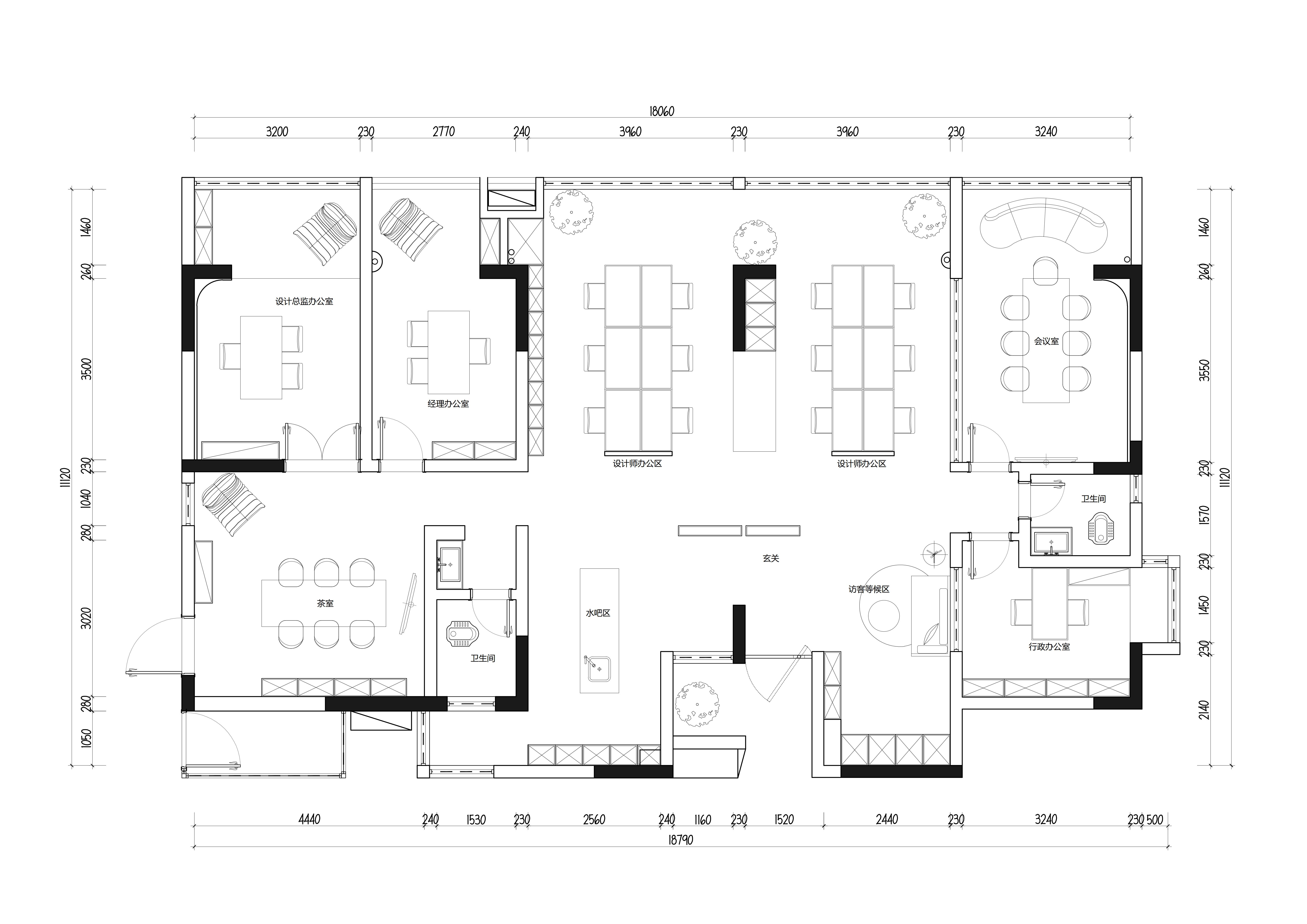
- 建筑面积:210㎡
- 项目造价:35万元
- 主案设计师: 张抗
- 竣工时间:2025.1
- 设计机构:内设计
-
项目定位:此案为内设计新办公司,作为桂林当地一家知名设计师工作室,以现代简约风格融合包豪斯主义装饰。
-
空间意境:整体空间在现代风格黑白灰为主基调,增加了企业色(特定黄色),以及穿插了红色,绿色等等,并很好的把中古风办公家具及软装融入其中,使得办公空间风格鲜明,极具现代化,自带情绪价值。
-
空间布局:办公室入户门在整个空间平面的中心,以开放式设计师办公区为中心,右边设计为会议室(洽谈室),行政财务办公室,访客等待区以及储物间,左边为休闲水吧区,茶室,卫生间,设计总监办公司,合伙人办公室以及天台花园,做到了空间与空间之间既独立又联动的使用动线,南面整面落地玻璃窗,
-
设计选材:瓷砖,涂料,免漆板,pet板以及超白钢化玻璃。
-
用户体验:员工在日常办公场景下,轻松惬意,休闲场景下,自然放松,客户来访感受到不一样的创意工作场景及氛围,可以花园发呆,撸猫。。。。
0
0

认证 · 让您身份增值