似水流年
142
作品说明
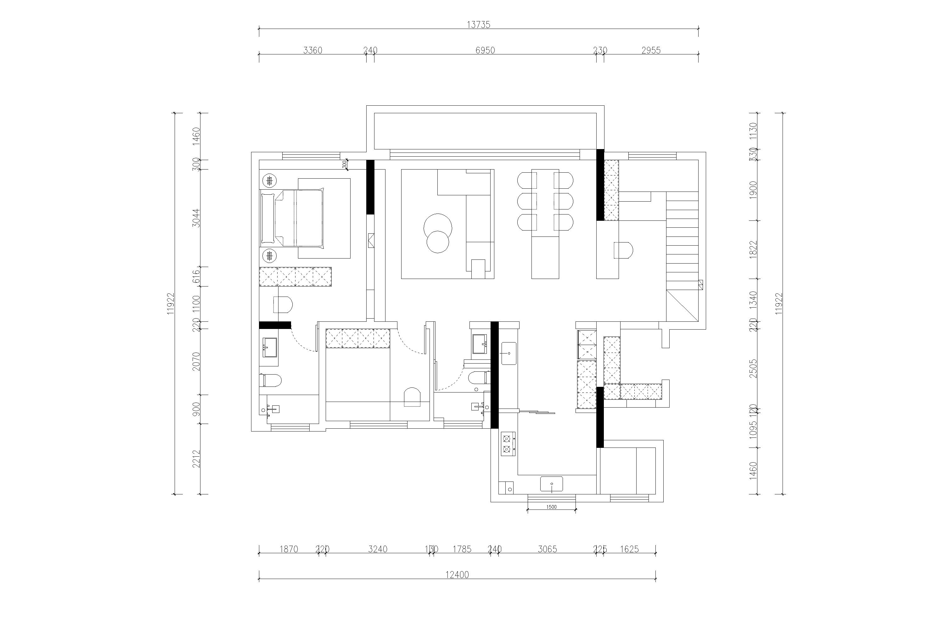
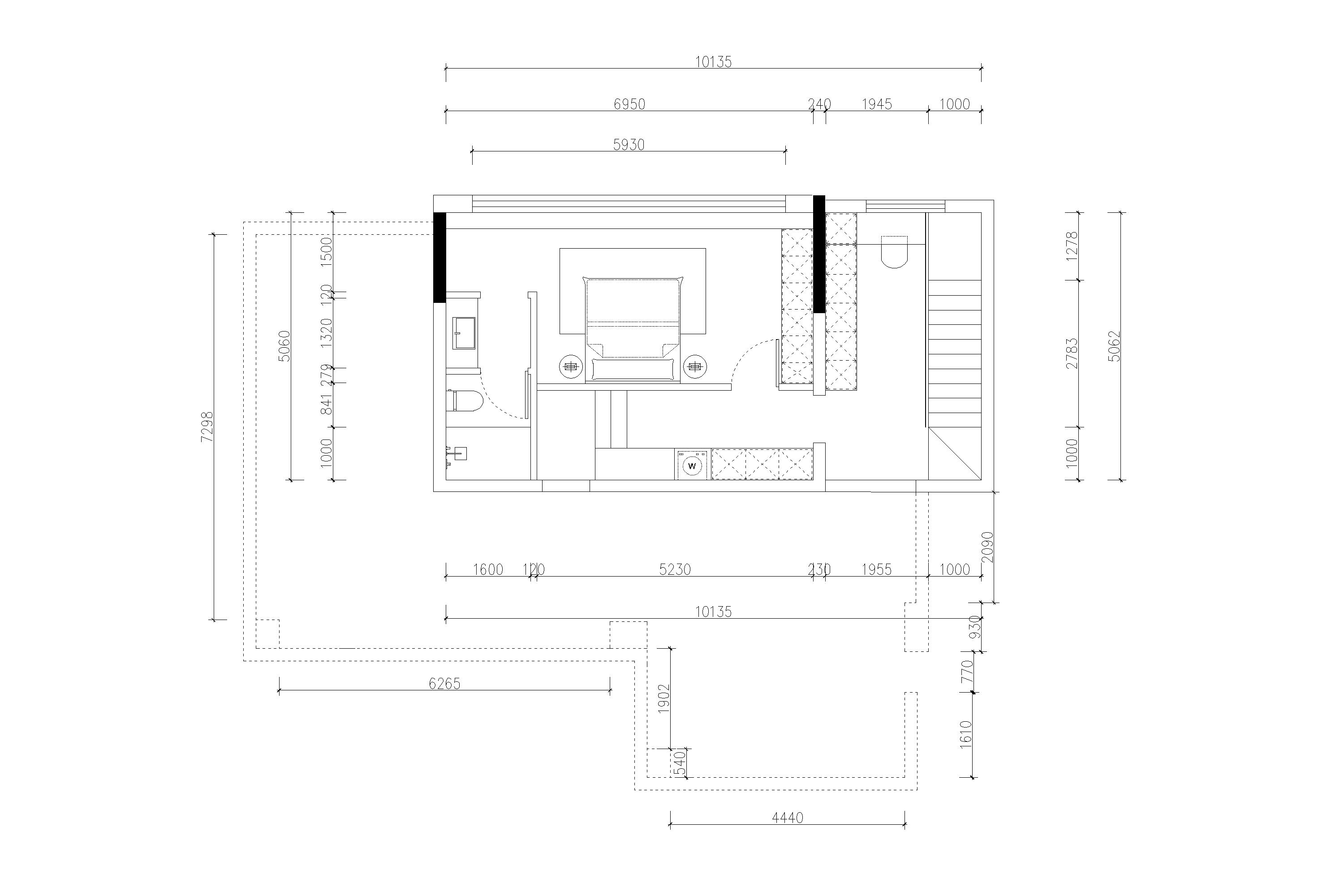
- 项目类型:住宅公寓
- 项目地点:葫芦岛市
- 建筑面积:180㎡
- 项目造价:80万元
- 主案设计师: 方瑞
- 参与设计师:叶鑫 闫海峰
- 竣工时间:2025
- 设计机构:心空美间
-
项目定位:设计围绕“自然栖居”展开,提取层峦、流光、疏影、水韵意象,在空间中转译为序列关系、光影律动以及材质的温润触感,以更轻盈的方式,将自然气息融入空间之中,营造出兼具地域文化与当代美学的空间体验。
-
空间意境:在繁忙的都市中,生活中的每一处细节,每一缕光影,都在这片静谧中谱写出诗意。通过精心的设计,家的轮廓得以呈现,空间与自然光的融合,使得每一个角落都充满温暖与生机。
-
空间布局:空间内的动线与布局节奏把控精准,由此构建出一种介于城市当代性与历史沉淀感之间的独特语境。设计上融合了东西方元素,特色吊灯成为视觉焦点,其光影效果强化了空间的整体结构与形态感。
-
设计选材:关于家的探寻步履不停,细品艺术肌理与自然意韵的交融之味,归家的热切便在心底悄然升腾。凭栏远眺,云端视野充盈着山水灵秀之气,传统地域文化的内核,经由多重视角的演绎,尽显其独特魅力。
-
用户体验:业主与设计师之间的关系,并非简单的委托与执行。二者需要交换对生活和审美的认知,通过层层递进的交流,找到那个最为契合的微妙平衡点。
0
0

认证 · 让您身份增值