-
项目定位:本项目定位为城市顶层的松弛感艺术住居,以打破别墅空间的刻板奢华,用流动曲线重构生活与艺术的共生场为核心策划逻辑,既匹配对空间品质、私密性的需求,又通过去符号化的设计语言,弱化传统别墅的厚重感,让空间成为承载日常松弛感与艺术审美力的容器,既满足家族起居的功能实用性,又以曲线、光影等元素营造出可触摸的艺术氛围。
-
空间意境:突破传统别墅冷硬奢华的风格定式,以柔曲现代主义为风格内核,用无棱角的弧形穹顶、拱形门洞、曲面柜体替代直线切割,让空间线条呈现流动感,弱化别墅的压迫感”;以低饱和度的暖杏、深棕为基底,搭配绒面沙发、肌理柜体等软质感的材质,中和现代风的冷感,让奢华更具温度;将星光吊灯、玻璃展柜等艺术装置融入起居、餐厨等日常空间,让艺术不是陈列品,而是生活的一部分。
-
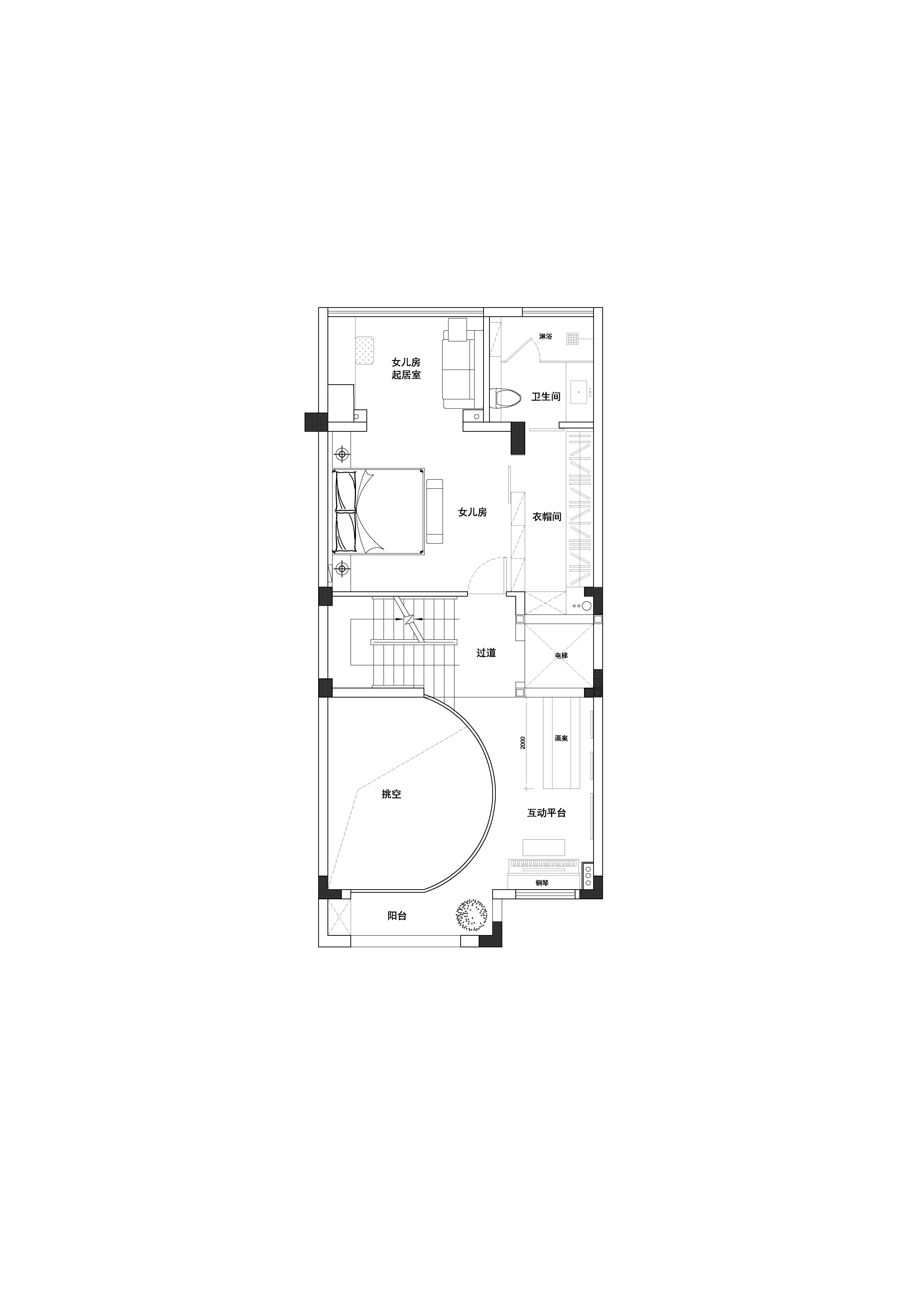
空间布局:通过挑空弧形穹顶连接上下层,配合悬浮楼梯、玻璃围栏,让垂直空间形成“视觉洄游”,既保持分层私密性,又强化空间通透感;模糊功能的边界,客餐厨以曲面柜体、灯光带替代墙体隔断,既保证功能独立,又让空间互动性更强;在卧室、挑空区嵌入弧形休闲角,让大空间中藏有“松弛小场域”,平衡别墅的尺度感与日常的亲近感。
-
设计选材:在“质感与环保”间做平衡,柜体、墙面大量采用环保木饰面,地面选用大尺寸瓷质砖替代天然石材,降低资源消耗;以肌理替代名贵材质,用仿羊绒布艺沙发替代真皮、用带纹理的艺术涂料替代石材,既控制成本,又保证触感与视觉质感;五金、灯具选用高性价比的国产设计品牌,兼顾设计感与使用寿命,降低后期维护成本。
-
用户体验:挑空穹顶与曲线设计让大别墅不压抑,日常起居时既享空间尺度,又有被包裹的舒适感;开放式布局满足家庭互动,封闭厨房、独立卧室又保证了隐私与实用性;项目落地后,用户反馈核心体验为松弛感与品质感的双重满足。
0
0

认证 · 让您身份增值
293