英倫豐隱
156
作品说明
- 项目类型:样板间/售楼处
- 项目地点:台湾
- 建筑面积:265㎡
- 项目造价:145万元
- 参与设计师:張家榕
- 竣工时间:2025/2/1
- 设计机构:以樂室內裝修設計有限公司
-
项目定位:本案定位為一處兼具展示性與生活想像的實品屋空間,透過「可被代入的生活場景」取代過度風格化的展示手法,使參觀者能在短時間內建立對居住狀態的情感連結。設計以「內斂而富層次的居所」為核心概念,融合英倫語彙中的比例秩序與現代簡約的線條語感,強調空間尺度、材質層次與整體平衡。
-
空间意境:空間風格以低彩度灰階與溫潤中性色為主軸,結合細緻材質紋理,形塑安靜卻不單調的視覺層次。設計過程中避免過度裝飾,轉而著重於比例關係、留白運用與光影變化,使場域呈現出自然且具有節奏感的轉換。
在環境營造上,透過「連續但有界線」的空間概念,讓各機能區之間既保有開放感,又能藉由材質轉換、界面層次與光線引導形成隱性分區,營造沉穩、內斂且耐久觀看的空間氣質,跳脫傳統實品屋的呈現方式。
-
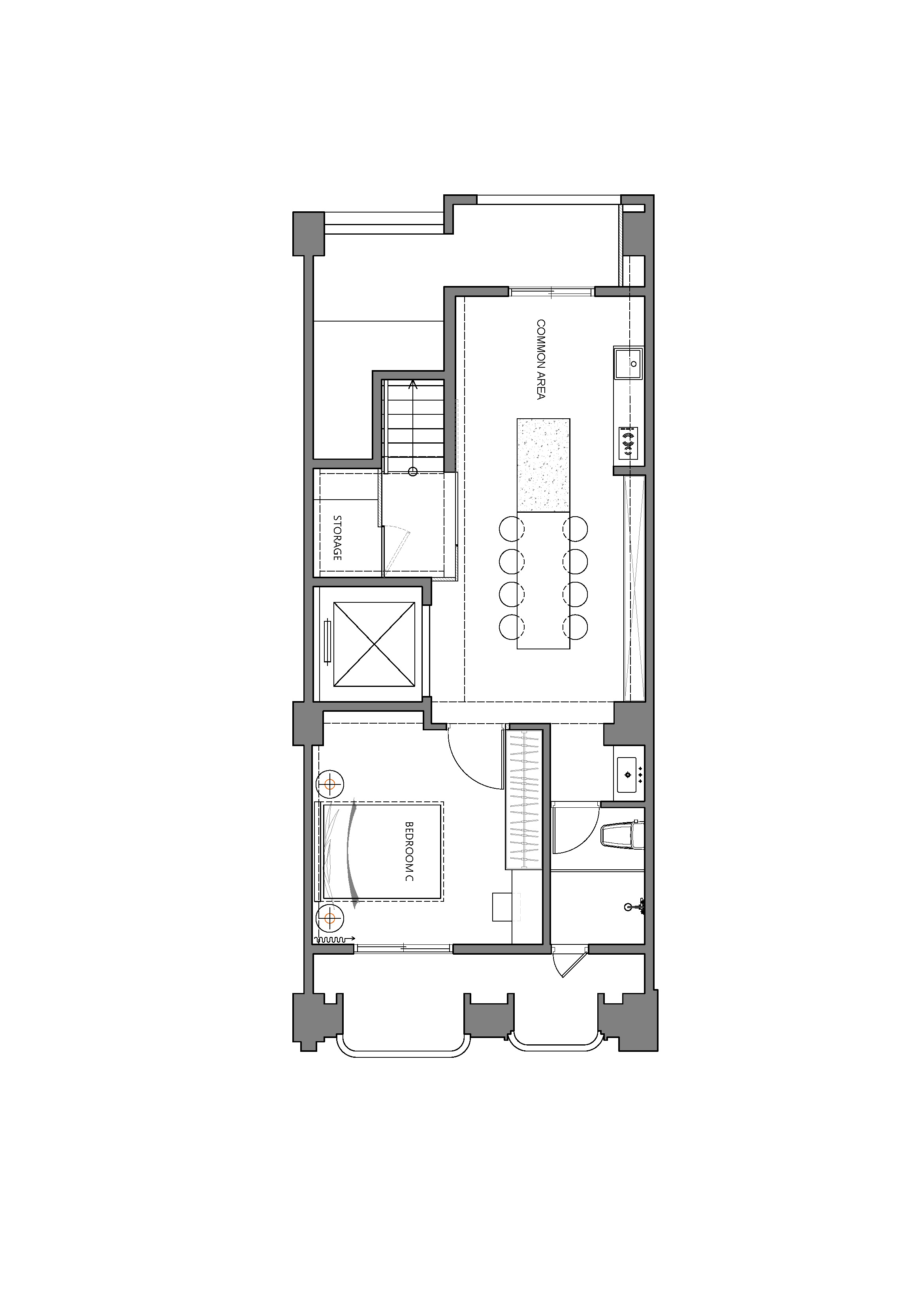
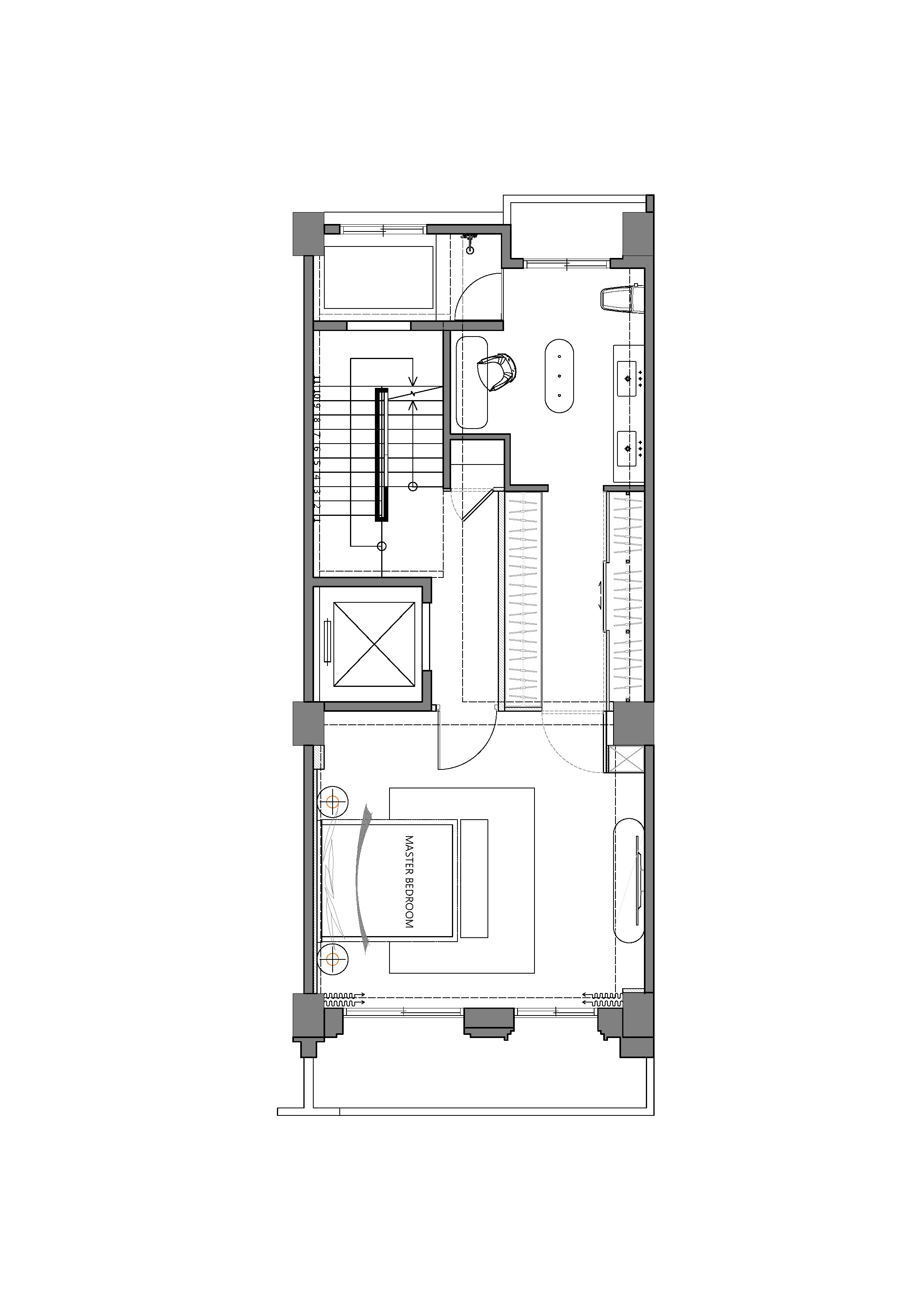
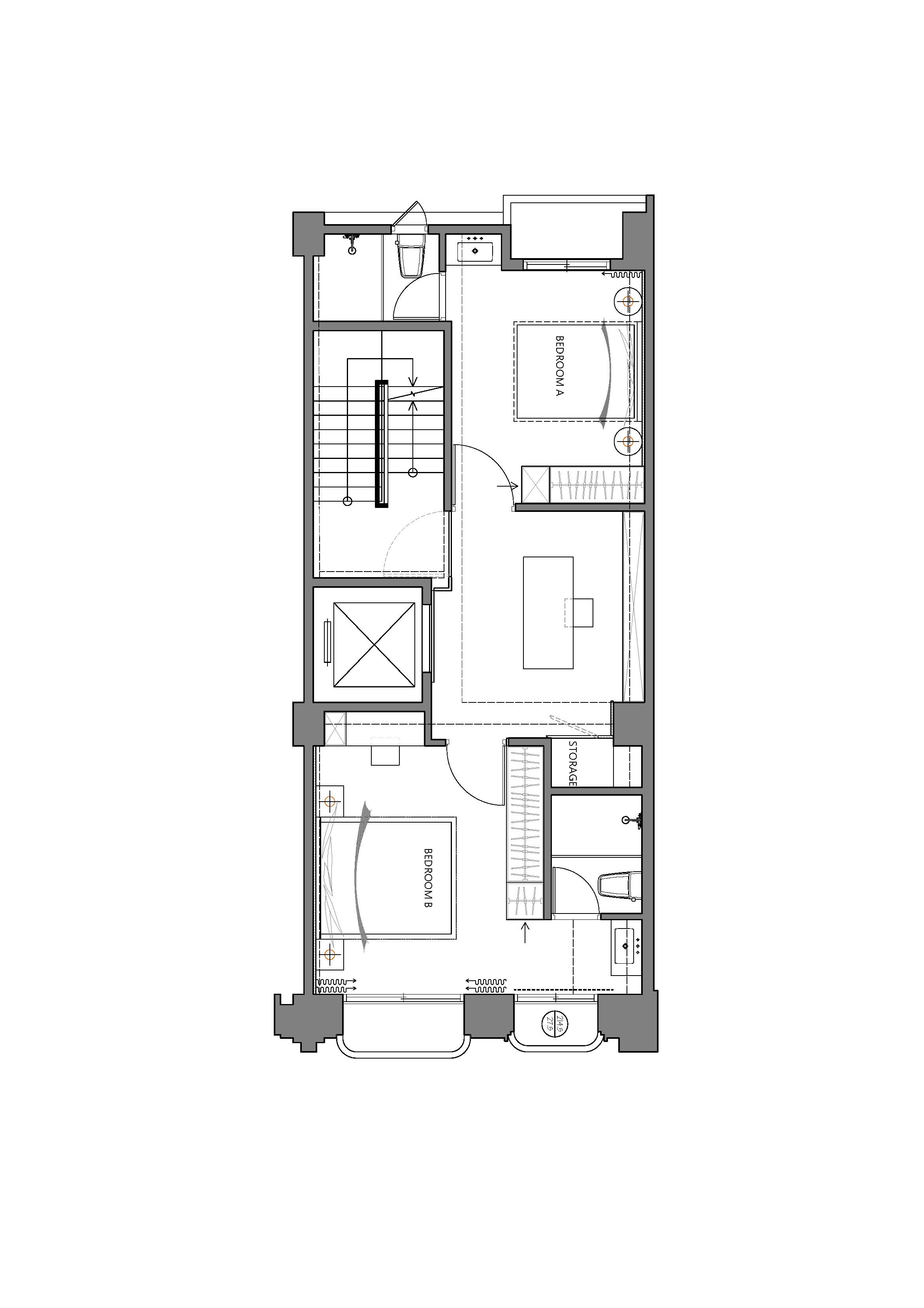
空间布局:本案以「生活動線優先」為空間規劃核心,重新梳理公共與私領域之間的關係,使行走路徑更直覺、視線更通透。
公共空間採開放式整合配置,降低實體隔間比例,讓光線與景觀得以自然滲透至室內深處。
-
设计选材:透過色調配置營造空間氛圍,降低對複雜裝修與高耗材工法的依賴。以低彩度、中性色系作為主要基調,使空間在視覺上保持穩定與延續性,並能隨光線變化展現細膩層次。
客廳及主臥室以植栽作為柔化空間的重要媒介,與中性色背景形成對比,使空間在不增加結構負擔的情況下,保有溫度與生命感。 -
用户体验:「像是把風景帶進生活裡」的直覺感受,而非單純觀看一個展示空間。設計在美感、實用性與情緒價值之間取得平衡,使作品不僅具展示意義,更具備長期居住與生活延續的真實品質。
0
0

认证 · 让您身份增值