-
项目定位:本项目以 “暗调极简・质感私域” 为定位,打破传统自建房分区模式:以深木、黑石为基底,用金属、肌理装置作点睛,通过无界洄游动线整合餐厨客办公区;以光影为滤镜弱化原始结构,塑造兼具松弛感与高级感的城市近郊私享居所,让自建房成为功能与美学共生的当代生活场域。
-
空间意境:1.摒弃自建房常见的亮堂风格,以深木、黑石为基底,用肌理装置与金属件中和暗调压抑感,实现 “暗而不沉” 的轻奢氛围。
2.工业风金属、自然木纹、手工肌理墙的碰撞,消解自建房的 “土气”,让其能够拥有当代艺术场域的质感。 -
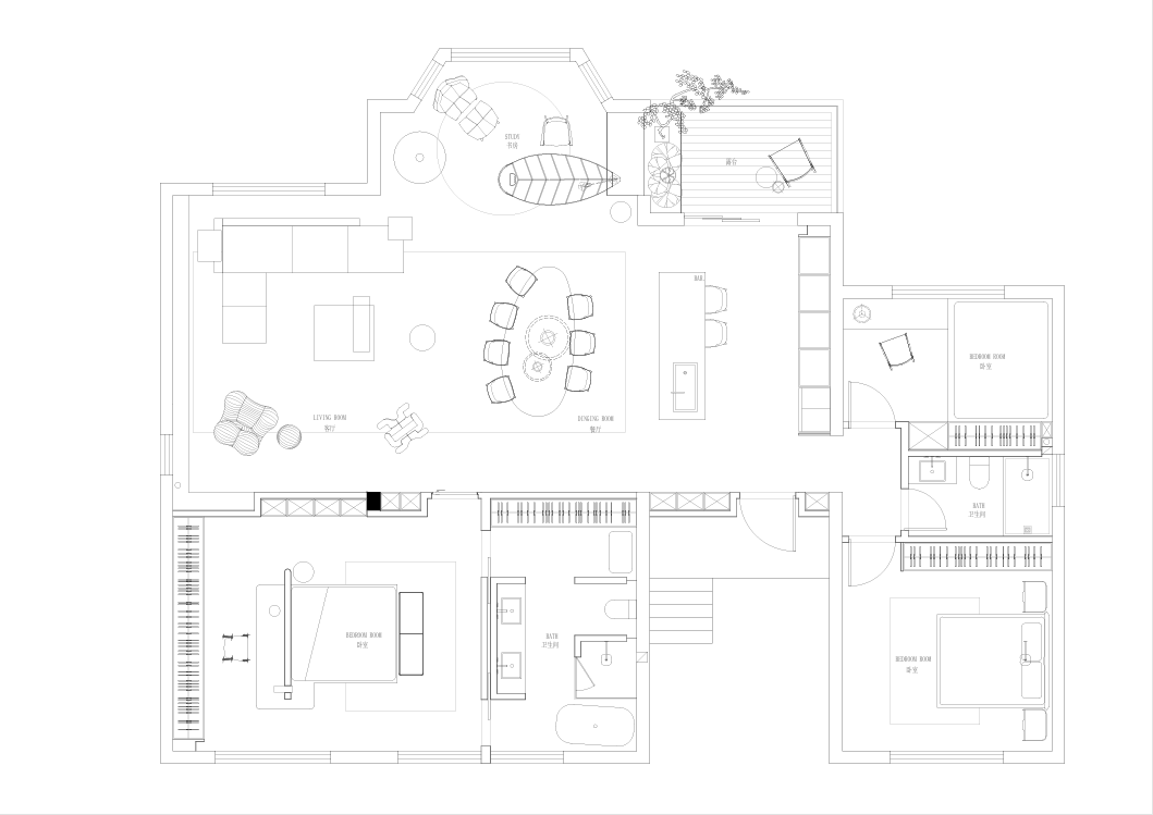
空间布局:1.打破自建房 “餐厨客分离” 的刻板分区,以洄游动线串联厨房中岛、用餐区、沙发休闲角与轻办公区,用开阔尺度适配多元生活场景。
2.利用自建房的大面宽优势,以 “隐形收纳 + 通透隔断” 弱化原始梁柱,既保留空间开阔感,又通过模块化布局实现场景灵活切换。
3.单空间同时承载聚餐、独处、轻办公等需求,让自建房的宽松尺度转化为 “一域多用” 的生活弹性,适配当代复合化生活方式。 -
设计选材:选高耐磨木纹、防污石材,减少自建房长期使用中的翻新频次,以 “长效使用” 实现隐性低碳与经济收益。
-
用户体验:项目投入使用后,空间动线流畅舒适,功能布局贴合日常多元生活需求,材质质感与光影氛围相得益彰,整体环境兼具高级美学感与生活松弛感。业主反馈改造后空间利用率大幅提升,居住体验舒适且极具品质感,兼顾实用性与颜值感,是兼具美学价值与宜居属性的理想居所。
0
0

认证 · 让您身份增值
169