-
项目定位:本案设计围绕“沉稳、极简、高效”的主旋律,在细节中恰到好处的体现了业主的品味与追求。整个开放式设计让公共区域更为通透自由,极大程度的促进了家庭成员之间的无碍交流。卧室区域则多是休憩的私人场域,独立空间互不影响,充分体现了家庭式私人场域的爱与和谐。
-
空间意境:在这个家的构建的构建中,设计师采用直接而简约的表达方式,回归生活本质,避免过度装饰。
-
空间布局:开放式洄游动线形成流畅的功能联动。凭窗远眺的悠然闲适,每一处尺度与材质都显露出真诚,用心营造出的空间让居住者自然且轻松。
-
设计选材:给业主选了艺术漆,现场调色,颜色偏向于浅米色
低饱和的奶灰色调+细腻到犯规的绒感肌理,远看是干净利落的雾面质感,近摸像在rua高级丝绒布料,软fufu的温润触感,连业主家的猫都爱趴在墙边蹭来蹭去 -
用户体验:入住一年后的回访,业主坦言:“这个家不仅维系和滋养了自己的精神世界,还养成了属于自己的生活方式。”让他们如期入住功能,美观及细节于一身的Dreamhouse,也让我们觉得装修原来可以如此简单,你要什么功能,要什么效果,坐等落地就行。
在这个家的构建的构建中,设计师采用直接而简约的表达方式,回归生活本质,避免过度装饰。开放式洄游动线形成流畅的功能联动。凭窗远眺的悠然闲适,每一处尺度与材质都显露出真诚,用心营造出的空间让居住者自然且轻松。
生命是一万次春和景明 春水煎茶 忽听春谕 Life is ten thousand times Spring water tea suddenly listen to spring oracle 暮色渐浓,天际的最后一抹光晕如叹息般隐退,湖面化作一面幽深的镜,映照着远方星点的灯火与高楼的剪影。
开放式布局打破了传统的区域界限,客厅与多功能厅空间流畅衔接,让家人的互动自然而然的发生。不锈钢展示架让藏品焕发光彩,黑色岛台和木色长桌的组合,兼顾实用与温度的设计,让日常的烟火气里也藏着细碎的美好。
岛台与多功能桌成为家庭核心区,插花、手工、学习与游戏皆可在此展开。孩子玩耍时,家长也能随时照看,彼此视线相连却互不干扰。空间兼顾开放与独立,让陪伴融入日常,赋予生活更多互动与温情。
设计师以细腻笔触写空间共性与个性。开阔格局始终保有舒展的呼吸感,而那些精心挑选的艺术装饰品——从装饰摆件到挂画。恰是居住者性格的立体注脚,让空间叙事更添层次与温度。
窗外既画 家中藏镜 Painting outside the window There is a mirror hidden in rhe house 极简主义的外表之下,藏着一套精妙的设计语法。每一处收口、每一道接缝,都经过静密计算与打磨,功能与美学表达在微观细节里达成默契的共识。
餐厨空间里总是藏着家里的确幸, 味蕾开放,闲适松弛, The kitchen space is always full of family bliss, Taste buds open, leisure is relaxation, 餐厅的冷色调与木作与地砖形成呼应,延续了客厅张弛有度的氛围。顺着Fragment吊灯自上而下,圆形餐桌搭配不同形态的中古单椅,不锈钢层板搭配石材肌理背景,呈现先锋与中古家具混搭的设计。
用三分之一的时间,拥抱柔软, 剩下三分之二的人生,才能坚强应对。
鲸落于海星沉于洼 美好 在细碎日常里恰逢其时 A whale falls like a starfish and sinks like a puddle There's a good time for beauty in small, everyday things 私密空间以低饱和度色调铺陈,晕染出疗愈身心的温柔氛围。落地窗如幕,将四季流转的湖景揽入室内,优质床品带来妥帖的舒适感,而空间刻意省去多余装饰,只为让居住者感受风景的馈赠与内在的宁静。
设计通过材质与光线的连贯作用,巧妙的模糊卧室空间的物理界限,在保证功能完备的同时营造整体空间的物理界限,业主期待的独立浴缸被精心规划入内,配合柔和的自然光和灯光,将日常洗浴升级为沉浸式的身心疗愈体验。
空间的每一寸面积经过静密规划,在实用与留白意境间达成完美平衡。靠墙做一排衣柜作为收纳系统悄然藏起生活琐碎,为居住者释放出一方纯净的生活舞台。
考虑父母如厕的便利,毕竟身体机能等状况与年轻人不同,老人夜间使用马桶间的机会往往会更多些,因此,需要设置在离长辈房更近的位置 设计了一个独立的马桶间, 不仅提升了使用的便捷性,还兼顾了卫生与隐私。
公共区域打造二分离设计,洗手台被巧妙外置在门口,能满足不同的需求,更加方便日常生活。考虑到日常的清洁,洗手台做悬浮设计,台面选择可丽耐一体盆,极易打理且不怕水。
原始结构
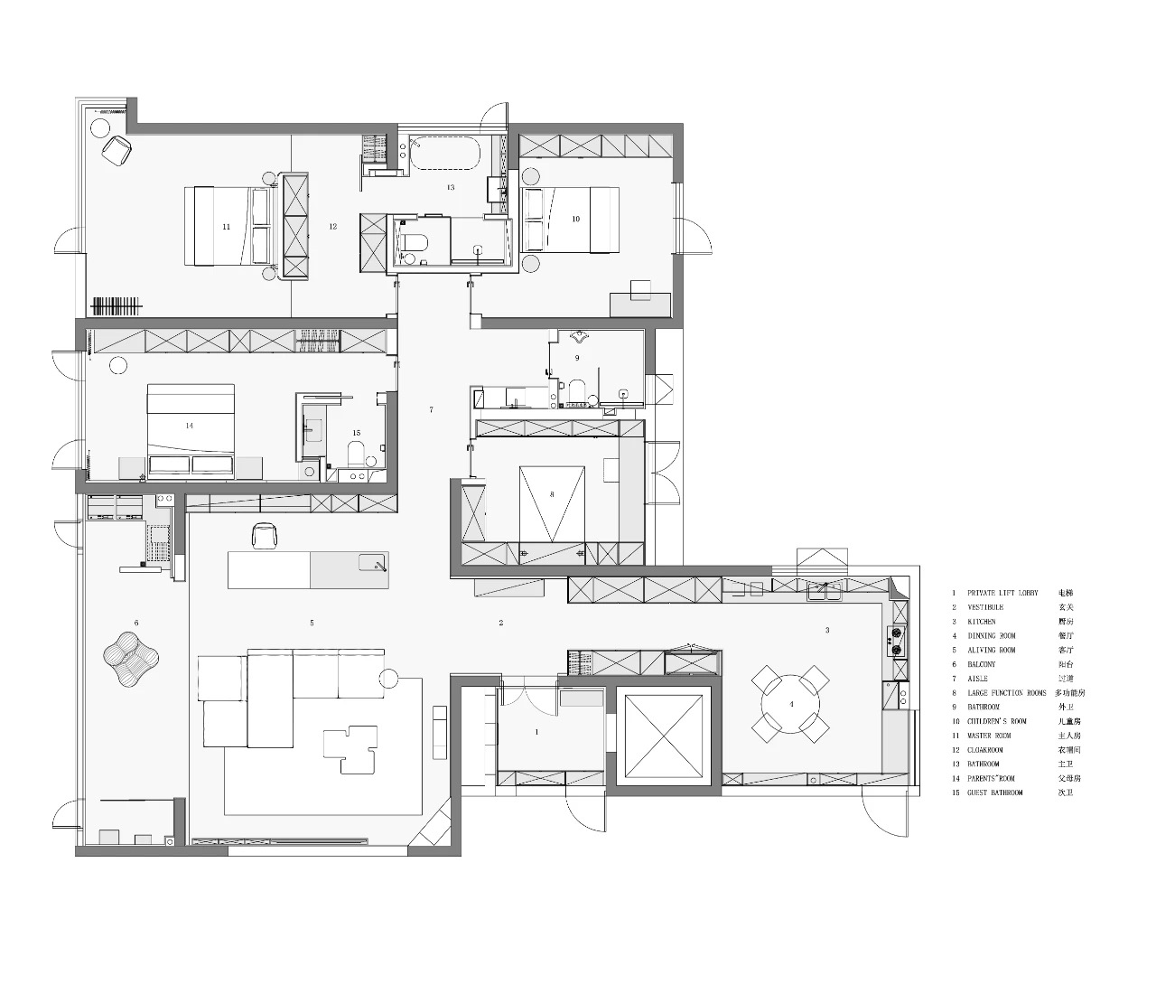
平面方案
0
0

认证 · 让您身份增值
260