顶层构成法则
120
作品说明
- 项目类型:住宅公寓
- 项目地点:福州市
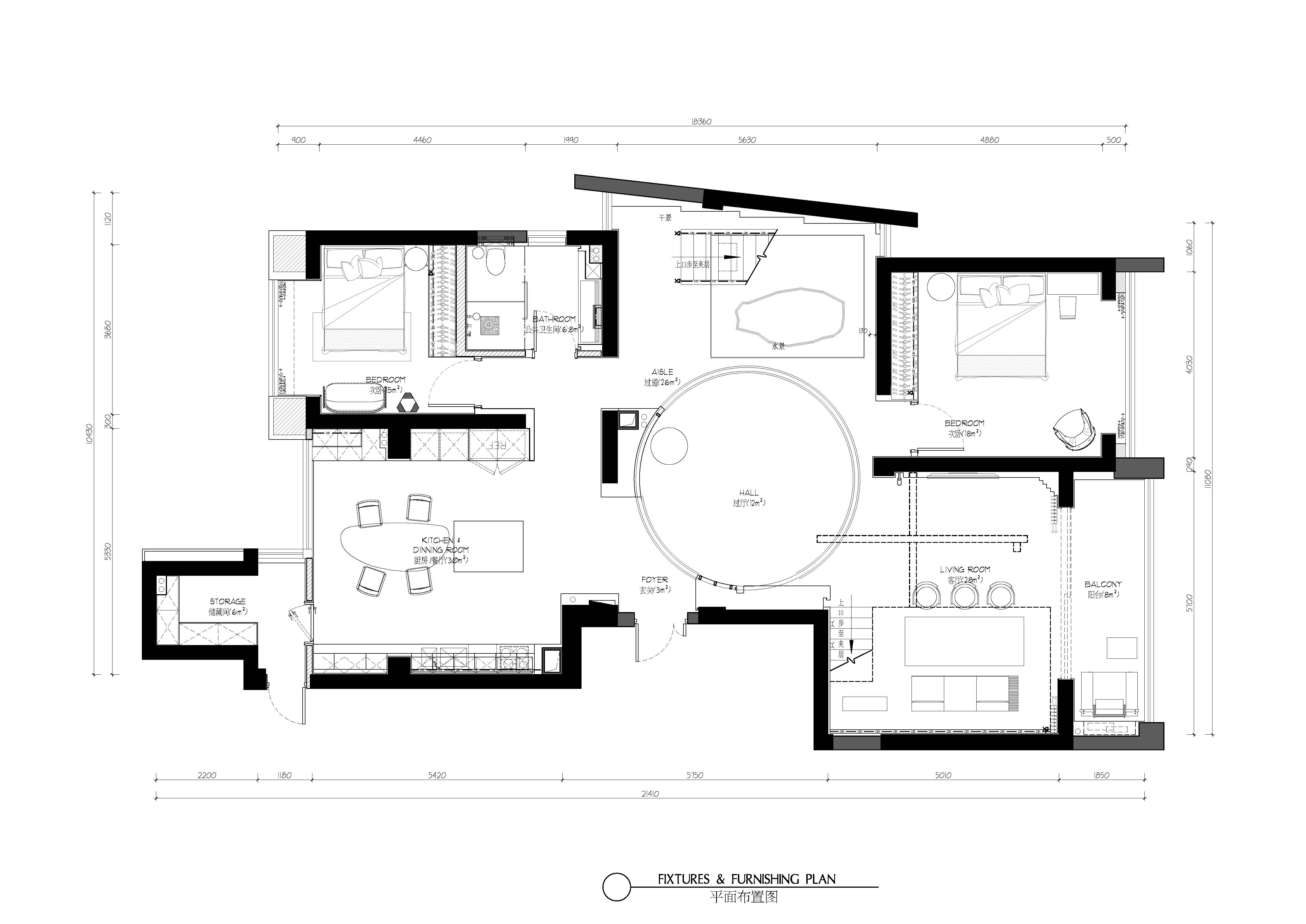
- 建筑面积:280㎡
- 项目造价:700万元
- 参与设计师:何华武
- 竣工时间:2025
- 设计机构:VHD维度华伍德设计机构
票数 : 2
-
项目定位:以勒·柯布西耶的现代主义理论为基础,将建筑从传统的规则与形式中解放出来,建立了具有「解构主义」色彩的实验性风格。不断寻找与传统建筑毫无联系的对立和哲学、语言学等学科之间的对话。在满足内部功能需要和协调客观环境的同时利用体块间的对抗与冲突关系打破空间的稳定性,挑战人们对于空间的传统认知观。
-
空间意境:空间从传统的规则与形式中解放出来,建立了具有「解构主义」色彩的实验性风格。空间是分析性的,但其规范却随着时间而变化。因此,设计不断寻找与传统建筑毫无联系的对立和哲学、语言学等学科之间的对话。
-
空间布局:探索空间的本质结构,脱离意义的表达,空间要自我分析,使空间元素寻求自己的意义。住宅系列使用梁板柱作为框架结构语言,脱离于承重逻辑,作为原始的、探索空间的结构形式,去构成空间的点线面。建立了一套新的规则,虽然用这套规则可以创造无穷的形式,但是从本质上来说却又是建立在一定的限定性基础之上的。
-
设计选材:设计过程的建筑语言刻意地将建筑室内的纯几何关系的生成过程在建筑上反映出来。以梁、柱、墙作为单词、句子和段落,发展了一套独特的由点到网络的空间语言。「解构主义」旨在消除任何传统意义上的逻辑或象征,代之以应用新的规则和解释。建筑语言刻意地将建筑室内的纯几何关系的生成过程在建筑空间上反映出来。
-
用户体验:我们可以感觉到非常明显的风格化呈现,对于垂直、平行空间架构的重塑。对现代主义正统原则和标准批判地加以继承,用分解的观念,强调打碎,叠加,重组,重视个体,部件本身,反对总体统一而创造出支离破碎和不确定感,从而形成一种独特的设计美学。
0
0

认证 · 让您身份增值