-
项目定位:本方案为打造一个融合品牌展示、高效办公与客户体验于一体的现代企业空间。设计从印刷工艺中汲取灵感,将“色彩、精度与纸张艺术”作为核心语言,贯穿整个环境。
-
空间意境:以建筑感的体块、水平构成、秩序化、几何感、体块感、色系、造型语言等提炼,介入室内,呈现美学与功能。为员工构建了一个能激发灵感、缓解压力并传递温暖的办公环境。营造出特质的澳群彩印企业形象与现代化伟大的企业空间环境格调。
-
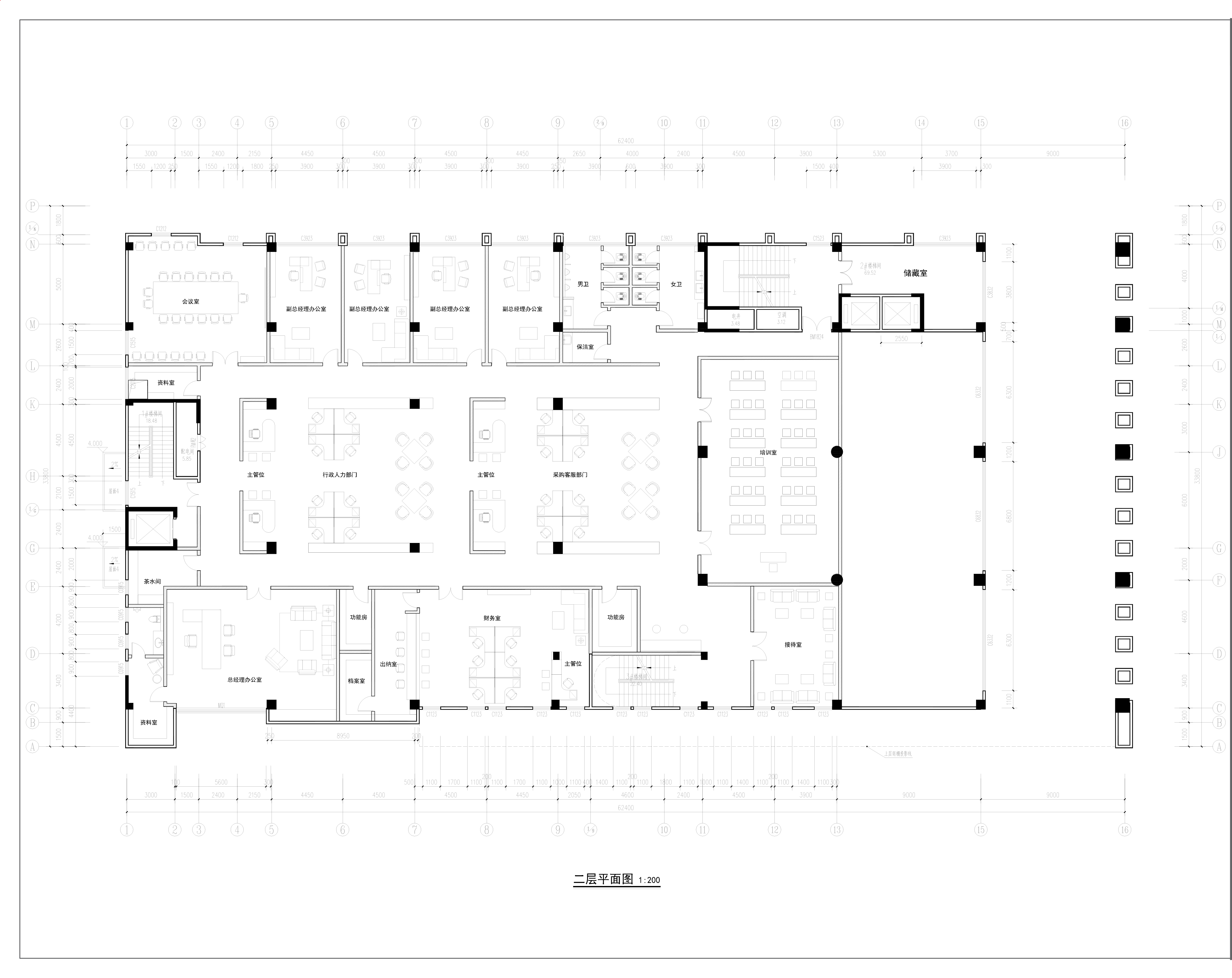
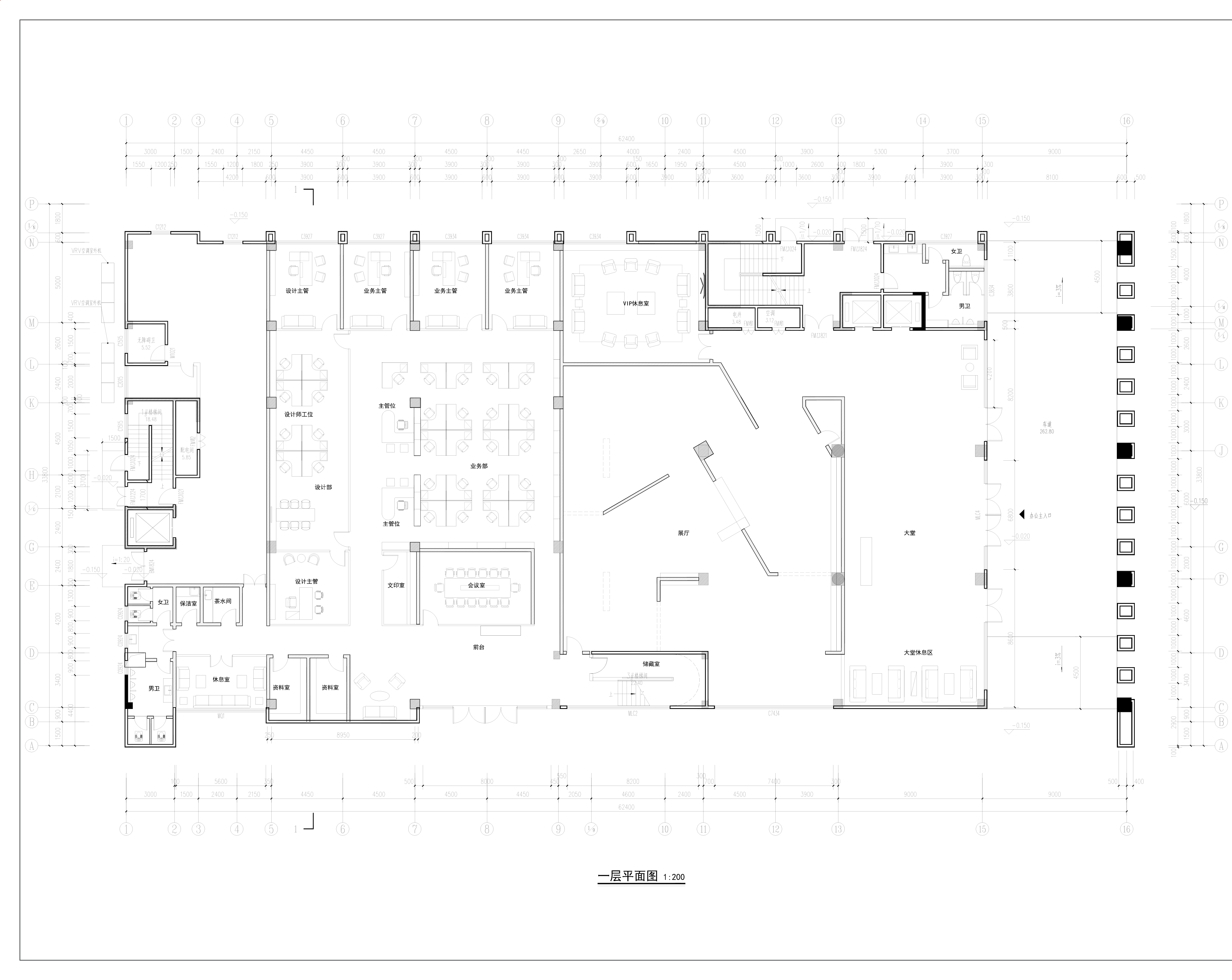
空间布局:入口大厅以利落的线条与石材金属材质,奠定专业与精致的基调;企业形象墙与灯光设计共同营造出强烈的视觉张力,直观传递品牌实力。开放办公区摒弃冗杂,通过科学的灯光布局与灵动协作点的设置,构建出明亮通透、促进交流的工作氛围,局部点缀的品牌色悄然焕发活力。
核心的展厅区域与流线无缝衔接,通过模块化与多媒体手段,将公司精湛的工艺与成品转化为可触可感的沉浸式体验。空间整体运用精准的灯光聚焦与材质对比,极致凸显印刷品的细腻质感,使整个办公环境本身成为澳群印刷最有力的品质宣言。 -
设计选材:采用了灵活多变的轻型连接系统,体块穿插之下空间生成许多叠加部分,不同角度和距离之间能形成多层次的视觉画面,创造自由且舒适的开放办公场景。开放式格局打破了传统办公室中各部门之间的隔阂,使得员工能够进行面对面交流和协作,提供源源不断的活力因子,激荡出意想不到的创意火花。
以减法设计创造空间,实践减碳目标的同时,也在激励员工探索新的工作方式,从而激发创造力。 -
用户体验:在繁华的钢筋水泥丛林间,一个静谧而舒适的人性化工作与社交场景的重要性与珍贵性不言而喻。设计师创造出与品牌理念相融合的动态场景,让自然的气质、律动的节奏和持久积极的生活状态凝聚在办公空间设计中。
0
0

认证 · 让您身份增值
276