-
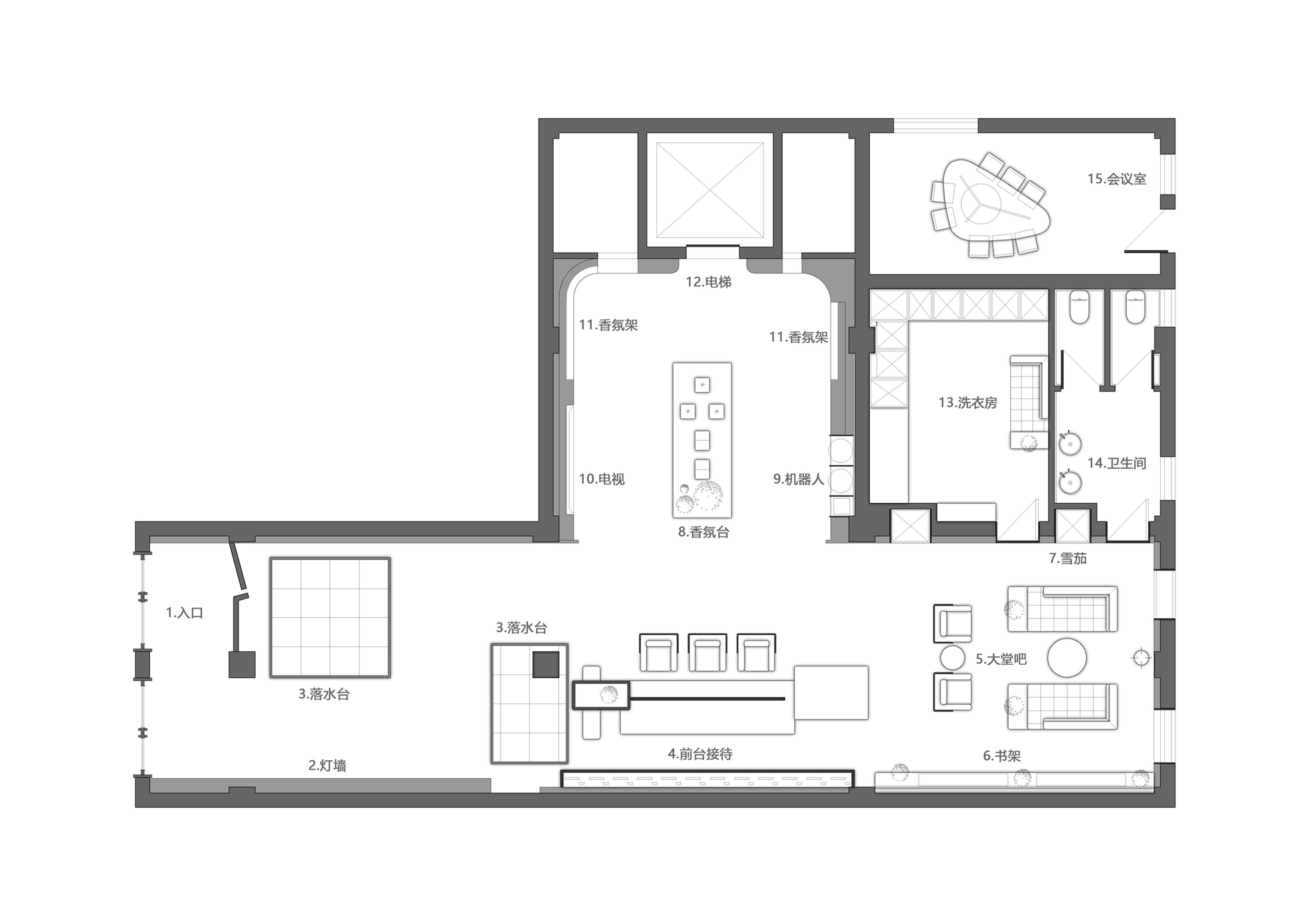
项目定位:传统的酒店空间都在通过重资本投入从而获得客户粘度,此次我们希望从设计出发,以人为本,从空间的艺术感,疗愈感出发,增加业态本身的缺口项目,打造不一样的体验感,从而增加客户粘度。
-
空间意境:自然舒适疗愈的空间,迷人的香氛,滴答的落水链,绕梁的音乐都是令人身心放松的极致体验。
-
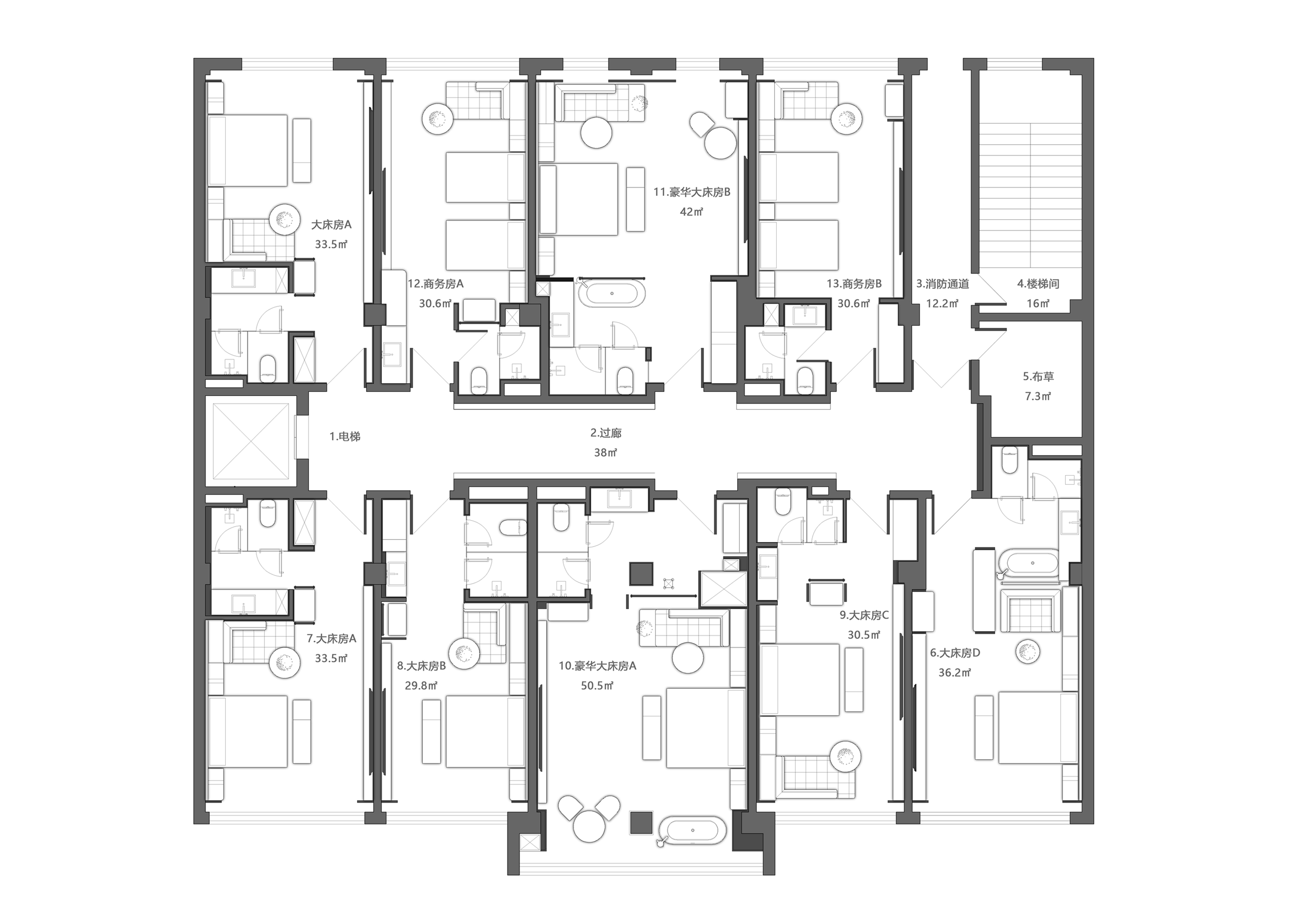
空间布局:将空间更多的释放给到真正的使用者。
-
设计选材:在地的石材与木材,粗狂的砂石膏。形成鲜明的对比。
-
用户体验:很多的质疑,但都喜欢空间的氛围。
0
0

认证 · 让您身份增值
208