笑傲江湖
259
作品说明
- 项目类型:休闲娱乐
- 项目地点:常州市
- 建筑面积:310㎡
- 项目造价:50万元
- 参与设计师:贺韩成
- 竣工时间:2025年5月6日
- 设计机构:无界美学(常州)空间设计
票数 : 3
-
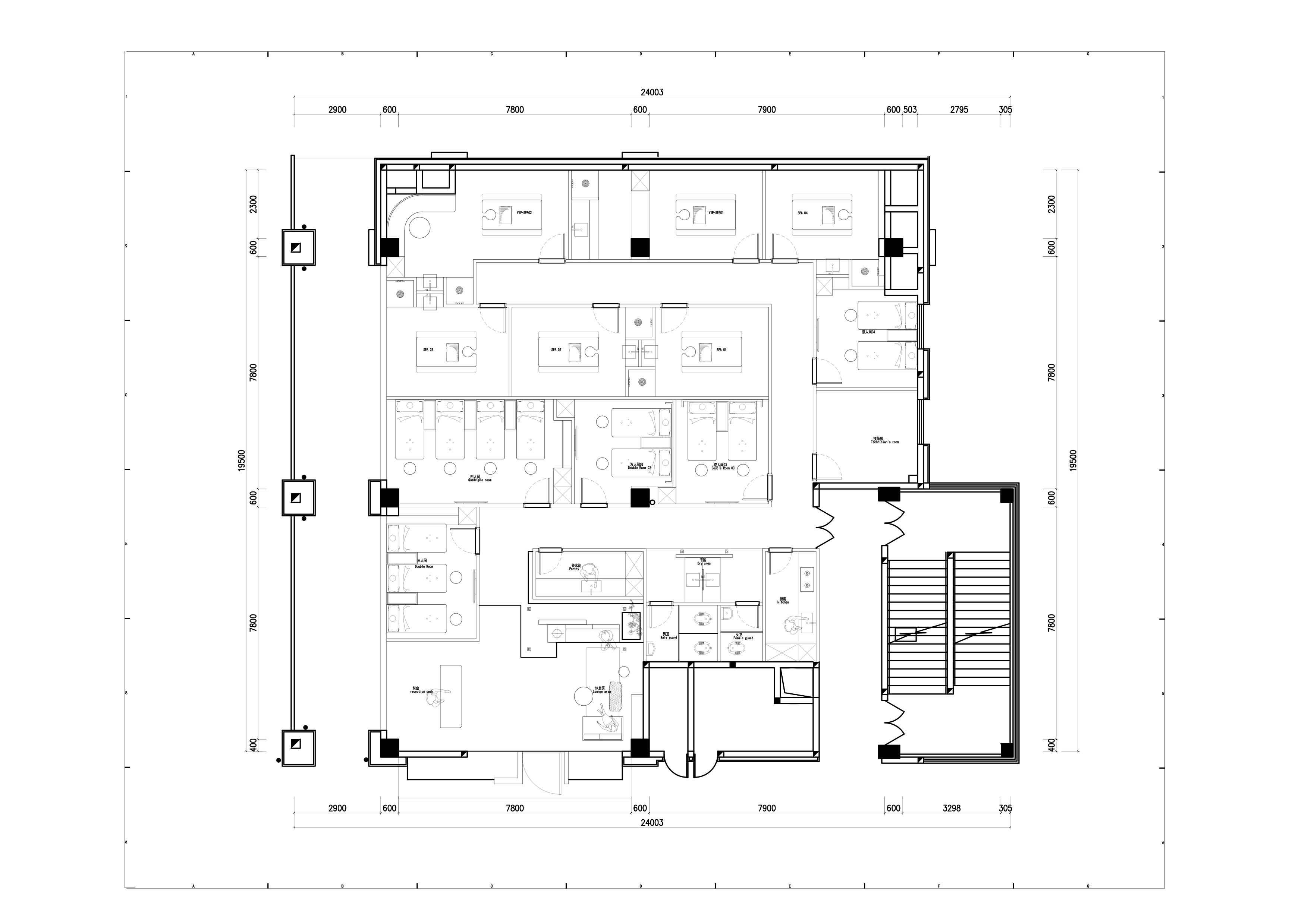
项目定位:本案策划方向:1地域消费文化,2五感疗愈从视觉到全感官提升,3运营动线功能效率的提升
定位:以设计平衡商业价值与人文温度,让每一位都市人在此暂别喧嚣,重拾身心松弛感。 -
空间意境:运用五感疗愈,从视觉到全感官。
视觉:3000K暖光+无主灯设计,勾勒莱姆石自然材质肌理
听觉:定制地域音乐,双层隔音隔绝喧嚣
嗅觉:分区定制淡香,似有若无不压迫
触觉:全空间亲肤材质,拒绝冰冷硬质触感
味觉:适配地域气候的草本养生茶,延伸疗愈体验 -
空间布局:空间布局:将园林造景融入休闲厅,整个项目所需功能多,运用一条半环形通道贯穿各功能区,满足消防要求,动和静区分开布局,服务人员居中最便捷服务
-
设计选材:在选材上运用了火山岩石,莱姆石艺术漆,木纹碳晶板,水景砖,铁艺格栅,火山岩石丰富的孔洞给空间增加氛围与质感,所用材料满足商场的防火要求且经济耐用。
-
用户体验:本案是客户老店重新选址的新案,跟老店有质的飞跃,客户满意度极高,客户的会员数大幅增加
0
0

认证 · 让您身份增值