-
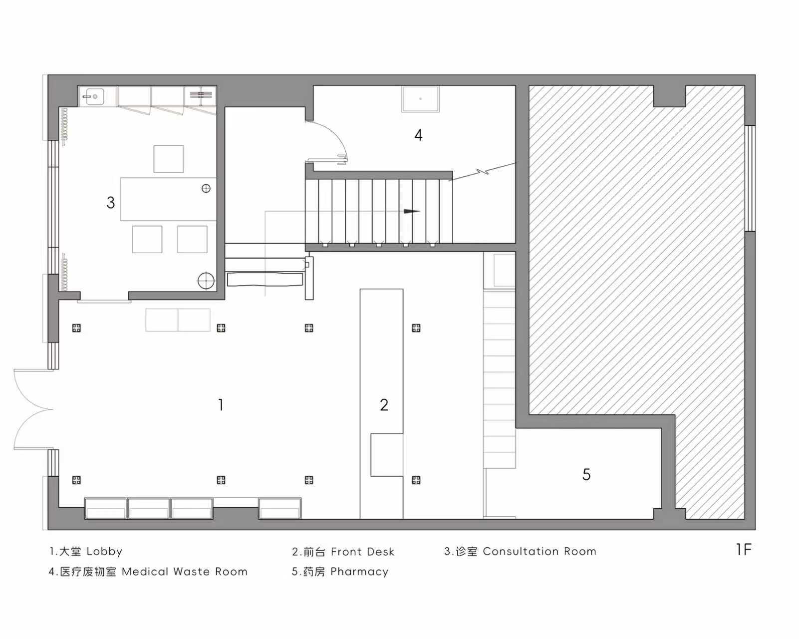
项目定位:用现代的设计语言去解决中式命题,有限的预算下,轻量化介入,使用4公分的镀锌方管利用榫卯形式建构起梁柱装置,形成空间关系。
-
空间意境:4公分直径的方管极为轻巧,覆以深红色漆面更加明快与活力。建构的梁柱结构与空间的顶,立面产生多维的层次关系,丰富了观看的视角,释放出强烈的秩序感和稳定感,重构了空间的多维感知。
-
空间布局:榫卯结构的梁柱装置,将中国传统建筑意蕴抽象化,回应了中医传统与现代的碰撞,完成场所精神的表达。
-
设计选材:有限的预算下,轻量化介入,使用4公分的镀锌方管利用榫卯形式建构起梁柱装置,形成空间关系。
-
用户体验:甲方极度认可设计的呈现,在预算有限的情况下使空间层次及效果完美体现,有较强的视觉冲击力。
0
0

认证 · 让您身份增值
273