-
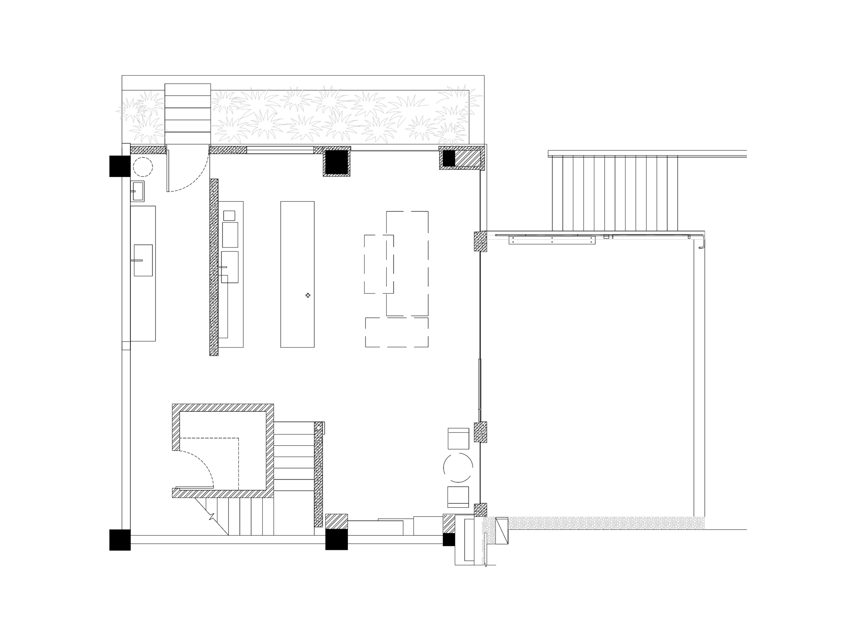
项目定位:本项目位于重庆,以“混凝土与花卉”“永恒与瞬息”为设计理念,打造一个极简花艺空间。空间语言以混凝土的粗粝质感为基底,与花卉的柔美形成张力。设计采用现浇混凝土的模块化施工方式,以“悬浮桥体+核心筒”结构实现功能与美学的平衡。 “桥”的元素既是垂直动线的连接,也寓意动与静的平衡。立面采用大面积玻璃幕墙系统,引入充足自然光,让光线成为空间构成的一部分,随着时间流动在室内雕刻出层次与诗意。
-
空间意境:空间场景来源于重庆独特的山地城市肌理。设计将高低错落、层层递进的城市天际线抽象为理性的几何语言,通过前景、中景、远景的分层构成,以及混凝土板片的堆叠与交错,重构出一个具有纵深感与节奏感的立体空间。不同体块在围合与释放之间形成张力,使空间在秩序之中保留复杂性,呈现出区别于常规商业花店的城市性与结构感。
-
空间布局:设计围绕着花艺行为的自然发生,构建了一个以功能核心筒为 “山体基座”的立体场域。通过将工作区无缝嵌入展示空间,传统的前后台界限被打破,配合一座轻盈悬浮的“桥”,连接起空间的上下维度与动静节奏。在这里,花艺制作、陈列展示与顾客的行走停留不再是简单的平铺,而是在立体动线中交织碰撞。
-
设计选材:材料选择以混凝土为主体,完整保留其浇筑后形成的裂纹、气孔与斧凿痕迹,将施工过程本身转化为空间表达的一部分,避免额外装饰层的叠加。材料体系以少而精为原则,减少复杂构造与高频维护需求,满足花店湿度变化与长期使用的现实条件。在细部层面,通过定制金属射灯、再利用墙体孔洞等方式,将功能嵌入结构之中,实现经济性、耐久性与空间完整度的平衡。
-
用户体验:项目投入使用后,空间在高频运营状态下依然保持良好的秩序与舒适度。顾客反馈空间具有放松、亲切的氛围,愿意停留与再次到访;花艺师在实际操作中也获得了更高的工作效率与空间自由度。空间逐渐融入周边日常生活,成为街区中被自然使用的一部分。
0
0

认证 · 让您身份增值
285