华禧MALL宴会中心
521
作品说明
- 项目类型:餐饮
- 项目地点:高安市
- 建筑面积:10240㎡
- 项目造价:1800万元
- 主案设计师: 王金华
- 参与设计师:程元金
- 竣工时间:2025年3月20日
- 设计机构:南昌华翔装饰设计工程有限公司
票数 : 40
-
项目定位:对于中国人来说,婚姻大事意义非凡。伴随着社会发展,“喜宴艺术中心”正成为越来越多中国家庭举办婚礼、宴请亲友的首选之地。这里不仅是见证幸福的重要舞台,更借助其专业的服务和独特的空间设计,为每对新人及其亲友留下珍贵且美好的婚礼记忆,坐落于高安的万平婚宴新坐标「华禧MALL宴会艺术中心」,历时多月精工雕琢,现已华彩启幕。其独栋建筑采用两层9米挑空结构,将“接待洽谈-婚俗展示-主题宴会厅”有序串联,每一处场景皆为仪式感量身打造。
-
空间意境:醒目的独栋建筑矗立于高安瑞阳新区城芯,其整体外立面以极具辨识度的设计语言,构建出与周围环境迥异的视觉张力,形成引人注目的差异化美学体验,让宾客尚未踏入便能感知这里的独特格调。步入前厅大堂,几何造型与线性灯光相互映衬,光影交织中既勾勒出空间的立体层次感,又点睛了整体氛围。得益于优越的层高优势及通透开放的格局,大堂纵向尺度与横向视野得以双重延伸,营造出兼具恢弘气度与轻盈呼吸感的开阔空间体验。
-
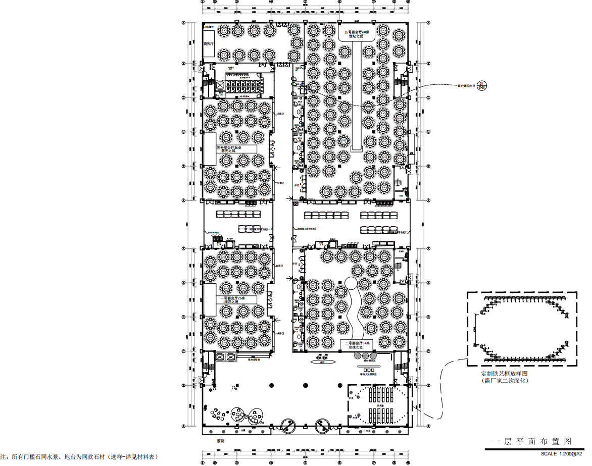
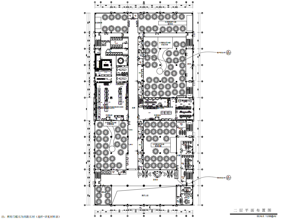
空间布局:为全面覆盖不同客群的多元化需求,华禧MALL宴会艺术中心推出八大风格主题宴会厅、两个专为亲子宴定制的宝宝厅以及一个高端商务厅,以差异化空间矩阵,为情感仪式、家庭欢聚、商务社交等提供个性化解决方案。
-
设计选材:基于空间利用率及宾客动线逻辑,将企业文化、宴会厅主题视觉系统具象化于过道墙面。通过连贯的视觉叙事形式,引导宾客在行进中自然感知“做有温度的企业、做有温度的服务”的品牌内核,我们运用了当下更为经济和环保的经济型材料,为投资人大大降低了投资成本。
-
用户体验:在这一处宴会艺术中心的打造中,我们紧扣实用性、艺术性及人性化体验三大核心维度,通过多维度空间策略,让场地成为功能完善的“服务载体”并承载爱情仪式感,真正实现商业价值与人文温度的双重兑现。
1-外立面实景
2-外立面实景
3-宴会厅接待大厅
4-宴会厅接待大厅
5-宴会厅接待大厅
6-宴会厅接待大厅
7-宴会厅接待大厅
8-宴会厅西式仪式堂
9-宴会厅西式仪式堂
10-宴会厅中式仪式堂
10-宴会厅中式仪式堂
11-海洋之境主题宴会厅
12-海洋之境主题宴会厅
13-海洋之境主题宴会厅
14-暮光之城主题宴会厅
15-暮光之城主题宴会厅
16-暮光之城主题宴会厅
17-玫瑰之恋主题宴会厅
18-玫瑰之恋主题宴会厅
19-玫瑰之恋主题宴会厅
20-玫瑰之恋主题宴会厅
21-莫奈庄园主题宴会厅
22-莫奈庄园主题宴会厅
23-莫奈庄园主题宴会厅
24-世纪之爱主题宴会厅
25-世纪之爱主题宴会厅
26-世纪之爱主题宴会厅
一楼平面图
二楼平面图
0
0

认证 · 让您身份增值