云南沙溪村边·合民宿
116
作品说明
- 项目类型:酒店
- 项目地点:大理白族自治州
- 建筑面积:800㎡
- 项目造价:600万元
- 主案设计师: 王远升
- 参与设计师:王远升
- 竣工时间:2025年9月20日
- 设计机构:天津尚也装饰工程有限公司
票数 : 0
-
项目定位:我们做民宿的设计,不是做“风格”,而是在做——生活的秩序感,真正打动人的设计,不是第一眼的惊艳,而是住进去之后的——不想离开。
-
空间意境:把一切装饰都退到身后,让材质和光影去表达情绪。
-
空间布局:没有浮夸的造型,也没有刻意的“高级感”,但每一个角落,都能让人慢下来。
-
设计选材:粗糙的墙面、温润的木头、慵懒的阳光,这些“普通”的元素,在一起就成了时间与宁静的容器。
-
用户体验:1️⃣中式庭院清净雅致,环境很美😭!推窗就是田园与远山云雾,锦鲤池与绿植相映,随手拍都是美景
2️⃣设施齐全,配有智能马桶,吹风机,品质洗护用品等,连护理包都备齐,细节满满!!
3️⃣管家热情,提供古镇接送,现摘现炒的农家菜,自制酸奶饼和蓝莓酱很好吃😋哦
----以上来自小红书用户
建筑外观
建筑外观
建筑外观
庭院外廊
建筑外观
建筑外观
庭院外廊
建筑外观
建筑外观
建筑外观
建筑外观
建筑外观
建筑外观
咖啡厅及早餐厅二层
咖啡厅及早餐厅二层
咖啡厅及早餐厅一层
咖啡厅及早餐厅二层
咖啡厅及早餐厅二层
咖啡厅及早餐厅二层
咖啡厅及早餐厅一层
咖啡厅及早餐厅二层
咖啡厅及早餐厅一层
咖啡厅及早餐厅一层
咖啡厅及早餐厅二层
咖啡厅及早餐厅一层
咖啡厅及早餐厅二层
咖啡厅及早餐厅二层露台
咖啡厅及早餐厅一层
咖啡厅及早餐厅二层露台
咖啡厅及早餐厅二层
咖啡厅及早餐厅二层
咖啡厅及早餐厅一层
客房
客房
客房
客房
客房
客房
客房
客房
客房
客房
客房
客房露台
客房露台
客房露台
客房
客房
客房
客房
客房
客房
客房
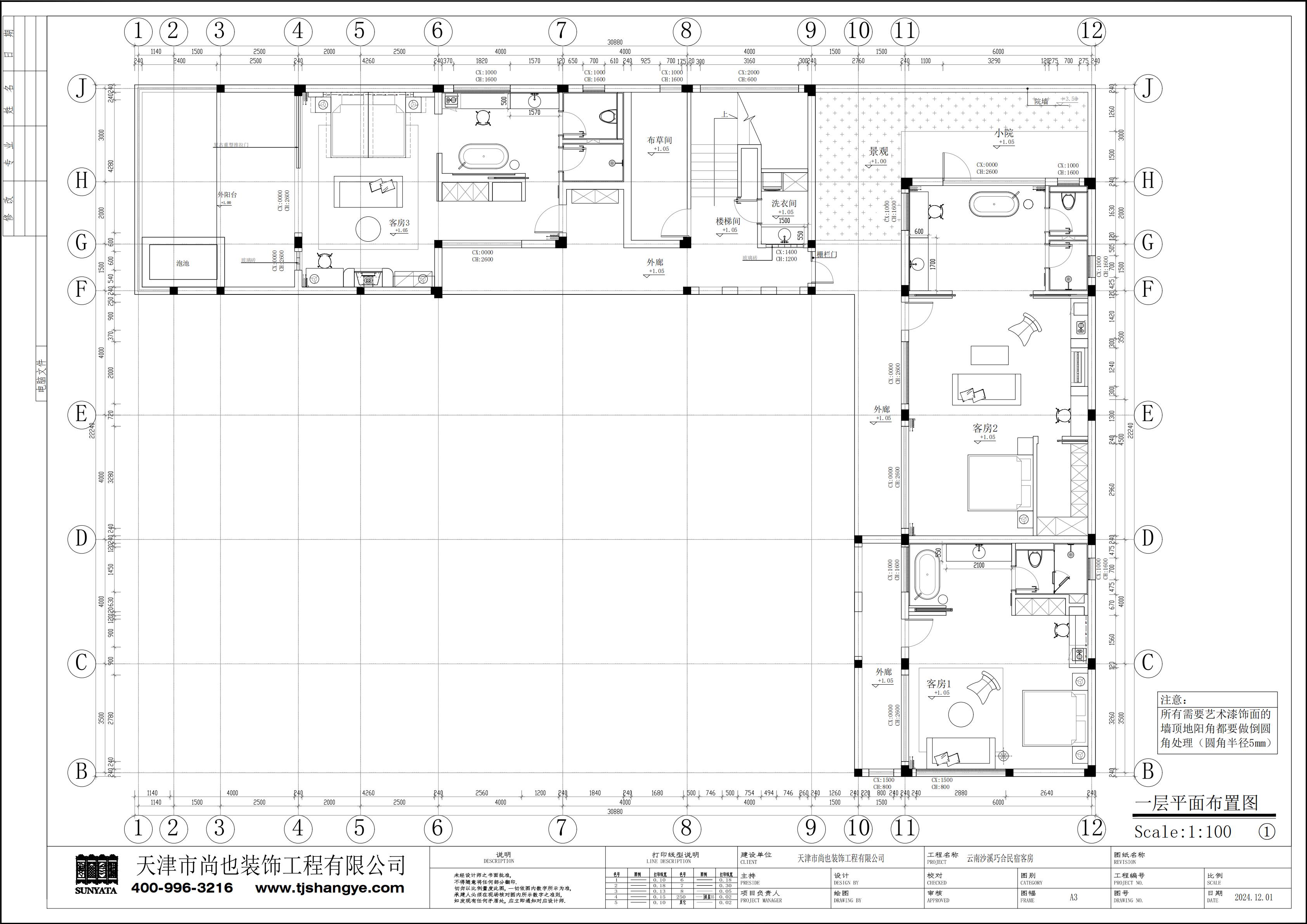
一层平面布置图
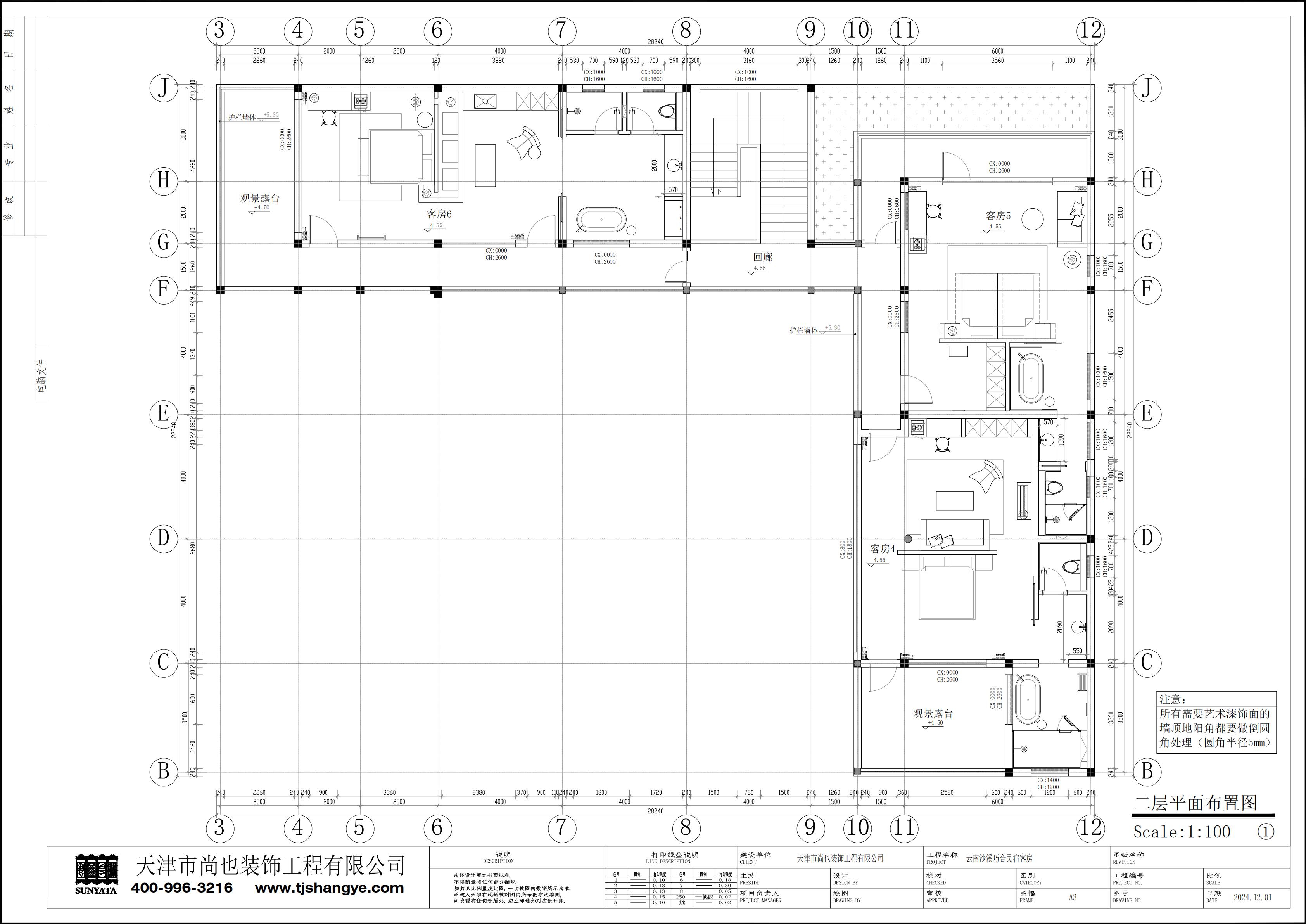
二层平面布置图
0
0

认证 · 让您身份增值