譬如朝露
200
作品说明
- 项目类型:别墅
- 项目地点:福州市
- 建筑面积:338㎡
- 项目造价:200万元
- 主案设计师: 陈航
- 参与设计师:陈航
- 竣工时间:2024年
- 设计机构:福州瑾诚设计
票数 : 0
-
项目定位:在纷繁复杂的现代生活中,本项目以“回归本质,简约致美”为核心设计理念,摒弃繁琐的装饰,通过简洁流畅的线条、纯粹的色彩搭配,营造出宁静、舒适且富有品味的居住空间,让居住者在简约中感受生活的本真与美好。
-
空间意境:整体空间以简洁的白色、绿色为底色,营造出干净、纯粹的氛围。减少不必要的装饰元素,采用简洁的线条,使空间显得开阔、通透,给人以视觉上的舒适感和心灵上的放松感。
-
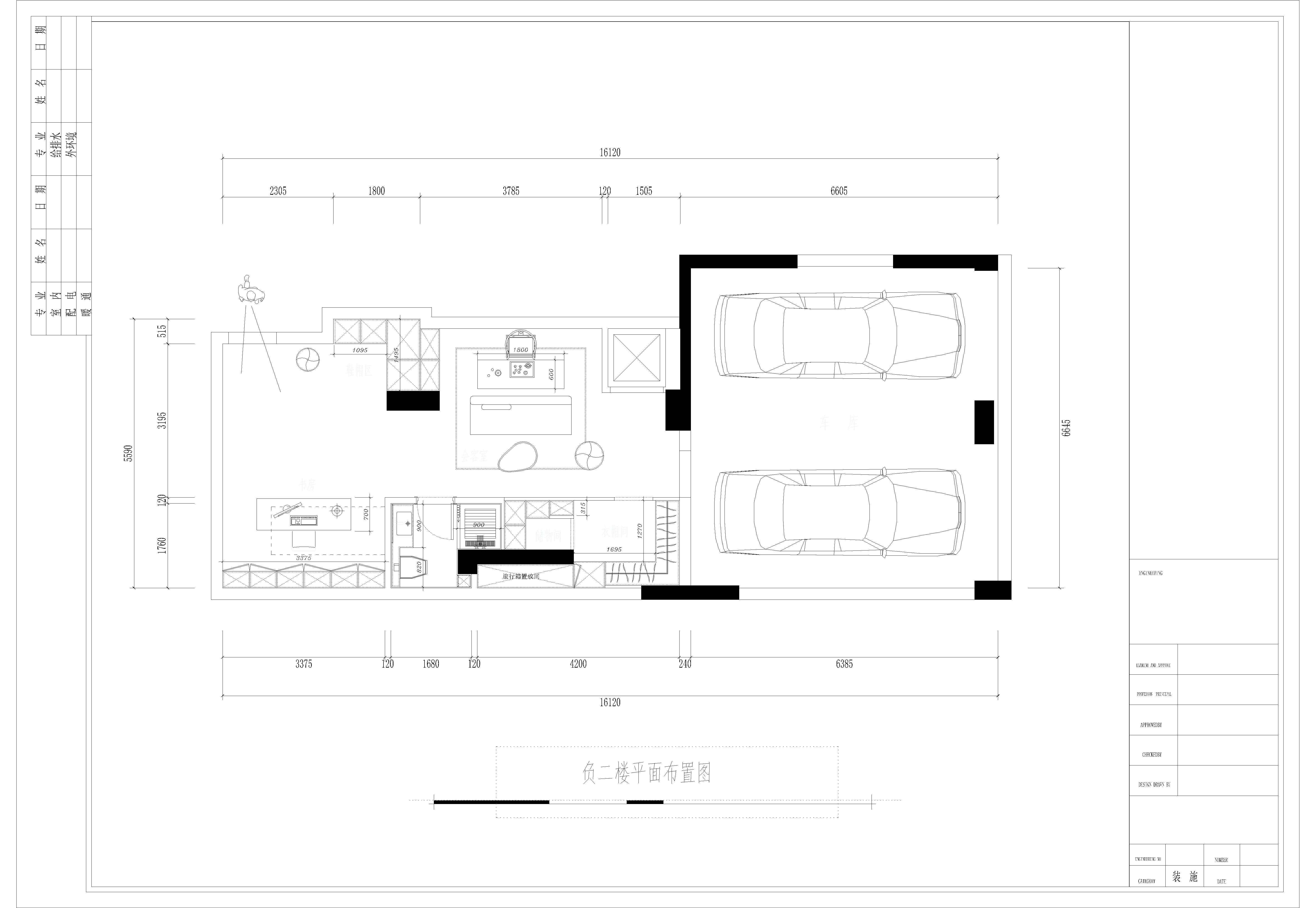
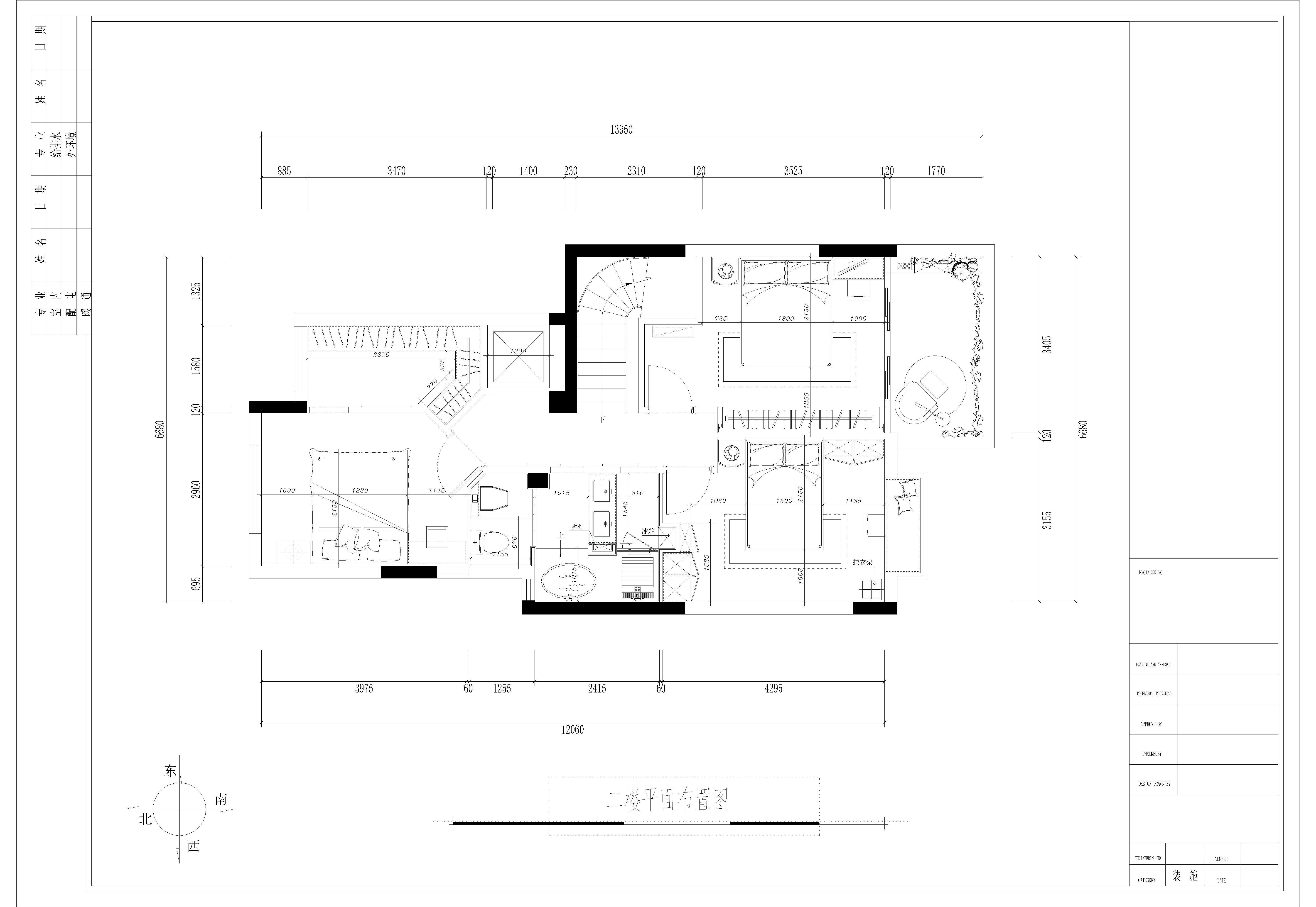
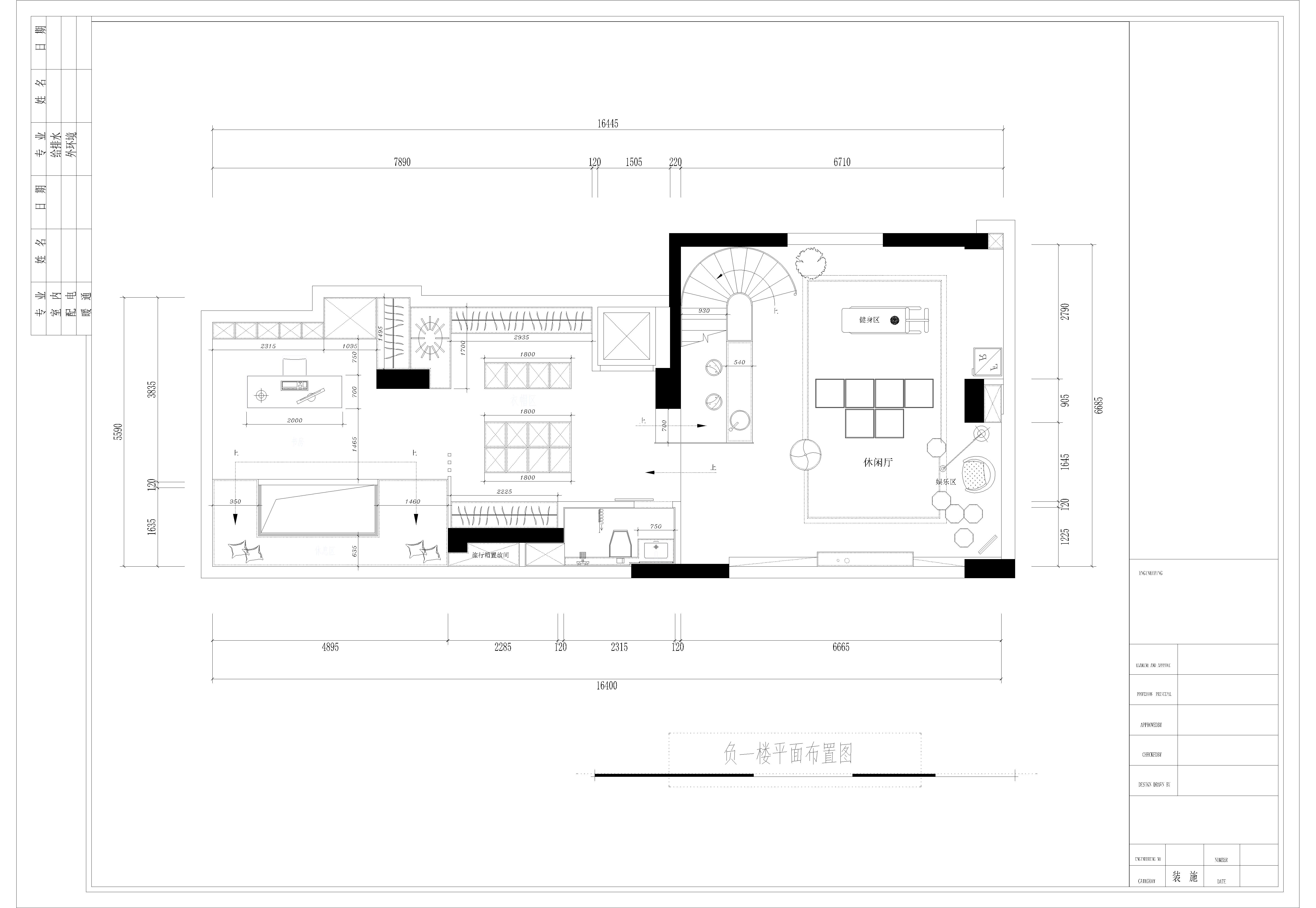
空间布局:本案厨房是开放式的布局,空间路线互相流通,从视觉上扩大了空间的延伸感。
风格上巧妙融入现代科技元素和个性化设计。例如,采用智能照明系统,根据不同的场景需求调节光线亮度和色温;在家具设计上,结合人体工程学原理,提升使用的舒适度和便利性。同时,通过独特的软装搭配,如艺术画、绿植等,为空间增添生机与活力,打造出具有独特个性的家居环境。 -
设计选材:本项目引入了新型低碳复合板材。这种板材以可再生材料如竹纤维、农作物秸秆等为主要原料,通过先进的工艺制成。与传统的木质板材相比,新型低碳复合板材在生产过程中能耗更低,碳排放更少。同时,它具有良好的物理性能,如强度高、防潮性好等,能够满足家具制作和室内装饰的需求。既保证了家具的质量和稳定性,又实现了低碳目标。在表面处理方面,选用环保型涂料和饰面材料。这些材料不含有害物质如甲醛、苯等,减少了对室内环境的污染,保障了居住者的健康,也有效的降低了材料成本。
-
用户体验:空间的灵活布局和实用功能得到了用户的高度认可。可移动、可组合的家具和隔断,为生活带来了极大的便利。用户表示,在举办家庭聚会时,方便亲朋好友之间的互动交流;此外,充足的收纳空间设计,让家居物品能够有序摆放,使整个空间始终保持整洁清爽。
0
0

认证 · 让您身份增值