留白里的生活
138
作品说明
- 项目类型:住宅公寓
- 项目地点:北京市
- 建筑面积:235㎡
- 项目造价:80万元
- 主案设计师: 杨云
- 参与设计师:金红 张悦
- 竣工时间:2025年10月
- 设计机构:道合空间设计机构
票数 : 1
-
项目定位:本案旨在营造一处能让人呼吸放缓、心绪安顿的居所。设计摒弃了传统的符号化语言,转而追求骨子里的静谧与平衡,以此作为连接古今的精神线索。空间中没有飞檐斗拱或水墨工笔,而是通过对留白尺度的极致把控、对物性本质的真诚探索,以及对自然韵律的微妙呼应,在当代框架内织就一份超越时间的安定感。
-
空间意境:我们以真实生活为中心展开构思,规避了为装饰而添加的多余元素。设计从解决实际功能与空间问题入手,最终呈现大量留白,让空间回归纯粹与舒适。同时,巧妙融入趣味巧思:如沙发背景墙实则暗藏通往卧室的“隐形门”,将美感与实用无缝结合。
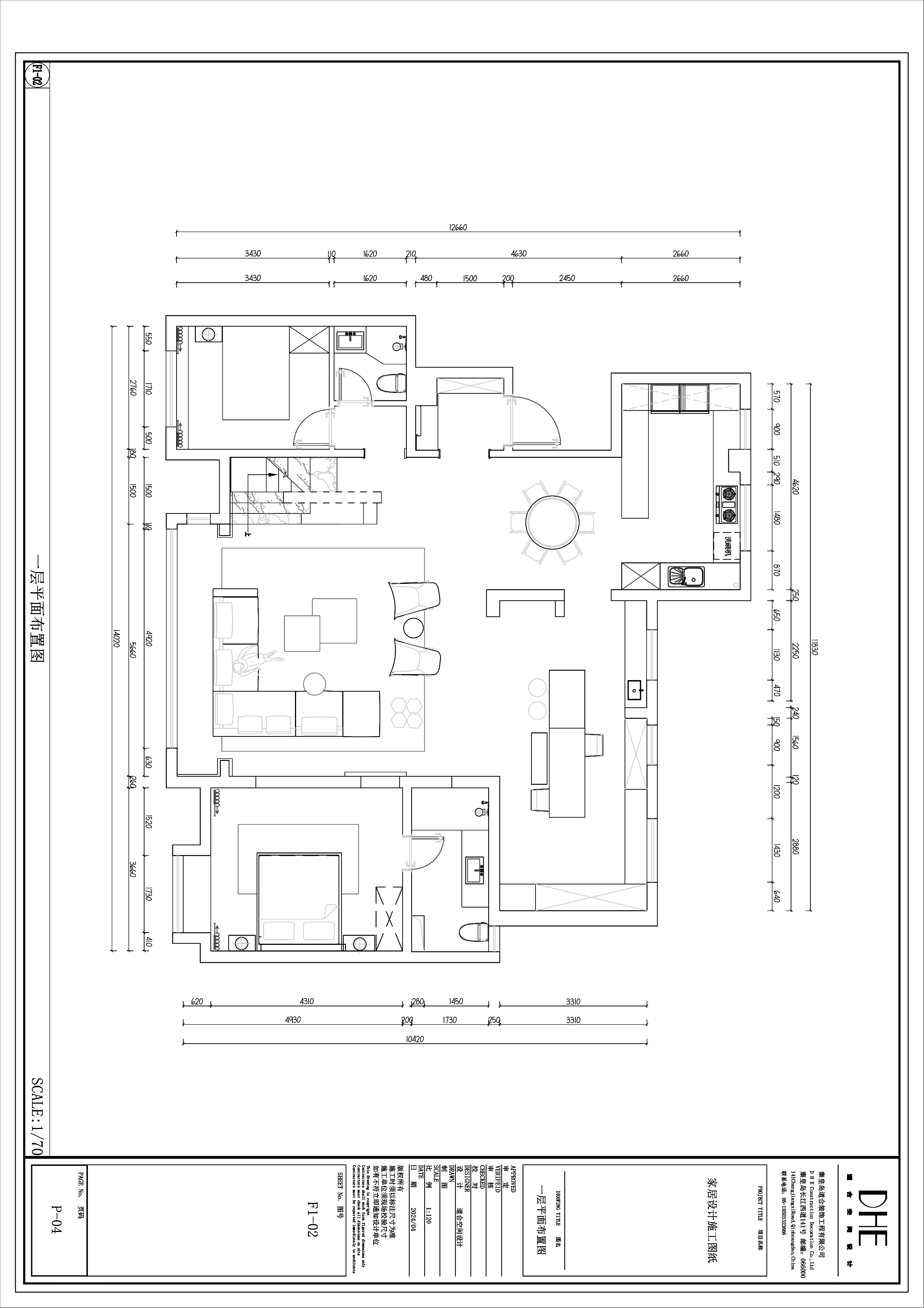
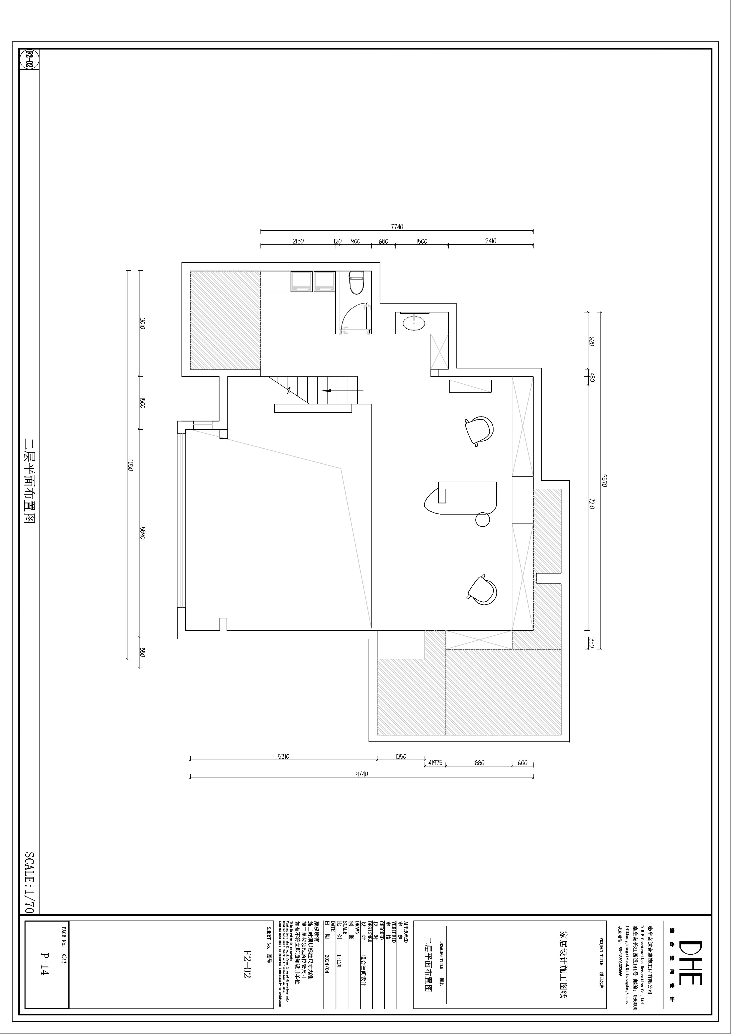
空间布局上,我们回避了将空间切割为固定功能区的常规做法。通过重新规划动线与尺度,使过渡区域成为流动的连接点,让视觉、光线与动线自然交融。空间彼此渗透,形成一个开放而有温度的生活场域。
客厅作为空间的情绪中枢,为家人带来静谧与平衡,让人安心感受家的温度。它亦是流动空间的关键连接点。后场茶室由三间房打通而成,成为公共动线的核心。透光格栅门在遮蔽原结构窗户的同时,保留了光的路径,营造出在日夜间流转的东方意境。
空间的每一角度与光线,都在参与定义新的生活秩序。视觉上的克制与精神上的节律,引导居者于此停顿、内省,获得内心的平和与舒展。
软装与家具则聚焦于材质、比例与舒适度,以细节营造氛围,创造超出预期的居住体验。本案最终让家回归生活本质,在回应真实需求的同时,兼具创意与温度。 -
空间布局:空间布局上,我们回避了将空间切割为固定功能区的常规做法。通过重新规划动线与尺度,使过渡区域成为流动的连接点,让视觉、光线与动线自然交融。空间彼此渗透,形成一个开放而有温度的生活场域。
-
设计选材:大面积选用白色乳胶漆,局部做的墙板强调形式,以软装为主,软装与家具则聚焦于材质、比例与舒适度,以细节营造氛围,创造超出预期的居住体验。本案最终让家回归生活本质,在回应真实需求的同时,兼具创意与温度。
-
用户体验:业主和他们的朋友们特别喜欢呆着这个空间里,吃饭聚会更愿意在家里了
0
1

认证 · 让您身份增值