Li House
131
作品说明
- 项目类型:住宅公寓
- 项目地点:秦皇岛市
- 建筑面积:470㎡
- 项目造价:350万元
- 主案设计师: 杨云
- 参与设计师:金红 张悦
- 竣工时间:2025年5
- 设计机构:道合空间设计机构
-
项目定位:
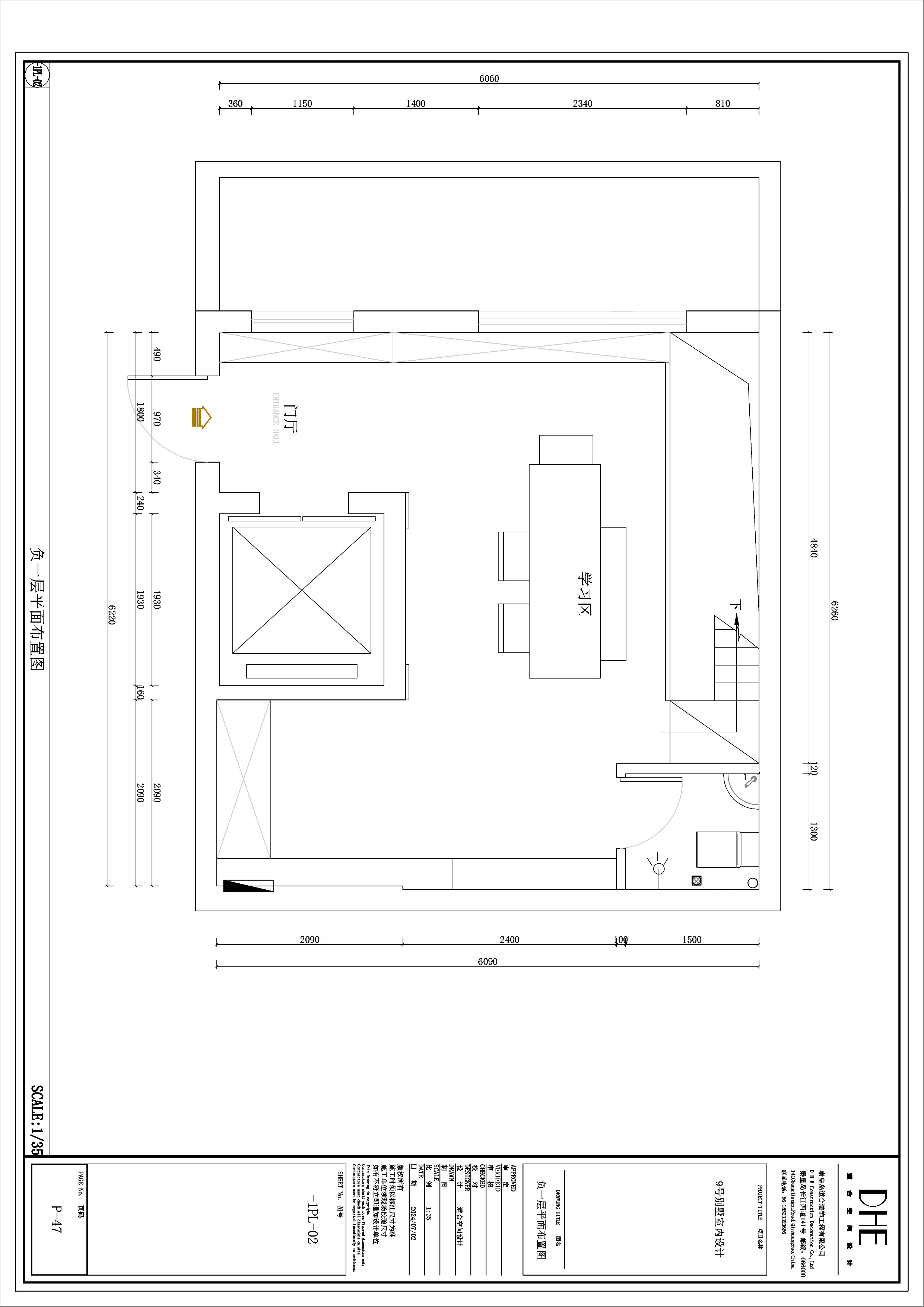
本案为一栋地上三层、地下两层的别墅。设计以现代为基调,在黑白木色的冷静框架中,融入石材与金属的细节点缀,营造温馨而雅致的氛围。空间逻辑上,我们着重解决家庭互动与私密分区的平衡,并通过结构优化与功能重组,为居住注入更多生活的叙事性。 -
空间意境:原有负一、负二层单层面积仅40㎡,空间局促。设计通过打通两层楼板,形成上下联动的儿童成长区,负二层作为娱乐区,设置大象滑梯、攀爬网与躲猫猫角落,并结合入户衣帽间与储物功能,趣味与实用并存。负一层为绘本与学习空间,下沉天井被改造为小花园,自然光与绿意引入室内,缓解地下的压抑感。楼板开口不仅带来光线,更串联滑梯与攀爬设施,让孩子们在两层间自由穿梭。中间层作为家庭公共空间,容纳客厅与餐厅;上下层分别为长辈与主人居所,实现代际私密与动静分区。
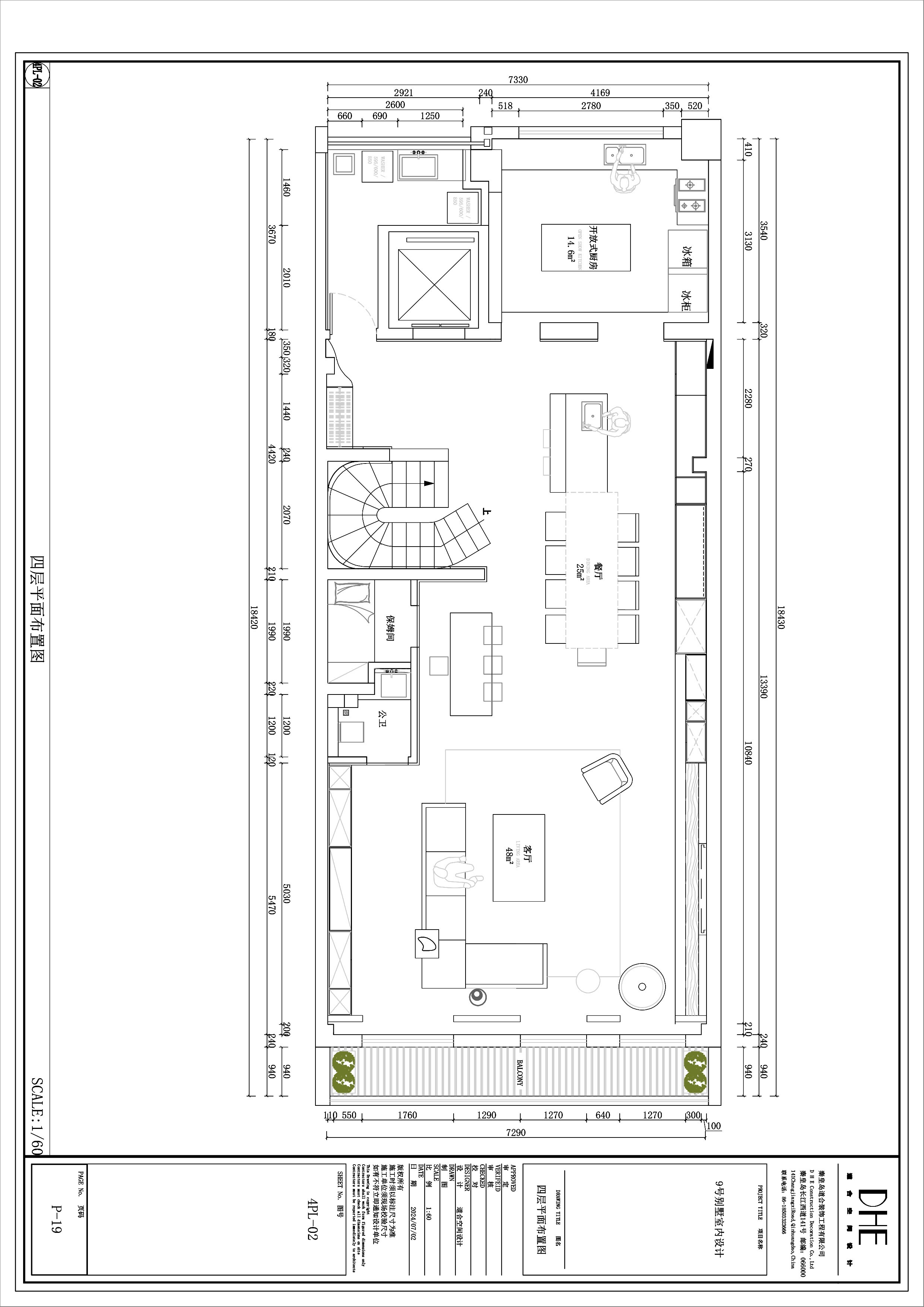
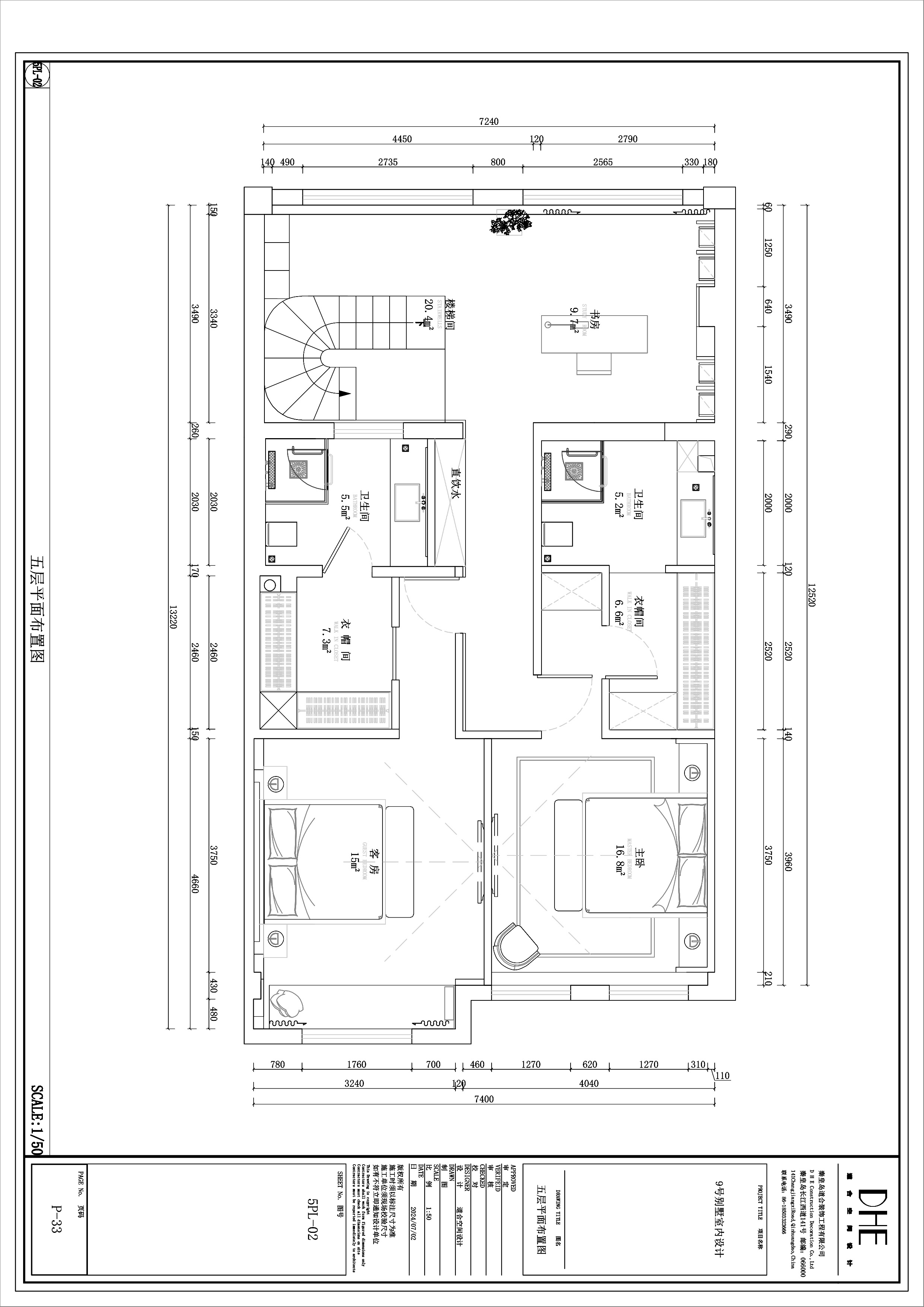
公共层以长达5米的餐岛一体桌与开放柜为核心,粉色宝格丽石材赋予空间精致质感。电梯与楼梯合并,化解了原有尴尬动线,并为每层释放约10㎡空间。钢板打造的梯在视觉上极具雕塑感,成为贯穿三层的空间焦点。长辈层强调温润与便利,主人层则更注重仪式感与私密性,卧室与衣帽间、卫浴的组合强化了生活的品质体验。 -
空间布局:中间层作为家庭公共空间,容纳客厅与餐厅;上下层分别为长辈与主人居所,实现代际私密与动静分区。
-
设计选材:整体空间延续“简洁、克制”的原则:黑白木色作为底色,粉色宝格丽石材与金属细节成为点晴;灯光设计则强化了楼梯、餐岛与下沉花园等关键节点,使空间在功能之外,具备更强的艺术性与叙事感。
-
用户体验:公区放置在中间层,太好了,三代人都有各自的空间,特别是地下室的大象滑梯,特别省妈妈
0
0

认证 · 让您身份增值