-
项目定位:设计需满足客户对于会所私密性,功能性的要求,让人能眼前一亮
-
空间意境:现代设计为骨,中式美学为魂。取徽派建筑之形意,于空间中写意碰撞,勾勒出震撼的视觉画卷。
-
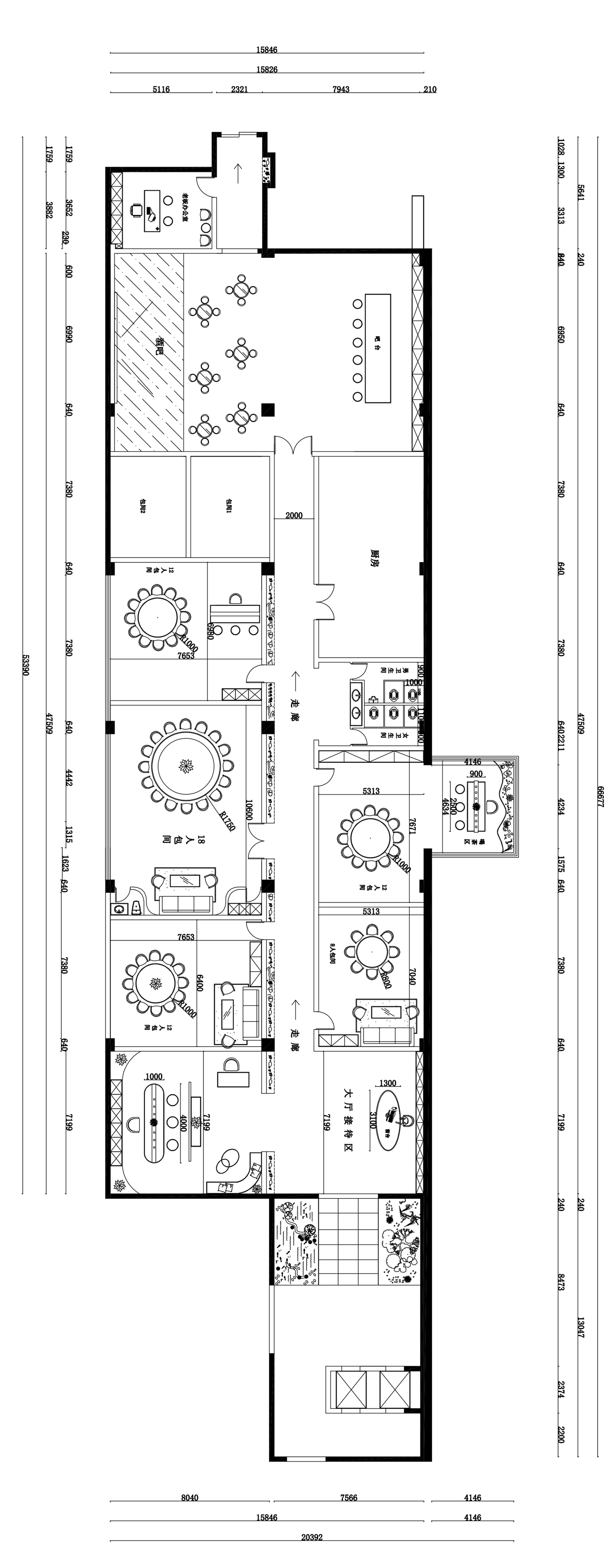
空间布局:入口大厅,以徽派设计手法重构开阔格局。地面静水池映照上方顶面,软膜天花模拟自然天光,水影天光交融,形成第一重视觉震撼。
接待前厅延续诗意,设于大厅深处,韵味含蓄而典雅。
中心走廊纵向延展,两侧对称分布餐饮包间,秩序中透出东方礼序之美。
穿过长廊,酒吧休闲区豁然显现。此处氛围由静转动,灯光摇曳,音乐流动,成为整体布局中一处“隐秘的喧哗”,以热闹尾声收束空间叙事,形成张弛有度的节奏对比。 -
设计选材:绿色设计
用料环保
经济实用 -
用户体验:客户反馈客人用餐环境舒适,回头率高,功能齐全,非常满意
0
0

认证 · 让您身份增值
89