简•轻
4
作品说明
- 项目类型:别墅
- 项目地点:秦皇岛市
- 建筑面积:285㎡
- 项目造价:210万元
- 主案设计师: 刘海明
- 参与设计师:刘海明
- 竣工时间:2024年12月
- 设计机构:观筑空间设计事务所
-
项目定位:全案设计,体现时尚女性的独立特征以及居家的柔软舒适,整体色调明亮,空间拆分尽可能通透,一个女儿房,需要安静且独立的空间
-
空间意境:结合意式极简,打造空旷安静的舒适居住空间环境
-
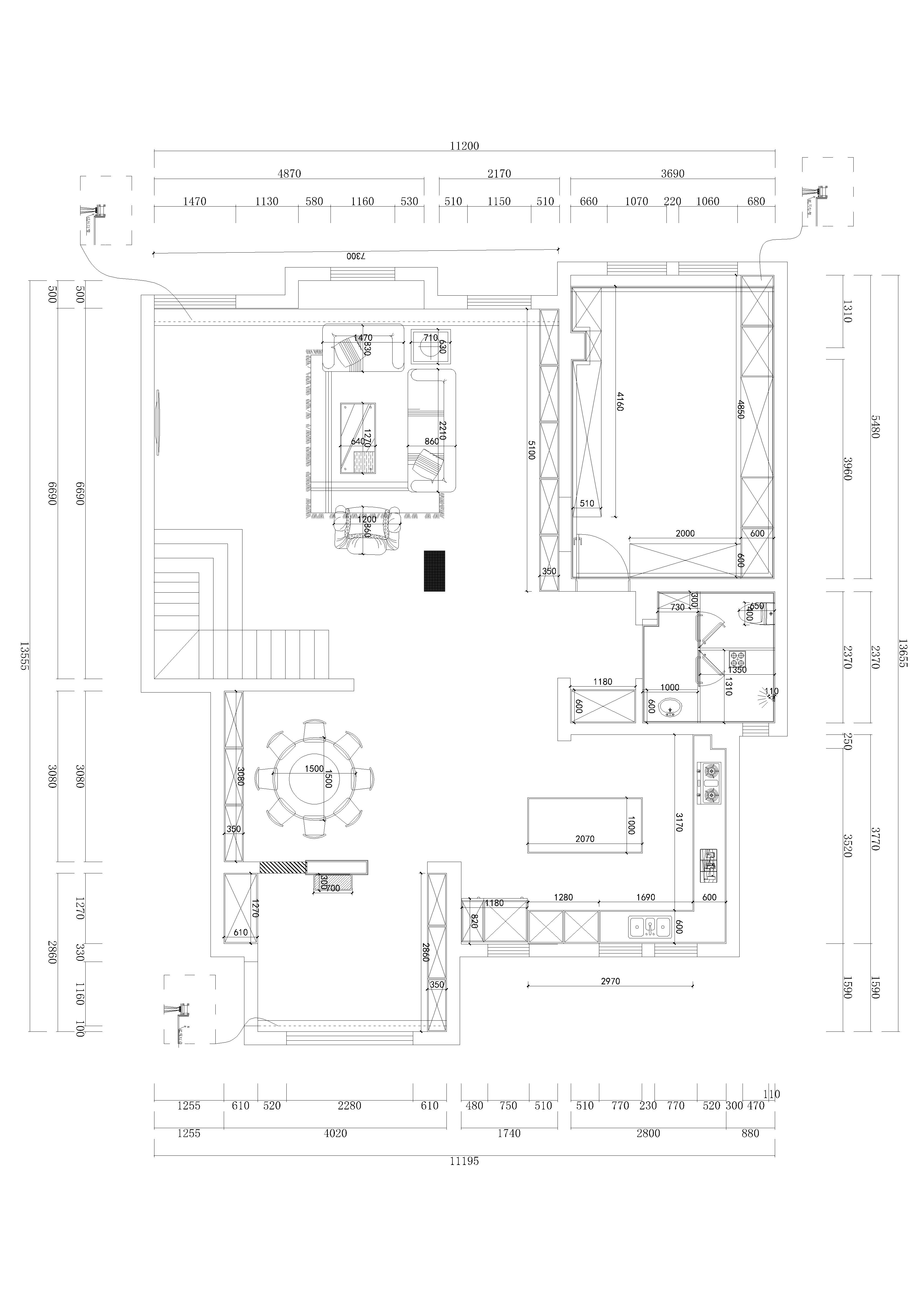
空间布局:层空间:封闭入户露台,打造出一片独立的入户花厅,增加入户换鞋帽的空间,运用阵列以及透镜的设计手法,让入户花厅与室内能够融为一体,从而做到一步一花,一步一景的落地效果;
打开厨房外部的非承重墙,把厨房打开,形成开放式厨房且可以兼顾中、西厨一体。最大化的利用厨房空间,最大程度放大厨房的使用功能,开放式厨房也可以实现,男、女主在厨房忙碌时可以与家人互动。一起享受烹饪时的幸福与温馨。
打开餐厅空间侧面的墙体。让会客厅与餐厅形成互通之势,也可以是餐厅使用起来更加的宽敞舒适。
拆除会客厅后面的墙体,利用黄金分割比例,柯布西耶辅助线进行会客厅的空间拆分,最大程度的让会客厅的进深与面宽相互形成黄金分割比例,让整个空间看上去协调且美观。
放弃原有狭小局促的原始楼梯,利用叠级,穿插的设计手法把楼梯在实际上以及视觉上合理、舒适的改造完成。
二层空间:把次卧室改造成女儿房,把挑高6.3米的地方进行加建,增加了一层的空间,打造了一部创意楼梯,采纳了天梯的表现效果,设计出了悬浮楼梯,寓意小女主,生活、事业蒸蒸日上。
入户花厅:通过透景的设计手法实现入户花厅与餐厅的相互呼应,
厨房:白色的主色调搭配黑色的电器,让黑白的经典永存,干净素雅的岛台配上智能的插座,让人在宁静中感受科技的魅力。
餐厅:相对又不对称的酒柜,在圆桌的周围,一家人其乐融融的在一起分享着没一顿美食,餐厅与厨房的相互呼应,让这个家庭更加甜蜜。
客厅:不同材质组成的矩阵式楼梯搭配分段式客厅。大大的提升了家里的氛围感,木头与石材的结合。碰撞出专属于这个房子独有的品质,让人在冷中寻找那一抹暖意。
二层主卧室:根据原有的楼顶形状,顺势而下吊顶,通过灯光的调节来寻找这个不规则的空间应该有的美感,胡桃木色与灰色的搭配让冷暖在爱恨中交织。
女儿房:时尚且浪漫的女孩,在这个空间里,隔出来一个阁楼,形成一个楼中楼的空间。在楼上的空间里,依靠原顶做出来异型吊顶,一部悬浮楼梯,一张奢石背景,组成了这个浪漫且时尚的空间。 -
设计选材:选择市面上一线品牌材料,尽可能的去掉繁琐的造型装饰,呈现出最完美的低碳生活方式
-
用户体验:业主使用后非常满意,并且向设计师赠送了证书与锦旗
白色的主色调搭配黑色的电器,让黑白的经典永存。
干净素雅的导台配上智能的升降插座,让人在宁静中感受科技的魅力
相对又不对称的酒柜,在圆桌的周围,一家人其乐融融的在一起分享着每一顿美食
餐厅与厨房的相互呼应,让这个家更加的温馨
卧室根据原有的楼梯形状,顺势而下,通过灯光的调节来寻找这个不规则空间应有的美,胡桃色与灰色的搭配让冷暖在爱恨中交织
不同材质组成的矩阵式楼梯,搭配分段式客厅,大大提升了家的氛围感
木头与石材的结合,让空间更加的多元化
在楼上的空间里,依靠原顶做出来的异形顶。
时尚浪漫的女孩,在这个空间内,割出一个阁楼,形成一个楼中楼的空间,一步悬浮楼梯,一张奢石背景,组成了这个浪漫的空间
0
0

认证 · 让您身份增值