-
项目定位:本项目定位为“都市自然主义私宅”,专为追求高品质生活、向往内心宁静的都市精英与家庭打造。它超越了单纯的风格定义,旨在构建一个既能契合现代高效生活方式,又能提供情感慰藉与自然联结的沉浸式居住空间。设计摒弃浮夸与表象,以“木”为核心媒介,致力于在都市的喧嚣中,塑造一个温暖、沉稳、具有呼吸感的“现代质感木居”。它不仅仅是一个居所,更是一个能够让人卸下疲惫、回归本真、与家人共度温暖时光的精神容器。
-
空间意境:空间环境以木饰面板为设计线索,在本案中并非静止的背景,而是作为流动的叙事线索,串联起不同功能空间,并赋予其独特的情感与功能属性。
-
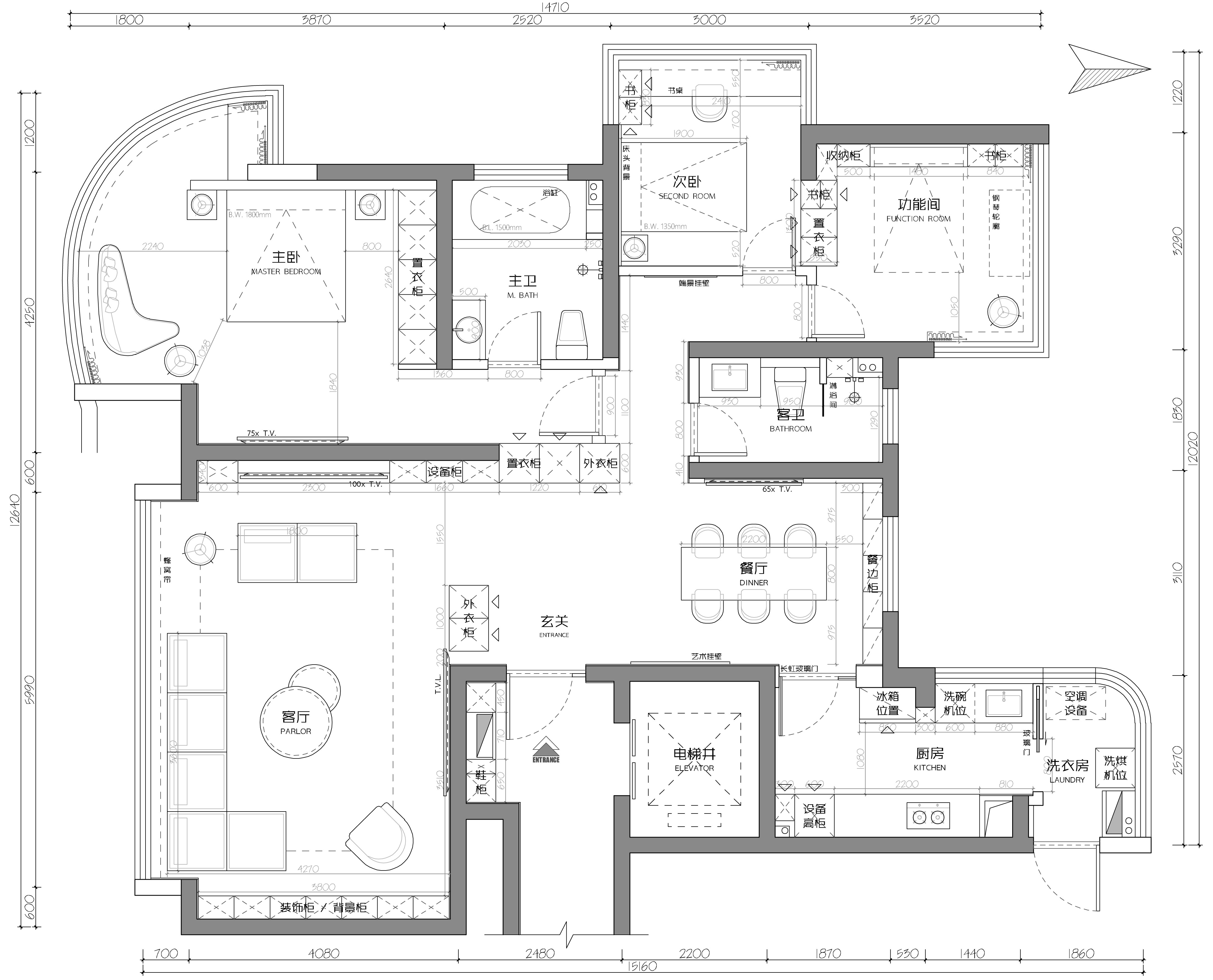
空间布局:本案采用现代开放式的空间布局,打破传统隔阂,强调视线与光线的自由流通。设计以“功能聚合”与“视觉延展”为原则,通过木饰面构成的墙体、柜体或镂空隔断,对空间进行含蓄而清晰的软性划分。客厅、餐厨区形成流畅的一体化互动场域,满足家庭社交与共享需求;私密休息区则巧妙退隐于动线末端,保障静谧。大量运用隐藏式收纳系统,将储物功能完美嵌入木饰面墙体,使空间表面极致简约、整洁,在开放中保有秩序,于统一中富含层次,实现了“简于形,而裕于心”的布局哲学。
-
设计选材:材料是设计理念的忠实表达。本案核心精选高品质天然橡木饰面板,其细腻的天然纹理与温润触感构成了空间的基调。表面处理采用哑光开放漆或木蜡油工艺,最大限度保留木材的原始肌理与呼吸感。木饰面与冷静的乳胶漆墙面、质感磨砂金属、清透玻璃形成巧妙对比,在材质碰撞中凸显木质的亲和力。局部点缀的岩板则作为功能性补充,增强现代感。所有材料均遵循环保、可持续的原则,并在工艺细节上追求极致收口与无缝衔接,于低调中彰显精湛品质。
-
用户体验:用户入住后体验,反馈优秀。
0
0

认证 · 让您身份增值
210