枫丹老钱,鎏奢邸境
150
作品说明
- 项目类型:别墅
- 项目地点:南阳市
- 建筑面积:260㎡
- 项目造价:200万元
- 主案设计师: 吕辉
- 竣工时间:2025.9.16
-
项目定位:为追求低调质感与舒适生活的业主夫妻,打造兼具岁月底蕴与当代松弛感的复古老钱风私宅,融合社交、私享、家庭生活多重功能,实现“贵而不奢,雅而实用”的居住体验。
-
空间意境:沿用老钱风标志性的实木人字拼地板、开放式书墙、经典皮革休闲椅,保留其低调奢华、历久弥新的质感内核,摒弃传统老钱风的繁复雕花与炫富式装饰,回归“低调贵气”的本质。
-
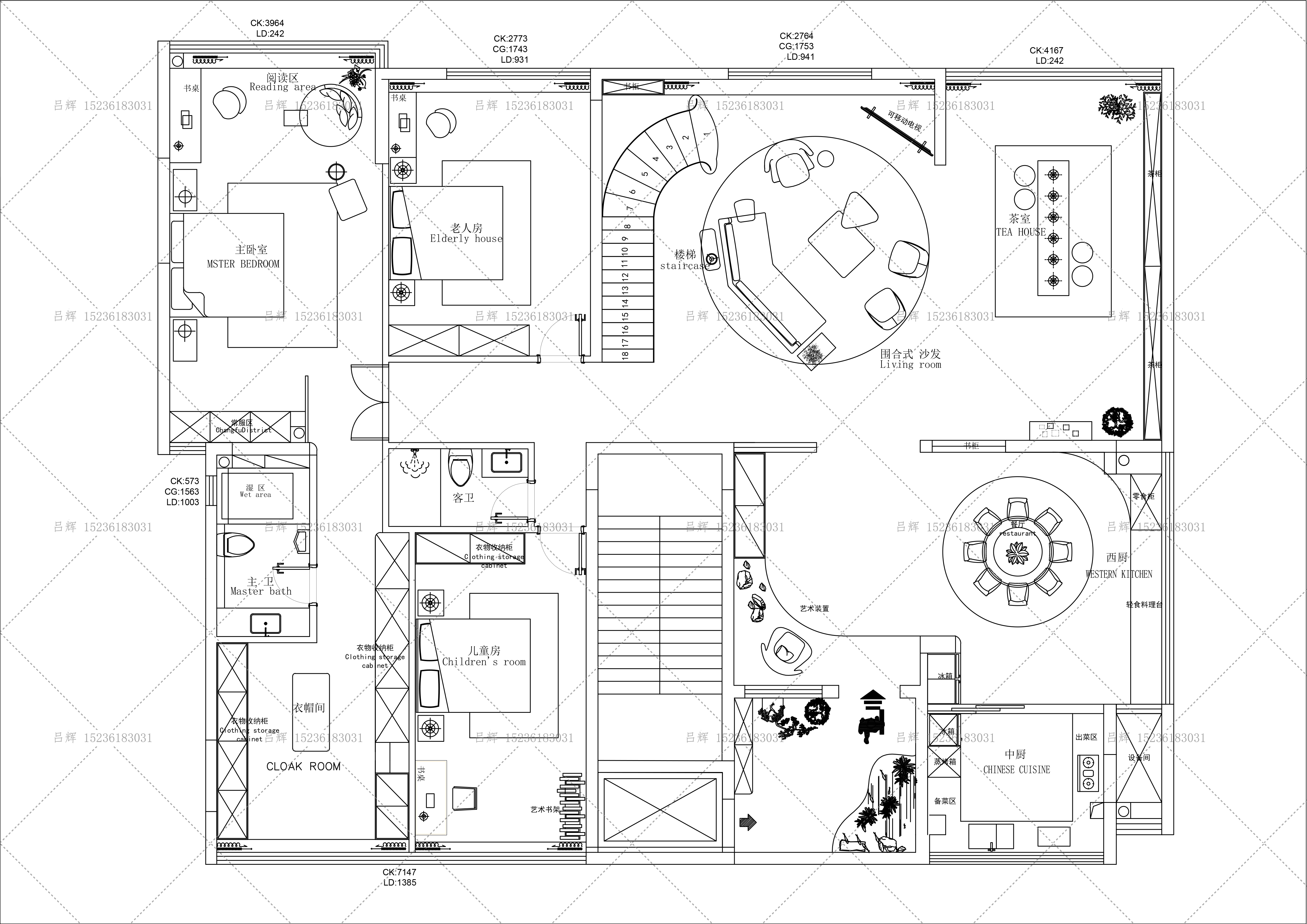
空间布局:空间通透感:老钱风的住宅注重空间的开阔与通透。房间之间的过渡自然流畅,尽量减少狭窄、局促的空间划分。采用开放式的客厅与餐厅布局,用高大的拱形门或双开门作为空间隔断,增添空间的仪式感。
-
设计选材:1. 可再生与可降解材料优先:家具框架选用竹材替代部分实木,竹材生长周期仅3 - 5年(实木需20年以上),可再生性强,且竹制框架成本比实木低25%。2. 低能耗加工与低VOC材料
- 所有板材(书墙、柜体)选用E0级环保板材,并采用无醛胶黏剂,降低甲醛释放;油漆选用水性漆,替代传统油性漆,VOC排放量减少80%,且施工时无需额外通风能耗。
- 金属构件(楼梯铁艺)采用热镀锌工艺替代喷漆,减少油漆使用的同时,提升防锈性,延长使用寿命,降低后期更换的碳排放。 -
用户体验:这款复古老钱风空间,日常使用能兼顾社交互动、私享疗愈与家庭生活需求,舒适又实用。空间选用低碳耐用材质,风格质感历久弥新,功能利用率高且能耗低,收获用户“低调贵气又松弛环保”的好评,仅需优化灯具防尘和绿植养护细节。
0
0

认证 · 让您身份增值