万科鸣翠·四代住宅·《光·音》
93
作品说明
- 项目类型:住宅公寓
- 项目地点:贵阳市
- 建筑面积:153㎡
- 项目造价:64万元
- 主案设计师: 黄孟佳
- 参与设计师:黄孟佳
- 竣工时间:2025年11月份
- 设计机构:無所空间设计
-
项目定位:本项目定位为面向城市中高端人群的当代艺术化居住空间,强调理性设计框架下的生活表达。空间以开放式公共区域为核心,将餐厨、起居与交流功能整合,形成高使用频率的共享场所;通过连续的木质界面、克制的色彩系统与线性灯光,建立安静、稳定且具有延展性的空间基调。在此基础上,引入音乐、艺术与个人兴趣作为空间内容的重要组成部分,多功能音乐区既可练习演奏,也可作为阅读、沉静思考的私密场所,强化居住者的精神属性。整体设计摒弃过度装饰,注重尺度、光线与材质的长期适应性,满足居住、社交与自我表达并存的需求,适合追求品质、审美与生活深度平衡的当代家庭。
-
空间意境:本项目在环境风格上的创新,并非通过鲜明的风格标签来建立识别度,而是以**“理性空间中的情绪介入”**作为核心策略,构建一种可长期使用、可持续生长的当代居住环境。整体空间以低饱和的中性色为基底,通过木饰面、浅色地面与柔和织物形成稳定、克制的环境背景,避免了风格化设计在时间维度上的快速老化。
在此基础上,设计引入线性灯光作为环境塑造的重要语言。灯光并不强调装饰性,而是通过连续的天花洗墙、柜体内嵌光带与悬浮界面的暗藏光源,强化空间的秩序感与层次感,使环境在白天与夜晚呈现不同但始终舒适的情绪状态。光成为塑造氛围的“第二材料”。
空间中音乐、艺术与日常功能被自然嵌入环境体系。钢琴、吉他与艺术画作并非独立陈列,而是融入整体界面之中,使生活内容本身成为环境风格的重要组成部分。这种去符号化、去装饰化的环境表达,使空间在理性结构中保留温度,形成介于现代主义与生活美学之间的当代居住风格,具有高度的可复制性与长期适应性。 -
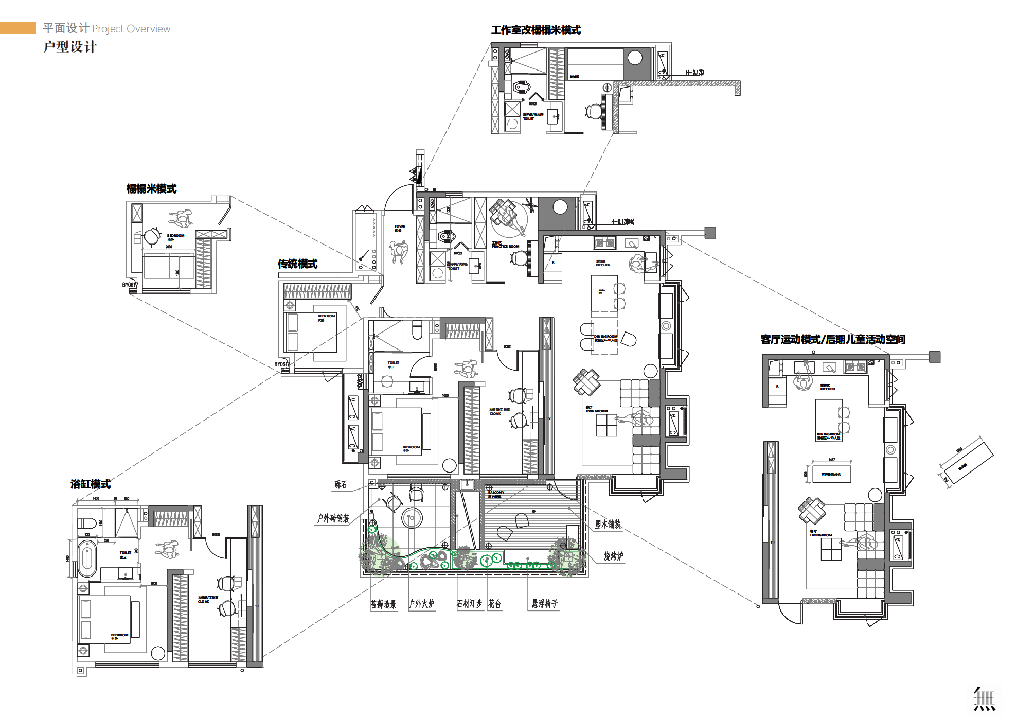
空间布局:在本项目的空间布局中,悬浮电视机背景墙被作为核心创新点加以深化,它并非传统意义上的“端景墙”,而是一个参与空间组织的功能界面。电视背景墙采用整体悬浮的柜体构造,下方完全释放地面,使视觉动线在客餐厅之间保持连续,弱化体量感,避免开放空间中常见的压迫问题。
在布局层面,该背景墙同时承担空间分区与视线过滤的双重角色:一侧面向公共活动区,满足观影与会客需求;背面则与餐厨或辅助功能区形成缓冲关系,在不完全隔断的前提下实现功能区的清晰界定。通过“非到顶、不落地”的处理方式,空间流线得以环绕与渗透,增强使用的灵活性。
此外,设备、储物与线路被高度整合进悬浮结构之中,使技术系统隐于无形,保持空间的纯净度。该设计将家具逻辑与建筑界面融合,突破了传统背景墙的装饰属性,成为连接、组织并激活整体空间的重要节点。
另外,在整体空间场景的创新布局中,项目通过功能重构而非面积扩张来提升空间价值。除悬浮电视机背景墙外,次卧与玄关的设计同样体现了对当代居住方式的深入回应。
原本标准化的次卧被重新定义为音乐与多功能复合空间。在布局上,取消传统床位导向,转而围绕钢琴、乐器收纳与展示展开空间组织。储物柜、展示层板与灯光系统一体化设计,使乐器既是功能设备,也是空间陈设的一部分。该空间既可作为独立练习室,也可在需要时承担阅读、冥想或临时客房的角色,显著提升了房间的使用频率与精神属性。
玄关则通过下沉式处理完成空间转译。地面标高的变化自然划分室内外界限,增强归家仪式感,同时有效收纳鞋履、外套等高频物品,避免杂乱向公共空间蔓延。下沉玄关以轻量化界面与灯光引导替代实体隔断,在保持通透性的同时,建立清晰的空间秩序,成为连接城市与居住生活的过渡场景。 -
设计选材:本项目在设计选材上的创新,核心在于以系统化材料策略取代单一材料的堆砌,通过控制材料种类、构造方式与使用周期,实现低碳目标与经济性的同步优化。整体空间以工程木饰面、复合木地板及中性色板材为主材,避免大量使用高能耗、不可逆的天然石材与复杂湿作业,从源头降低材料生产与施工阶段的碳排放。
木质界面采用稳定性更高的工程化产品,在保证视觉温润度的同时,提高原材料利用率并减少后期变形、维护与更换的隐性成本。悬浮电视背景墙、柜体与储物系统均以干法安装完成,构造轻量化、可拆卸、可维护,使空间具备后期调整与升级的可能性,延长整体使用周期,这本身即是一种有效的低碳策略。
地面材料选择耐磨等级高、生命周期长的复合地板,并通过地毯、软装承担消耗属性,降低硬装更新频率。灯光系统统一采用标准化LED线性灯具与嵌入式灯型,减少定制金属件与能耗负担,同时降低后期更换成本。整体选材以“耐用、通用、可替换”为原则,在保证设计完成度的前提下,实现成本可控、维护友好且具备可持续价值的当代居住解决方案。 -
用户体验:入住一段时间后,业主对该空间的整体体验评价非常积极。开放式客餐厅布局让日常起居、会客与家庭互动更加顺畅,空间显得通透而不空旷。木饰面与暖白色柜体营造出稳定、温润的氛围,在白天自然光充足的情况下显得克制而有质感,夜晚配合线性灯与局部照明,层次分明且不刺眼。家具尺度合理,沙发、地毯与地面的组合在视觉上形成明确的活动区,久坐或家庭观影都十分舒适。储物系统被整合进背景墙与柜体中,日常杂物有序收纳,空间长期保持整洁。整体材料耐用、易打理,居住过程中几乎没有维护压力,既满足了品质感需求,也兼顾了长期居住的实用与经济性。
0
0

认证 · 让您身份增值