虚室生白
80
作品说明
- 项目类型:住宅公寓
- 项目地点:贵阳市
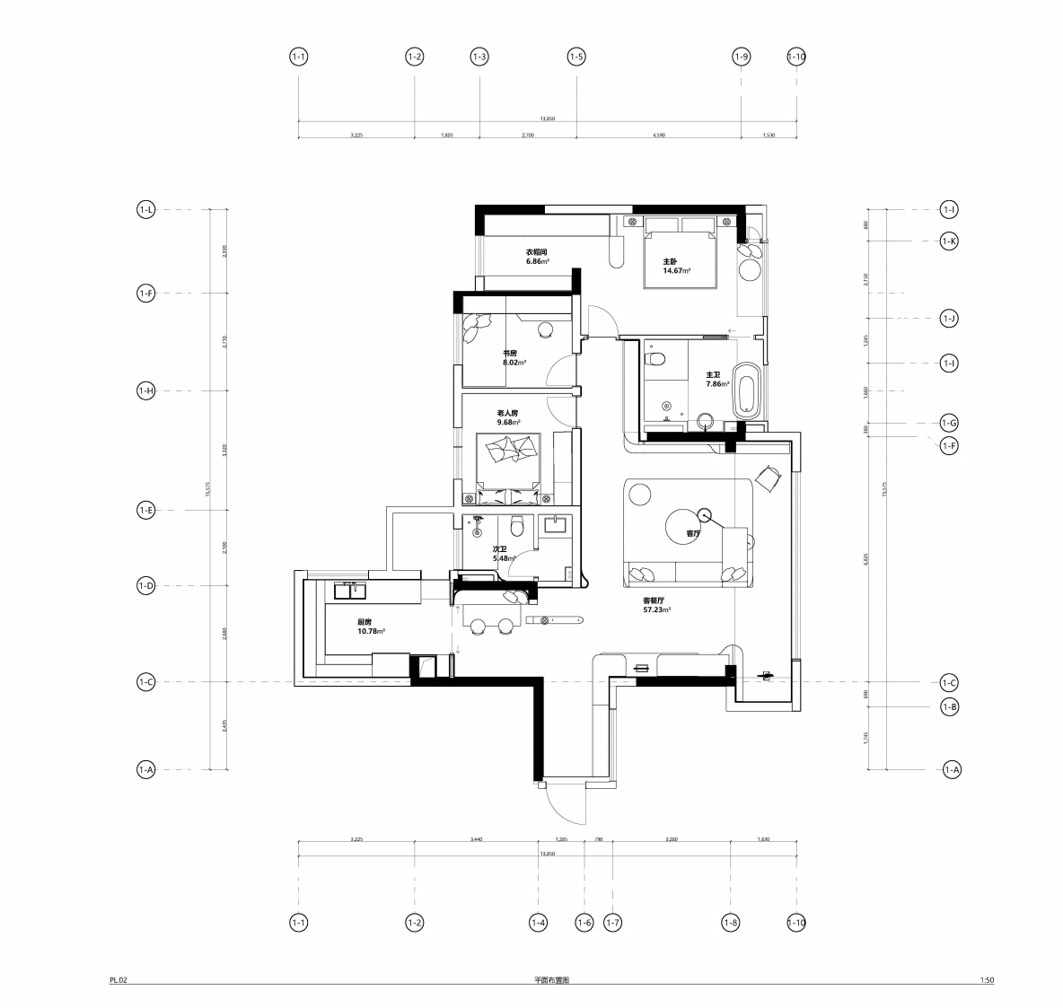
- 建筑面积:143㎡
- 项目造价:65万元
- 主案设计师: 黄孟佳
- 参与设计师:黄孟佳、董杰
- 竣工时间:2024-03-07
- 设计机构:贵阳市经济开发区无所工程设计咨询工作室
-
项目定位:作品立意:
出处:如项目名称“虚室生白”。取自《庄子·人间世》:“瞻彼阕者,虚室生白,吉祥止止。”
寓意是心无任何杂念,就会悟出“道”来,生出智慧;比喻心境若能保持虚静,不为欲念所蒙蔽,则能纯白空明,真理自出。也常用以形容清澈明朗的境界。
业主是年轻的夫妻,两人非常喜欢干净简洁的东西,所以我们希望他们能在这个简洁、无杂念的纯净空间中,感受到生活也如这个空间,明亮柔和且美好。 -
空间意境:因为是浅色系空间,其实非常容易视觉疲劳及显得太空。
弧形元素:我们在立面和软装上运用了些许弧形线条,不耽误空间的纯净与局部留白,同时也丰富立面上的层次,增强空间立面上的指引感和灵动感。
风格:业主很喜欢侘寂风格,但是纯粹的侘寂用在家装中我们觉得还是会少了一些生活化的场景,所以我们建议入户小露台做禅意造景,室内用针叶植物表现“空、少”的姿态,以及局部采用黑色鹅卵石点缀,让整个留白空间,有“墨点”点睛的小重点。 -
空间布局:空间原有问题以及优化逻辑:
1、门洞优化带来的入户仪式感:因为是横厅缘故,不可避免出现客厅一侧的墙面有门洞的情况,我们将原本朝向客厅的卫生间门换了方向,结合玄关做了一个进门有虚实进退的玄关对景,增加归家的仪式感。同时又利用这个玄关对景在空间上做了餐厅和客厅的一个功能和流线划分。
2、结构板的空间利用:原土建将结构板放在了厨房的外侧,厨房因要出生活阳台,U形台面不得以被打断,且餐厅需要与客厅功能同时挤在横厅区域。于是我们将原厨房区域外推,推到赠送的结构板范围,将原有区域划分为餐厅,因净宽和多人用餐问题,我们在用餐区设计了卡座,让小两口平时可以在这吃饭、工作、阅读,也让家人聚餐时不会有交通空间上的冲突和人数限制。同时横厅更加开敞,留给客厅的活动空间更大,能让居住者根据以后的生活习惯进行功能补充,让整个公区可以伴随家庭一起成长。 -
设计选材:在方案阶段我们运用BIM技术进行了详细的清单规划,保证平方造价在整个项目的控制范围内,从而能让我们在一个理性的框架下选择性价比更高的材料。也能保证在进行施工之前或途中准确的预判穿管位置,保证了时间、人力、成本三方的经济性。
-
用户体验:现在两位年轻的夫妻已经迎来了新的生命,客厅也有足够的空间来做小朋友的爬爬区,相邻的收纳也能满足新生命的降临。
对我们设计的评价就是好用、好看。也已经有很多别的业主因为这个项目来找到我们,然后成为朋友。
0
0

认证 · 让您身份增值