日式精工的精神场域
98
作品说明
- 项目类型:展示
- 项目地点:上海市
- 建筑面积:550㎡
- 项目造价:400万元
- 主案设计师: 李海玻
- 参与设计师:李海玻
- 竣工时间:2025.5
- 设计机构:易九空间设计
-
项目定位:以空间为媒介,将松下「精工匠造」「生活共生」「科技隐逸」三大文化基因转化为可感知的沉浸体验
-
空间意境:展厅外立面的「回廊基因的文化转译」
回廊从来不是设计对象,
而是文化基因的空间显性表达:
当松下的精工之魂注入回廊血脉,
传统便完成从保存到转译的范式革命。
精工是空间的筋骨,生活是空间的灵魂 -
空间布局:精工是空间的筋骨,生活是空间的灵魂
让科技成为生活的标点,让精工化作岁月的衬线。
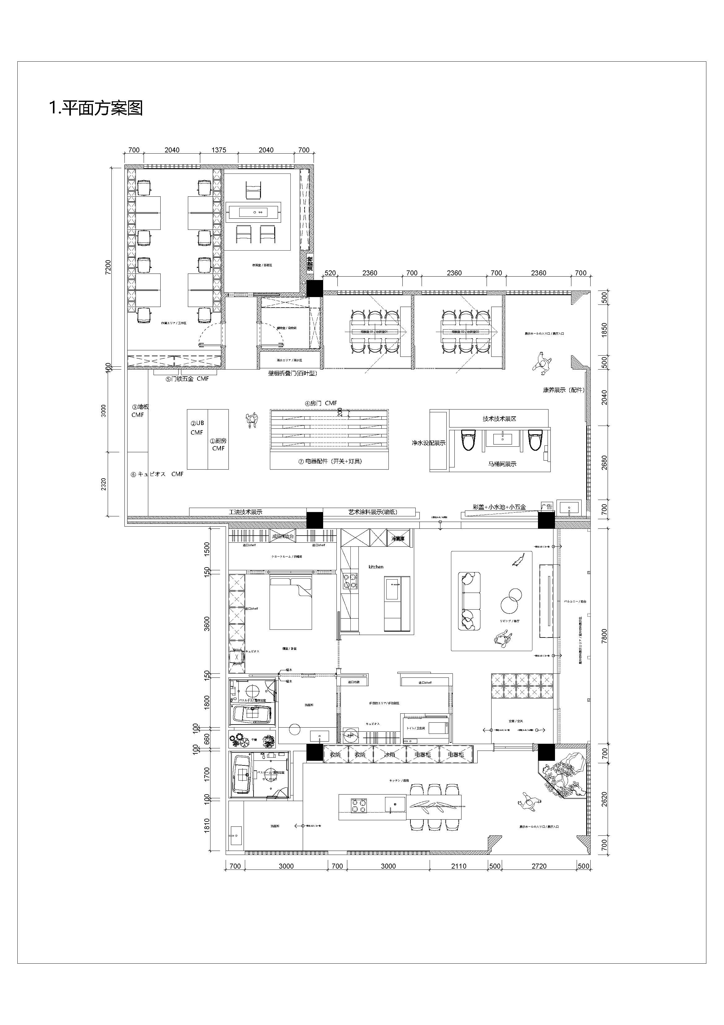
展厅划分为三大板块,成品展示,场景呈现,产品展区及洽谈区 -
设计选材:整体外立面选用了装配式墙板及木纹铝方通,星空灰基调的素色墙板,日式木纹格栅的造型呈现,用最简洁极致的手法与材质的搭配,呈现出松下住空间的日式底蕴。
-
用户体验:展厅投入使用至今,得到了委托方及松下公司高层的高度认可和肯定。
0
0

认证 · 让您身份增值