特房-罗廷墅
154
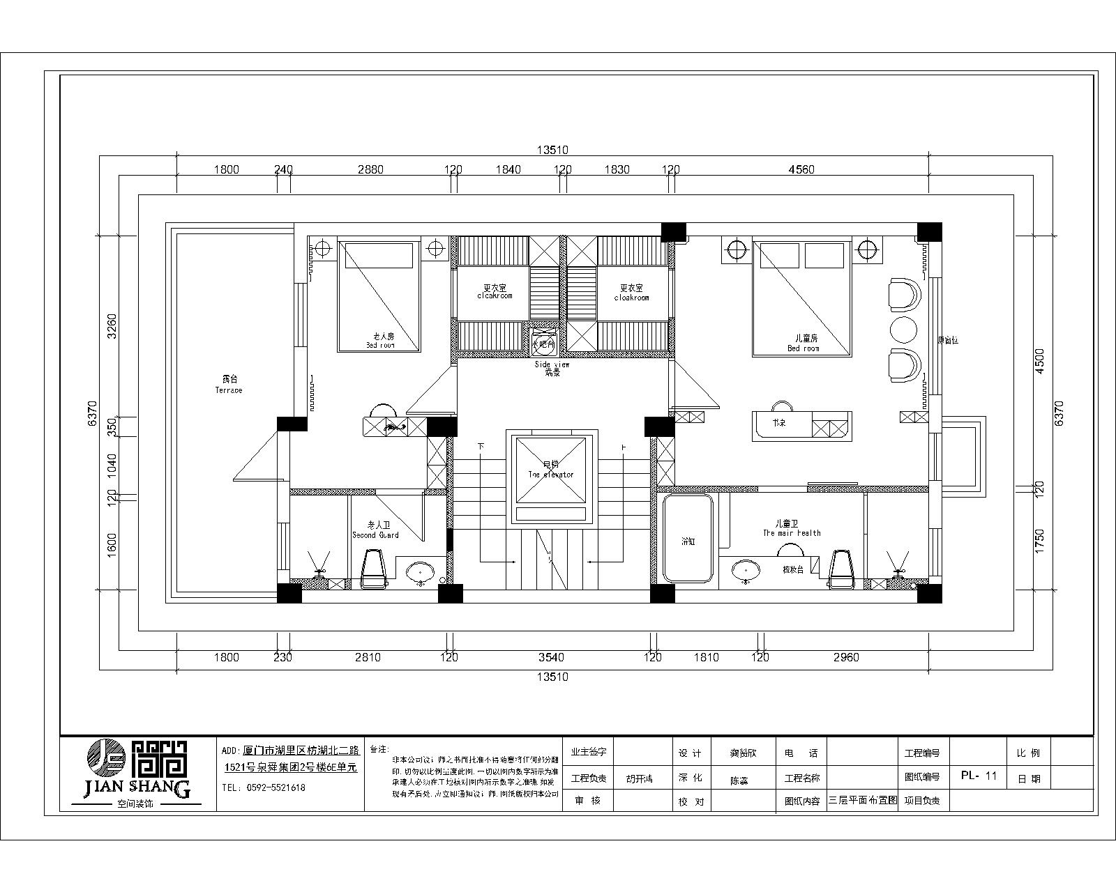
作品说明
- 项目类型:别墅
- 项目地点:厦门市
- 建筑面积:560㎡
- 项目造价:260万元
- 主案设计师: 龚赞欣
- 参与设计师:龚赞欣
- 竣工时间:2025年3月
- 设计机构:简尚空间装饰建筑工程有限公司
-
项目定位:现代风格如同一颗璀璨的星辰,以其简洁、明快的线条和以人为本的设计理念,俘获了无数追求品质生活人士的心
-
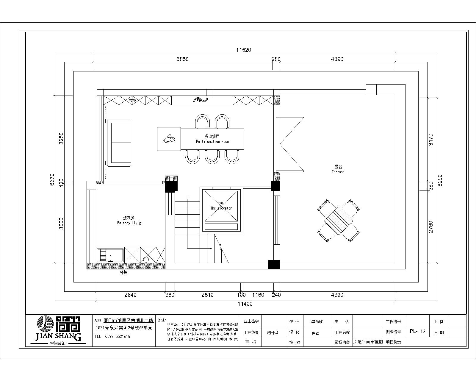
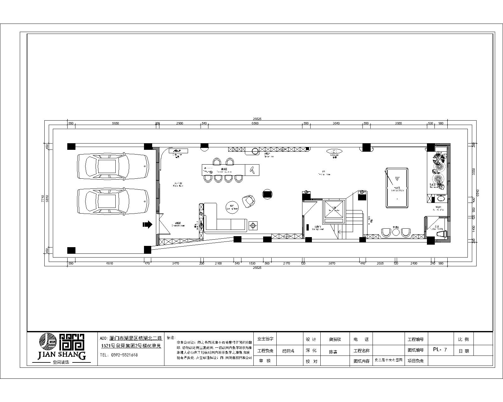
空间意境:映入眼帘的是客厅,宽敞明亮,大面积的落地窗设计让阳光无障碍地洒满每一个角落。 高级的主色调,搭配温润的木质地板,营造出静谧而温馨的氛围。 精心设计的隐藏式灯带,不仅提升了空间层次感,更为夜晚的居家生活增添了一抹科技感。
-
空间布局:摒弃了过多的装饰,却通过精致的设计细节和高科技的配置,为生活留下了更多的想象空间。 这样的家,无疑是现代人追求的理想居所。
-
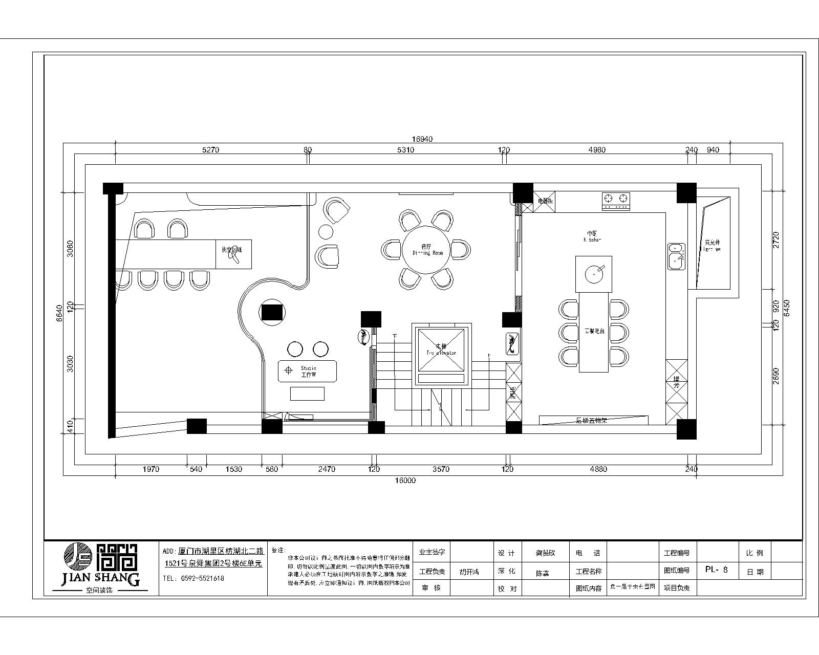
设计选材:简约的餐桌搭配轻盈的座椅,无论是家庭聚餐还是朋友小聚,都能满足您对生活品质的追求。 墙面上的抽象艺术画作为空间增添了几分文艺气息,让您在品味美食的同时,也能享受视觉上的盛宴。 厨房区域采用了智能家电,将现代科技完美融入日常生活。 一键启动的智能烹饪系统,让繁琐的烹饪变得简单而愉悦。
-
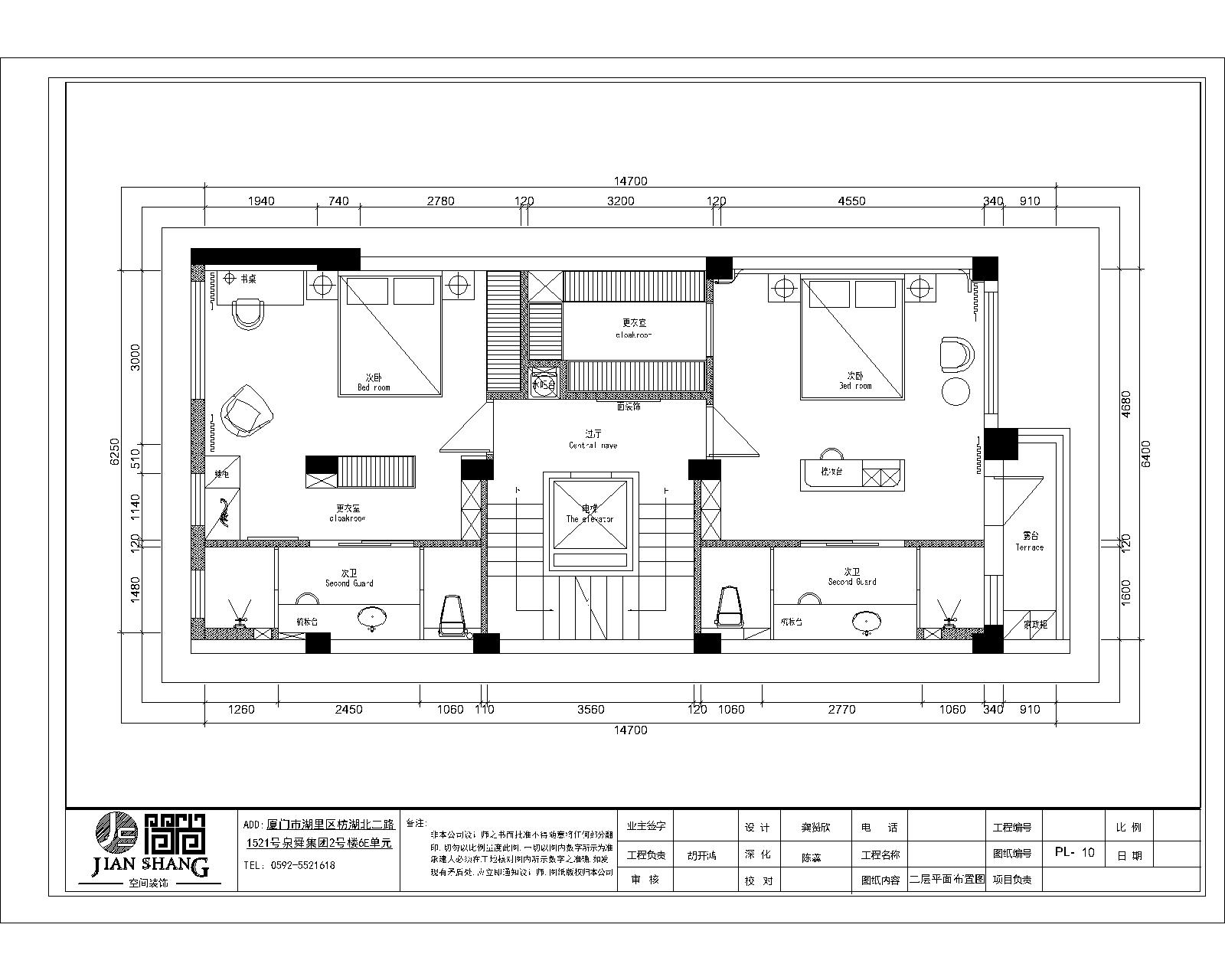
用户体验:通透大窗设计,让您可以在这里静静地阅读或思考,享受独处的宁静时光。 床头背景墙采用柔和的色彩搭配,营造出舒缓的睡眠环境。 智能家居系统的加入,更是让您的生活随心所欲,无论是调节室内温度还是设置起床模式,都能轻松完成。 浴室的设计同样不可忽视。
0
0

认证 · 让您身份增值