官方壹号意式极简梦想的家
82
作品说明
- 项目类型:住宅公寓
- 项目地点:贵阳市
- 建筑面积:320㎡
- 项目造价:140万元
- 主案设计师: 杨朝月
- 参与设计师:杨朝月
- 竣工时间:2025年11月20号
- 设计机构:贵州省有山设计有限公司
票数 : 1
-
项目定位:顶楼复式 设计定位中高端年轻化客户的梦想中的家,在繁杂的工作中抽离回到身体和心灵归属的港湾,身体安放的地方可能只需要二十平米足够了,但是灵魂安放的地方需要320平米
-
空间意境:顶楼复式来说采光通风都是极佳的,我们想把空间让出来更多的去做一些让一家人都能在工区找到自己的位置,让夫妻关系亲子关系得到融合和跟进。
-
空间布局:改掉楼梯位置,把餐厅和厨房联动起来 客厅中空楼梯也作为客厅背景墙来使用,上下楼梯都能让人成为风景的一部分
-
设计选材:没有像豪宅做很多的石材,墙板或者其他材料做堆砌欸,更多的空间留白,让家更舒适也不容易过时
-
用户体验:在整个装修过程我们全程参与让客户更省心,由于我们在设计阶段就充分沟通加上我们用完整的数据作为支撑。所以客户入住以后体验感非常好
门厅,进门以后穿衣镜鞋柜展示柜,及和客厅位置的借景绿植区
门厅,进门以后穿衣镜鞋柜展示柜
门厅看客厅过道
客厅转角景
电视背景墙
客厅圆形吊顶
过道看客餐厅
客厅中空窗户面
客厅看餐厅和二楼娱乐区
餐厅看厨房
餐厅看厨房
厨房
厨房及阳台
厨房及阳台
厨房及阳台
阳台看厨房餐厅
厨房看餐厅
客厅氛围壁灯
客厅氛围壁灯
客厅中空
餐厅
过道
客厅
餐厅
餐厅
餐厅
客厅一角
餐桌
客厅楼梯
客厅楼梯
老人房
老人房
女儿房
女儿房
一楼客卫
二楼看客厅
客厅背景墙
二楼娱乐区
二楼书房
二楼书房
二楼主卧室衣帽间
二楼主卧室
二楼主卧室门厅
二楼主卧室背景墙
二楼主卧室
二楼主卧室
二楼主卧室
二楼主卧室
二楼主卫生间
二楼主卫生间
二楼主卫生间
门厅
门厅八百库
门厅借景窗
客厅
客厅沙发背景墙
客厅
客厅
客餐厅
客厅
餐厅
餐厅
客厅小景
客厅看门厅
客厅小景
壁灯
客厅
餐厅
男孩房
男孩房
女儿房
女儿房背景墙
女儿房背景墙
客厅沙发
客厅
二楼娱乐区
楼梯
二楼娱乐区
二楼娱乐区
二楼娱乐区
主卧室衣帽间
主卧室衣帽间梳妆台
一楼平面图,入户和八百库分开在门厅异形的位置,客厅中空让空间感更大气,厨房和餐厅在一起更方便用餐,保留一楼三个卧室和一个卫生间,厨房外面的赠送面积作为单独的洗衣房,功能和储物美观空间感都很强,大宅的感觉非常好
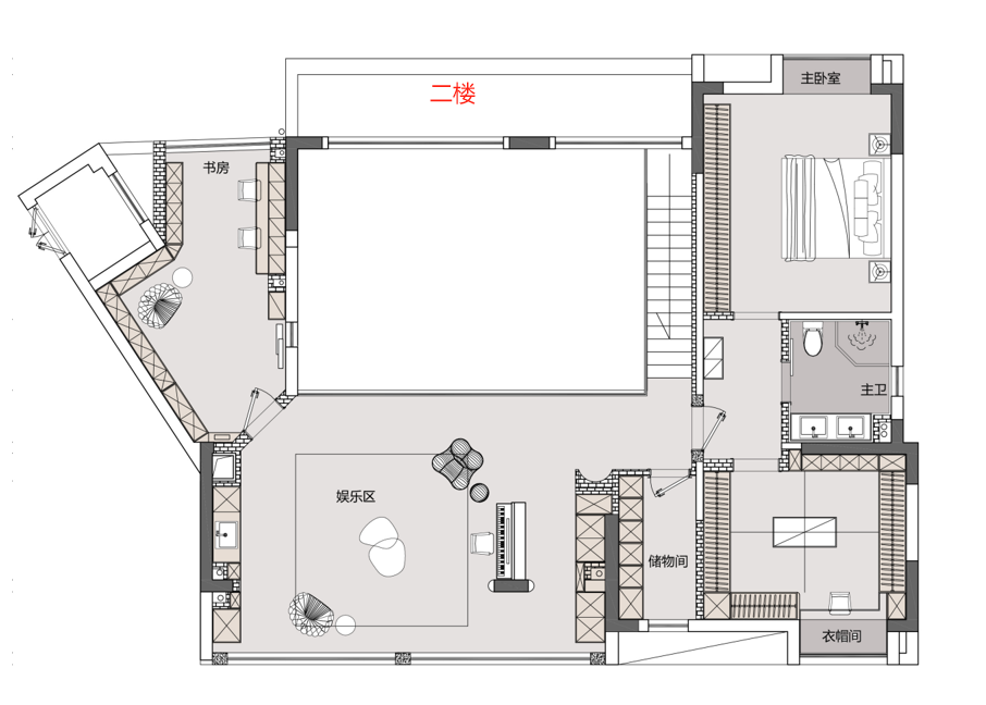
二楼位置做了儿童玩乐区,主卧室和衣帽间主卧室卫生间在一起加大空间储物和联动性,书房也在二楼异形空间位置更私密
0
0

认证 · 让您身份增值