清镇时光里
79
作品说明
- 项目类型:别墅
- 项目地点:贵阳市
- 建筑面积:400㎡
- 项目造价:260万元
- 主案设计师: 杨朝月
- 参与设计师:杨朝月
- 竣工时间:2024年12月10号
- 设计机构:贵州有山设计有限公司
-
项目定位:这次项目实际以实用环保及轻度奢华为主
-
空间意境:这次项目位于清镇市时光里的别墅区,旁边就是清镇市的旅游古镇,结合外部的美丽景观我们用大窗户把古镇美景引入家里
-
空间布局:每个房间的采光通风都做到了最大限度的扩散 用错层的感觉来做了客餐厅部分让整个客厅更加通透有层次
-
设计选材:这次的采暖部分区别于一起传统的地暖和中央空调,而是选择了美国进口空气系统GOODMAN,这个系统虽然前期投入会高于地暖和中央空调但是在后期的使用过程中更加环保节能,也更加舒适属于目前市场上少见的八恒系统
-
用户体验:客户搬家进去到我去拍照投入金堂将的比赛中间间隔了大半个月对于整体效果和细节处理包括生活用水/节能/使用舒适/方便/效果/体验感等各方面都是相当满意的
一楼餐厅
二楼女儿房衣帽间书房
二楼男孩房
三楼主卧室
楼梯间
楼梯间
楼梯间
一楼厨房
二楼男孩房
一楼客厅
一楼客厅
一楼客厅
一楼客厅
一楼客厅
一楼客厅
一楼客厅
一楼餐厅
一楼餐厅
负一楼茶室
负一楼茶室
负一楼影音室
负一楼影音室
一楼客厅
一楼客厅
一楼客厅
二楼卫生间
负一楼楼梯下景观
一楼厨房
二楼儿童房手办展示柜
二楼女儿房书房衣帽间
负一楼主要是接待亲戚朋友/家庭聚会使用,茶室和麻将室都放在了这里,至于影音室是因为没有窗户所以做了酒窖和影音室这样隔音各方面都不影响了
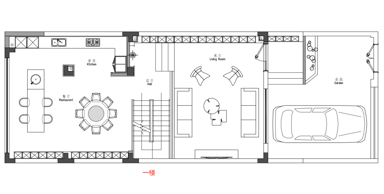
一楼作为进出别墅的主要通道我们做了停车位和小花园,做了大量的收纳空间 也下沉了客厅的位置让整个客厅位置更加显高,客餐厅又有了互动增加了空间的开阔性
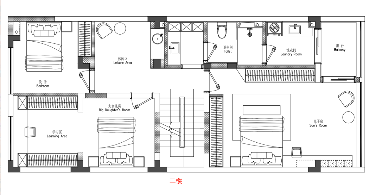
二楼主要是儿童房和老人房还有洗衣房的位置当然也做了水吧区方便小朋友接待自己的朋友
三楼主卧室和最小的女儿房在上面方便照顾小朋友也做了起居室这样方便夫妻和小朋友的接待
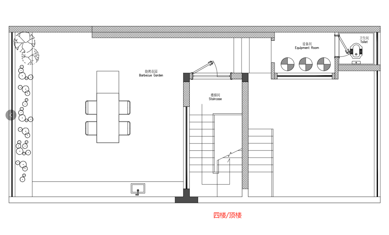
顶楼没有太多设计 主要就是放各种设备和一个卫生间两个露台分别可以烧烤和养花草
0
0

认证 · 让您身份增值