-
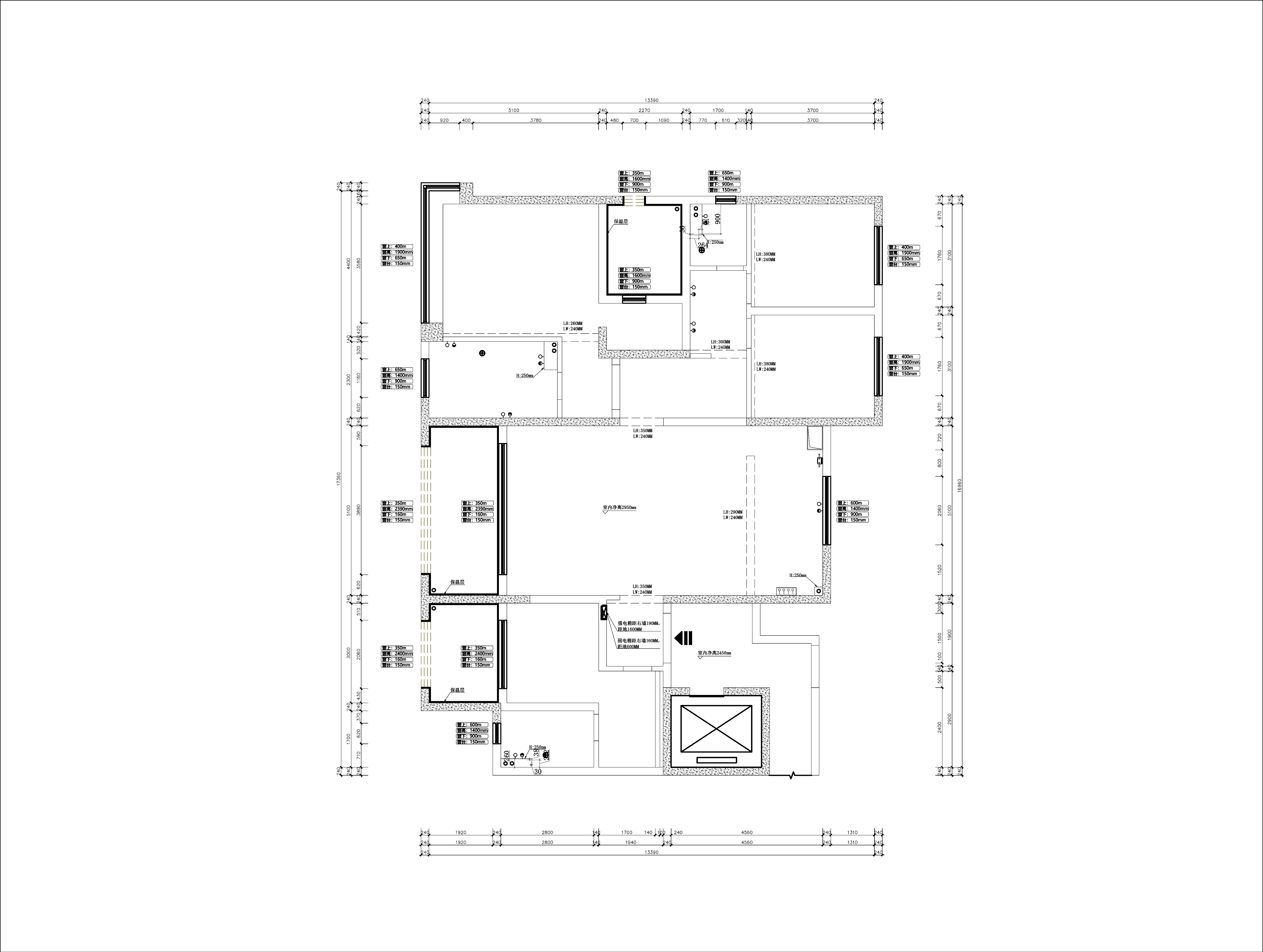
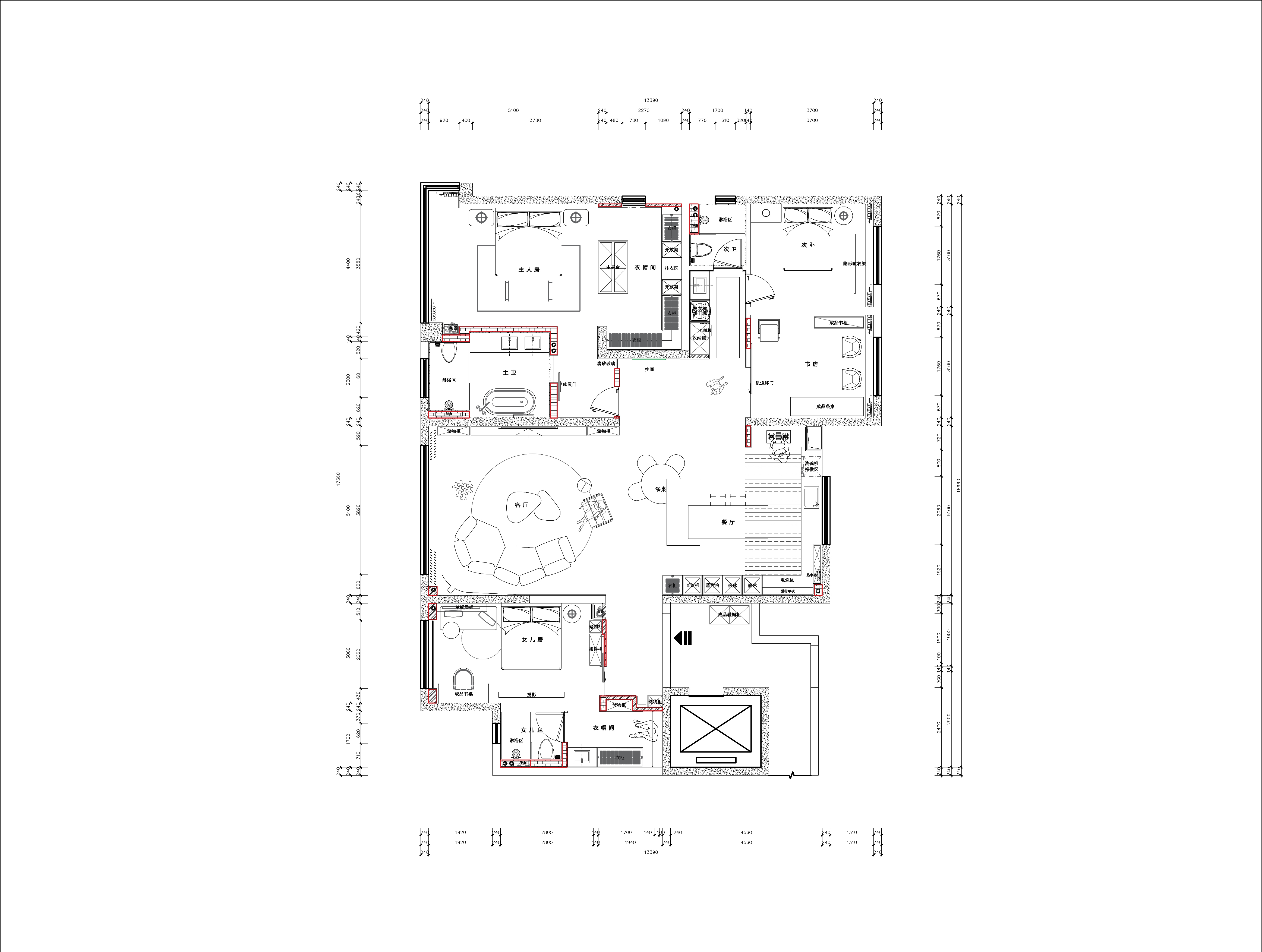
项目定位:本设计以空间为笺,打破刻板界限,借客餐厨一体化构建生活互动场域。开放结构延伸视觉、渗透功能,如生活长卷铺展日常烟火;私密区借简洁围合与巧妙隔断,平衡开放与静谧,容纳独处哲思,让空间成为承载情感与时光的容器。
-
空间意境:材质作墨,书写自然与精致对话。深色木墙板沉稳如岁月沉淀,大理石冷冽似理性光芒,二者刚柔碰撞;浴室哑光瓷砖隐肌理,金属洁具显利落,藤编、棉麻又注入自然温度。材质如记忆拼图,将自然本真与精致秩序,拼贴成触摸得到的生活质感。
-
空间布局:光影为韵,编织静态与动态交织的诗。自然光刻下时间轨迹,清晨柔、午后斑,是空间的动态呼吸;人工照明精准晕染,餐厅聚温馨、浴室藏静谧,似无声乐章流淌情绪。光影如生活的隐线,串起昼夜晨昏,让空间有了可感知的情绪节奏。
-
设计选材:氛围成境,让雅静与烟火共生。以深色系、自然质、细腻光筑雅静基底,不冰冷而藏深邃;用果蔬、书籍、香薰点烟火温度,不喧闹却满是人间气。从公共区的情感交流,到私密区的心灵休憩,氛围平衡生长,使居所超越物理存在,成为滋养灵魂的精神原乡,书写现代人居里,诗意与烟火共融的永恒篇章 。
-
用户体验:非常满意。
0
0

认证 · 让您身份增值
265