金堂奖
金堂奖简介
参赛指南
参赛入口
委托报名
参赛记录
设计师V网站
V网站介绍
V网热度榜
作品展示
秒景AI设计
进入AI设计
操作指南
开通会员
* 不支持7天无理由退货
了解更多
五大会员回报
一、五种秒生图 · 让您秒速谈单
文生图、全屋设计、线稿变精装、毛坯变精装、旧房翻新
——自研Ai、前期提案0成本,以图锁客、签单神器
二、秒生爆款文案 · 让您轻松日更
Ai秒生小红书爆款文案、专业级参赛文案
三、小程序分发 · 让您直达业主
V网站小程序支持多平台分享、高效引流
四、个人主页 · 让您专属展示
个人作品专属展示,设计师私属商务名片
五、红
认证 · 让您身份增值
“行业奥斯卡”金堂奖加
认证,让您增值
限时优惠,免费试用3天
金堂奖会员
¥
399
/
年
¥880
终身会员2980元(不限年份、永久使用)
在线支付
在线支付安全认证
安全可靠
您的信息将完全加密
即买即用
享受更多优质会员服务
应付金额:
¥
399
已扫码
请在手机上完成支付
点击刷新
请用微信扫码支付
支付即同意并接受
《金堂奖个人订阅服务协议》
恭喜,您已成功开通金堂奖VIP会员!
会员到期时间:2025-03-10
将于
10
秒后,跳转至
秒景AI设计,
立即跳转
关闭
简介
报名
记录
V网站简介
权益
我的V网站
主页
发布作品
金堂奖
秒景AI
V网站
我的
立即红
认证,享会员五大回报
您免费试用时间已到期,
立即红
认证,享会员五大回报
您的体验仅剩
2天
,立即认证享无限使用!
您的体验仅剩
1天
,立即认证享无限使用!
您的体验仅剩
1小时
,立即认证享无限使用!
立即认证
领取三天试用期
恭喜您成为
金堂奖会员
立享五大回报
会员有效期截止
返回
霁朗
89
作品说明
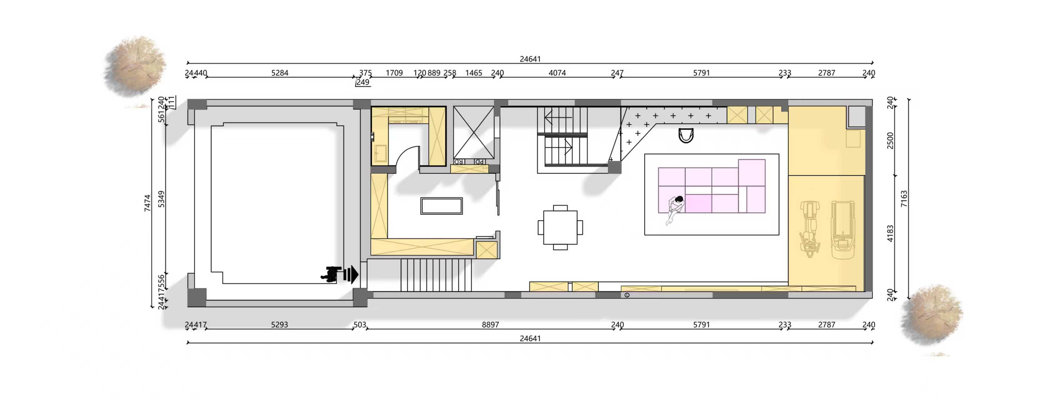
项目类型:别墅
项目地点:长春市
建筑面积:400㎡
项目造价:200万元
主案设计师: 赵帆
竣工时间:2025-6
入围作品
项目定位:
本案业主为95后,喜欢干净简洁舒适的环境,不需要复杂堆砌。
空间意境:
整体以温馨色调为主,客餐厅主要突出软装及石材质感。
空间布局:
每层分工明确,负一整体为开放式电竞房休闲区,一层会客,二层留客房老人房儿童房,三层为业主休息空间,还带有生活露台。
设计选材:
大多数选的是进口岩板,天然理石,注重材料的高级感。
用户体验:
客户已经入住一个月,舒适度拉满。
0
0
赵帆
主理人
私信我
长春市
工作地点
联系方式
待完善
了解更多
霁朗
点击了解更多
时光幻彩
点击了解更多