意式尊荣.叠层礼序
274
作品说明
- 项目类型:别墅
- 项目地点:南平市
- 建筑面积:288㎡
- 项目造价:262万元
- 主案设计师: 林耀良
- 竣工时间:2025.10
-
项目定位:设计策划:先打破传统空间边界,把餐厨客做无界一体化设计,旋梯不仅是交通枢纽,还做成视觉艺术装置。客厅用环形悬浮吊顶、大理石背景墙强化高级感,又搭配柔软的模块化沙发平衡冷硬感。还专门规划出影音休闲区,圆形顶灯模拟月光效果,让空间兼具社交与独处功能。
定位:瞄准追求品质与个性的高净值人群,既保证豪宅的奢享质感,又不让设计脱离日常使用,做到“颜值与实用双在线”,让艺术感自然融入生活细节里。 -
空间意境:首先是把现代轻奢和简约艺术感做了融合,打破了传统轻奢的浮夸感。用环形悬浮吊顶搭配线条灯,打造出沉浸式的空间氛围,大理石纹理的运用也不是简单铺贴,而是和木饰面、金属元素拼接,形成视觉层次。其次是功能区的无界融合,餐厨客空间打通后,用旋转楼梯和绿植造景做软隔断,既保持了空间通透,又有自然气息。还有影音区的圆形顶灯设计,把照明和艺术装置结合,替代了传统的装饰画,让每个区域的风格既统一又有专属的视觉记忆点,整体跳出了常规现代风的刻板框架。
-
空间布局:首先是餐厨客一体化的开放式设计,把餐厅、厨房和客厅打通,用环形吊顶和动线规划自然划分区域,既显空间开阔,又让互动感拉满。其次是旋梯的巧思,将金属旋梯作为空间视觉中心,旁边还留出绿植造景区,把交通动线变成了艺术展示区。另外,还打造了多功能休闲区,把观影、阅读功能整合进过道旁的空间,利用圆形顶灯和软装营造沉浸式氛围,打破了传统空间功能的边界,让每个区域既独立又连通,实用性和颜值都兼顾到了。
-
设计选材:木饰面选的是环保再生木皮,涂料用的是水性净味款,既低碳又能减少甲醛污染,后期维护还便宜。奢石没有整面铺,而是和金属板材拼接用在电视墙、餐台这些视觉焦点处,省料还能凸显质感。金属板材挑了轻量化的铝复合板,比纯金属省成本,还容易加工成弧形造型。不同材料混搭时,用的是卡扣式安装工艺,减少胶水和钢材使用,既符合低碳理念,又降低了施工和材料损耗的成本,颜值和实用性、经济性都兼顾到了。
-
用户体验:入住后业主直说这设计太高级舒适了。环形吊顶的氛围灯一开,客厅立马有了轻奢会所的质感,大理石电视墙和旋转楼梯成了家里的打卡点,朋友来都要拍半天。开放式餐厨区聚餐超方便,岛台既能做饭又能当餐桌,实用又出片。影音室的圆形顶灯像一轮圆月,窝在懒人沙发里看电影,比影院还舒服。业主说最惊喜的是细节,隐形收纳柜藏了超多杂物,家里看着永远整洁,住了大半年,每天回家还是会被这空间的质感惊艳到。
以环形悬浮吊顶打造视觉焦点,大理石背景墙糅合金属质感,吧台与客厅相融,勾勒出轻奢且具互动性的现代起居空间。
以多层环形吊顶打造空间韵律,大理石电视墙碰撞木质饰面,旋梯衔接动线,勾勒出轻奢且具流动感的现代客厅美学。
以环形叠级吊顶塑空间层次感,旋梯与餐厨区相融消弭边界,柔质皮质沙发中和冷硬材质,打造轻奢通透的现代起居场域。
以多层环形吊顶构建空间韵律,餐厨客无界相融,金属线条与柔质家具碰撞,打造轻奢且具流动感的现代居住核心区。
以金属旋梯为空间视觉锚点,环形艺术吊灯与流线型吊顶呼应,暖棕皮质单椅提亮色调,打造轻奢且具艺术张力的过渡区域。
以金属旋梯为动线核心,环形灯顶与艺术吊灯呼应,大理石餐台糅合木质柜体,打造轻奢且具流动感的餐厨过渡空间。
以旋梯为核心串联一层公共区,餐厨客一体化布局拓阔空间,茶室与休闲阳台互补,打造兼具社交与私享的轻奢生活主场。
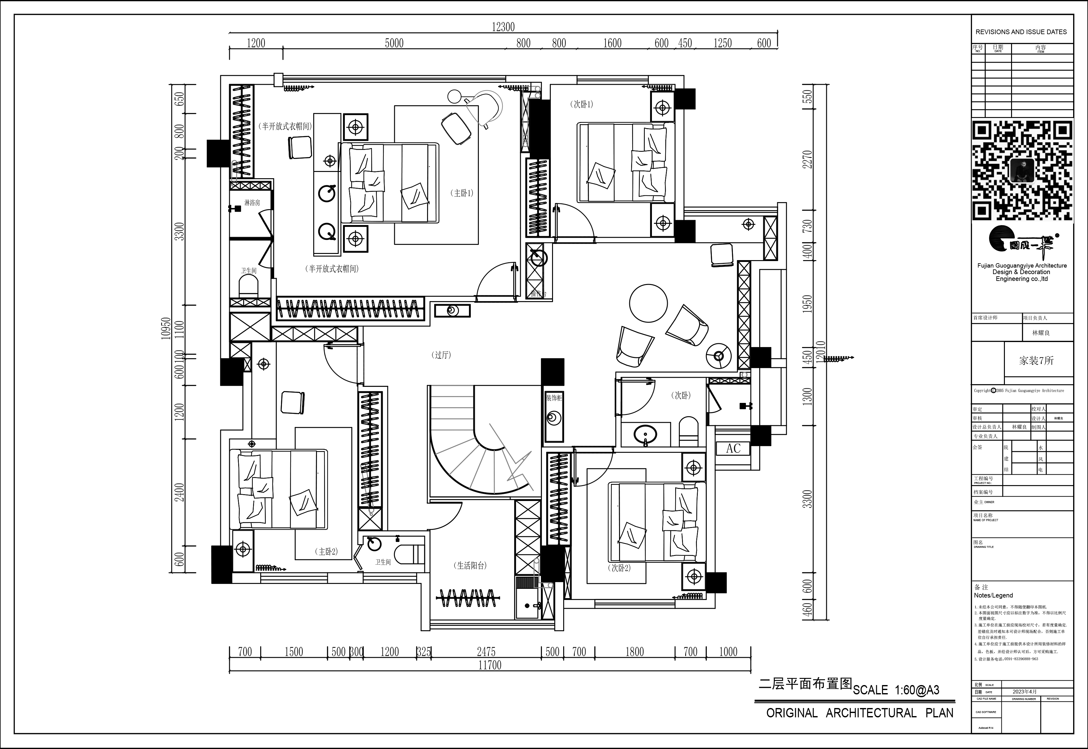
聚焦二层私密起居规划,双主卧配开放式衣帽间提升奢享,旋梯衔接上下空间,多次卧布局兼顾实用与居住私密性。
0
0

认证 · 让您身份增值