叠境之间
92
作品说明
- 项目类型:住宅公寓
- 项目地点:临沂市
- 建筑面积:230㎡
- 项目造价:100万元
- 主案设计师: 吴敏
- 竣工时间:202505
-
项目定位:“繁华于外,优雅于心。时尚雅致的都市生活,简而不失其华,构筑一个精致格调的空间,表达意式美学的浪漫和情绪。”极具线条感,流畅、精致又有一种随性的美感多采用低纯度偏暖的色调,明度不高给人一种安稳沉静的视觉感受像加了一层秋日滤镜傍晚开盏暖光灯,瞬间坠入老电影
光从缝隙淌入,木纹的沟壑里浮起细碎金斑。桌上泛起蜜蜡般的光泽,夜间点燃一支雪薰,雪味与光影共舞,房间便成了小小的森林剧场。
透过色彩与材料质感,赋予不同空间体块情绪满分张力塑造极致奢侈高级感。绿绒沉静似苔痕漫上石阶,角落里,光阴便慢了下来。
涂料的肌理、温润的木质、盎然的绿意让卧室空间多了些曼妙、灵动的意蕴或自由,或艺术,或时尚亦或优雅、在同一空间中灵活切换,融合
采用了偏中古风的色调和布局。淡雅的墙面色彩与舒适的床品相呼应,营造出一种温馨舒适的休息空间。搭配皮革、丝绸、实木的组合变化,大面积白墙,穿插绿植点缀,整体英气扩大。地毯窗帘等软装,以不同灰度的灰呈现,用无色彩也能完成情感的表达,显得高雅稳重。
每个家的改变,不仅仅是对物理空间的重新塑造,更是对居住者生活质感的细腻呈现
意式轻奢与中古风混搭,保留高级质感与温暖氛围,摒弃冷硬与繁复。金属的精致碰撞木纹的质朴,暖光与绒面软化空间,既显品味又不失烟火气,打造有温度的精致居所。
家居设计的本质,是让空间成为生活的容器——既承载意式轻奢的精致秩序,又揉入中古风的时光温度。
-
空间意境:围绕黑白灰为主的基底,加入低饱和的奶油米、浅驼、木本色作为中和过渡,让空间更具温度。黑色木纹茶几造型简洁沉稳,与地毯柔和过渡,形成视觉锚点。茶几上,几本翻阅中的画册、随手放置的茶盏与侘寂风的干枝花瓶,让空间多了一份“宅家”的实感。
在材质选择上,注重材料质感和视觉效果:将金属、奢石等不同材质相互贯穿,以展现空间的多样性和深邃魅力。金属材质可以带来现代感和光泽度,玻璃则能增加通透感和轻盈感,而奢石则以其自然纹理和沉稳色调增添一份质朴与奢华。
。
家,是心安的归处,是疲惫时最想投奔的温暖港湾。它不一定要多么奢华,但一定要能安放每个家人的喜好与习惯,让不同的个性在同一个空间里和谐共生,让爱在细碎的日常中静静流淌。
规则是用来打破的,风格是可以混搭的。这里没有标准答案,只有大胆的自我表达。
设计跳出固有的思维模式,不拘于常规风格。当极简的意式遇上浓郁的中古,两者看似不兼容的风格,也能融合焕发出独特的美感。
每一处细节都在回应真实的需求:高级感不必冷硬,复古情怀亦可轻盈。当功能与美学达成默契,当风格边界被温柔打破,家便不再是风格的堆砌,而成为有温度的生活剧场。在这里,每一寸空间都写着“人”的注脚,而这,正是混搭设计的终极浪漫。
-
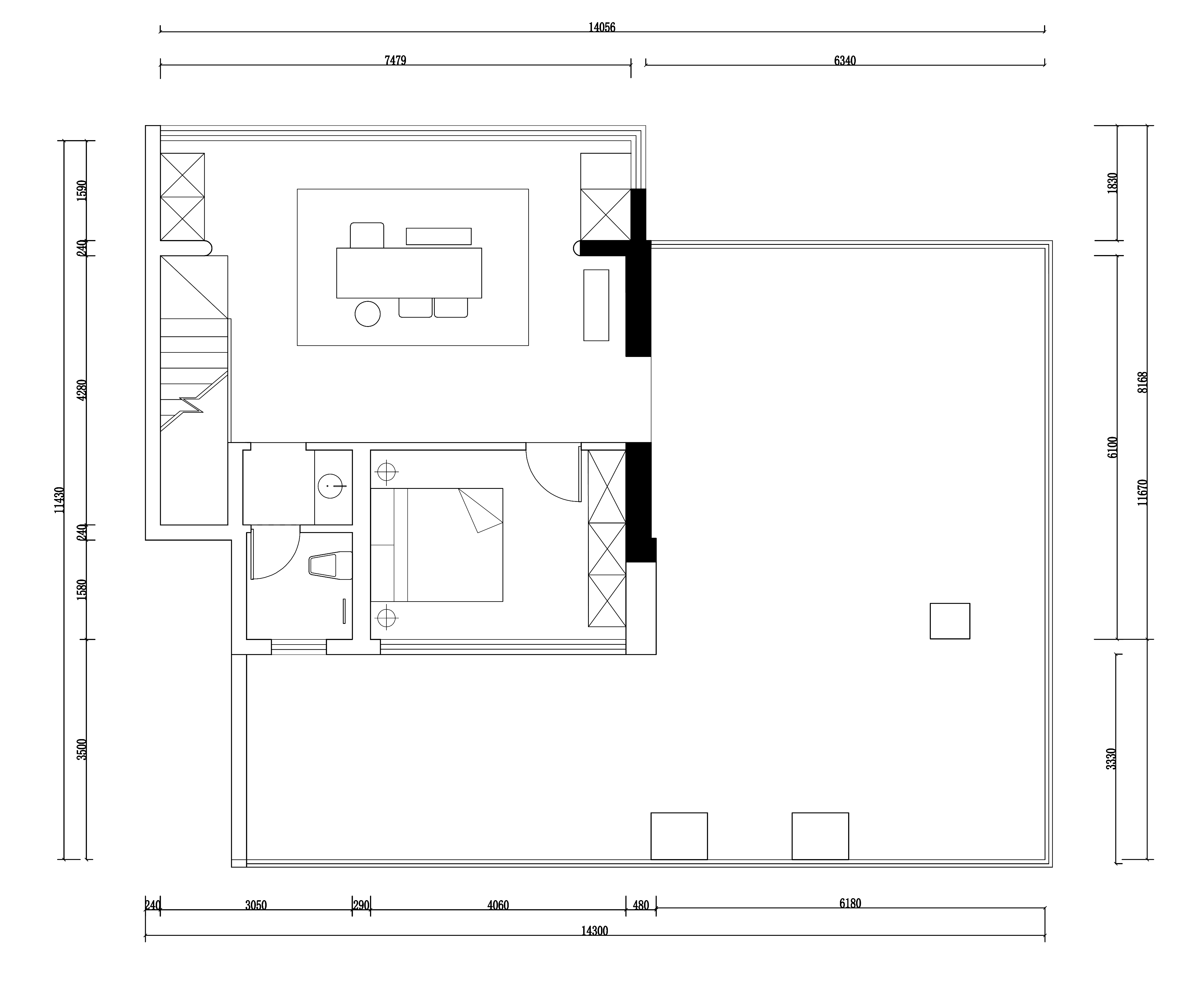
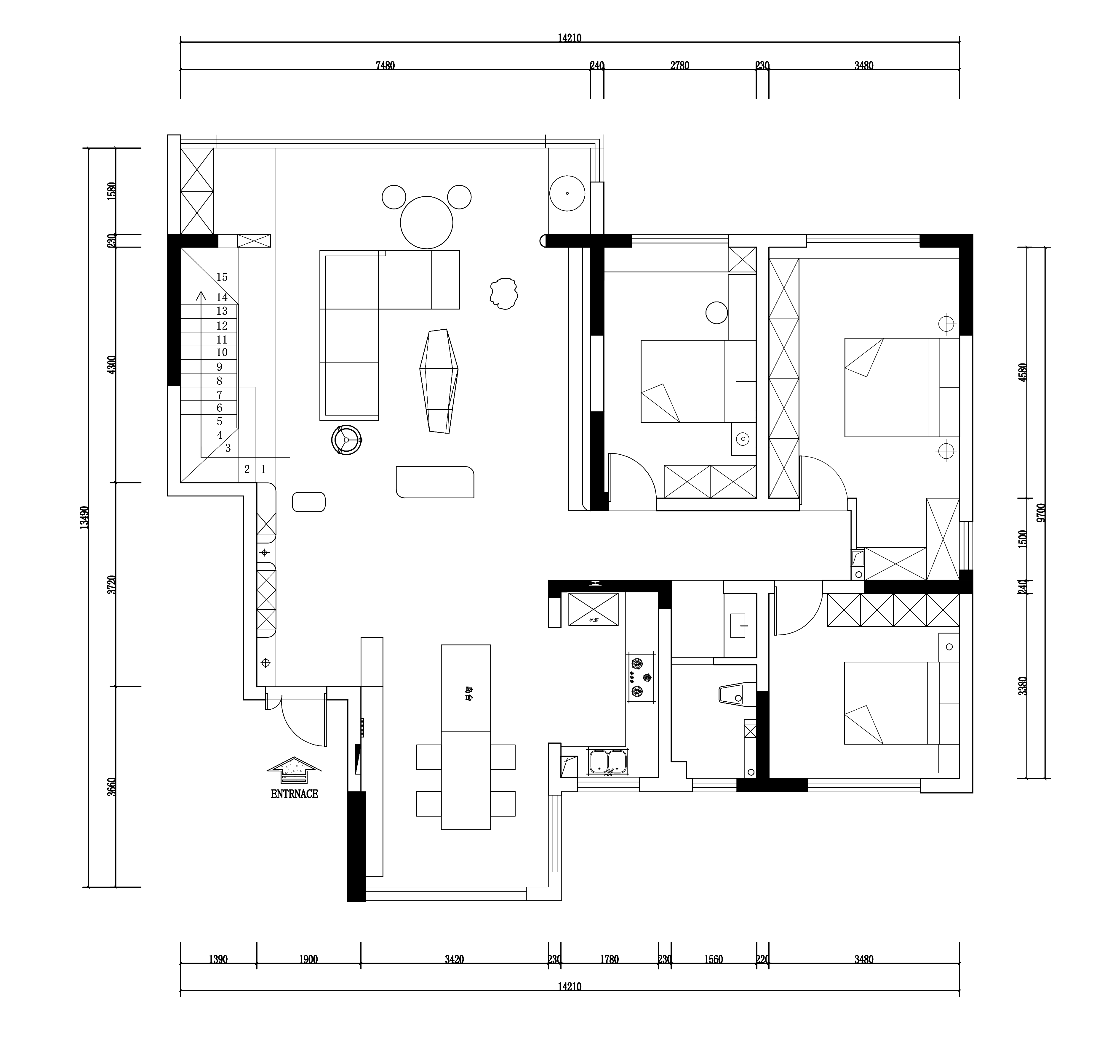
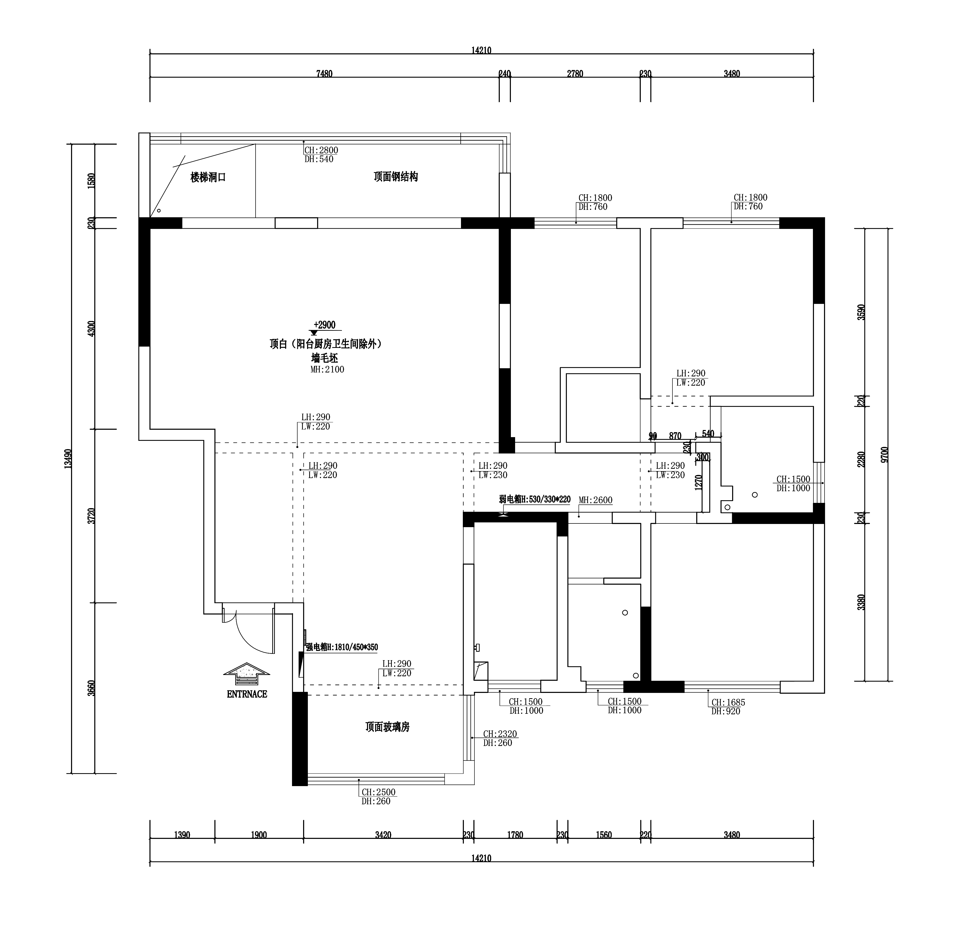
空间布局:步入门厅,复古风情与意式轻奢的低语便温柔包裹而来。全屋以温润奶油色为基调,深沉而富有质感的深胡桃木色勾勒轮廓,沉稳黑色作为点睛之笔穿插其间,高贵的大理石纹理则如乐章中的华彩,恰到好处地点缀于墙面、岛台,无声诉说着品质。巧妙增设的玄关,为归家铺垫满满的仪式感。大胆改造将原竖厅格局打通为阔朗大横厅,充沛的自然光肆意流淌,视野豁然开朗。
叠级楼梯的交错呈现动态与流动之感。以错落有致的层级堆叠,丰富空间层次感。
在复式空间的垂直叙事中,叠级楼梯的转折如同律动的音符。而玻璃扶手,恰是这段乐章中最灵动的休止符,它消解体量的压迫感,将台阶转化为“悬浮的几何叠片”。
客厅区域,浅色系地毯点缀几何图案,托起线条硬朗的异形小几和黑色皮质沙发,刚柔并济,奠定沉稳却不压抑的基调。采用3米主沙发+单人沙发+单椅+矮凳的环形摆放方式,视觉围合、情绪也围合,人与人之间的距离自然被拉近。环绕式单椅、单人沙发则形成多点式对坐结构,无论是三五好友围炉夜话,还是家人之间的静坐交谈,彼此都能自然产生视线交汇和身体上的松弛感。
最终的客厅呈现出一种克制却不冷感、沉静但不疏离的空间氛围。它保留了男主人的利落审美,也回应了女主人对自然温度的期待。整体软装搭配在深色基底中缓缓铺展,将自然侘寂融入意式中古的硬朗中,营造松弛而有力量的居家氛围
次卧沉浸于奶油色柔光中,床头焦糖艺术漆半墙如倾泻的枫糖浆,与暖白基调碰撞出甜蜜层次。错落悬挑的置物架,在墙面谱写轻盈韵律。
-
设计选材:意式轻中古风格之所以成为年轻人的心头好。是对“复杂性简化、历史感活化”的审美趋势,通过设计语言来平衡空间的功能与情感,通过材质与色彩传递理想家的样子,最终成为承载文化认同与情绪价值的空间载体。意式轻中古风格不仅是家居选择,更是年轻人对理想生活的具象化诠释--既追求外在的精致,也重视内在的情感共鸣。
-
用户体验:房子可以标准化,设计可以标准化,但是生活无法标准化。不因当下的风格趋势而一昧追求意式极简,大胆打破次元壁,加入中古家具作为特殊符号,重新雕刻空间,赋予它更多可能性,也给予业主更多美的享受。
0
0

认证 · 让您身份增值