摩卡时代城


作品说明
- 项目类型:住宅公寓
- 项目地点:临沂市
- 建筑面积:160.0000㎡
- 项目造价:70.0000万元
- 主案设计师: 吴敏
- 竣工时间:202505
- 设计机构:广东华浔品味装饰临沂分公司
-
项目定位:意式极简-艺术生活化
在自由意式风靡的时代浪潮中,风格化的定义已经成为掣肘的枷锁,去标签化的自由应用则代表着更具可见性的未来。跳脱开寻常思维下的设计,更注重感官的享受主义,在千篇一律的水泥森林中,绽放神秘耀眼的鎏金花束。
家给予我们安全感和归属感,无论外面的世界多么喧嚣,回到家里,我们可以放下所有的防备,享受真正的放松和自由。这可能是意式空间的真正“意”义所在......
无论在何种门类的艺术中,要创造一个自己的世界都是需要勇气的。——乔治亚.奥基夫
-
空间意境:艺术并非模仿生活,而是生活在模仿艺术。——奥斯卡•王尔德
每一个家,都是独一无二的故事集。更是一个能让家庭成员都获取身心舒适的港湾,是心灵的追寻之地,是驻留的,被赋予了更加开放、多元且丰富的定义。享受独处时的宁静,也有分享时的快乐。
-
空间布局:本案业主是非常有爱的一家4口,儿子很大,女儿很小。因此在设计上需要平衡亲密与独立的关系,他们希望空间是尽可能敞开的,自由的,不被拘束并且是整洁的,不但能够追随成长的脚步,亦能承载日常的欢声笑语。
原户型的厨房和餐厅逼仄且相对独立、封闭,空间感差,现方案打破原有空间格局,书房开放、南北阳台开放、厨房开放、餐厅开放,让有限的面积释放出最大的空间感。餐厨空间和大横厅纵向相通,形成了一体化的用餐、咖啡、吧台、社交区域;可聚餐、亲子,共同烹饪,面向大横厅的开放餐厨设计形式形成空间上的互融,厨房将不再是以单幕剧上演。
通过设计上的小巧思将深度需要60公分的冰箱完全嵌入和水吧柜形成整体。模糊书吧与会餐厅的物理界限,通过材质与光线的延续性创造整体感,功能一应俱全,纵向贯通的餐厅与客厅,通过属性不同的家具进行区域分界,每一处都精妙之至。完美契合了大平层豪宅客户家庭生活与社交聚会的功能需求。
同时也新增了部分独立区域,比如晾晒洗衣区独立,减少开放式空间最头疼的问题(晾晒对开放空间的整洁度的影响),让开房区得到更好的开放品质。步入客厅,宽阔的尺度赋予空间奢雅纵横的格调,以艺术范的感召力强调了视觉的美学力量。
阳台并入客厅,为客厅注入丰沛的采光,横向拉长纵深感,光影交织下,空间的灵性徘徊于场域之间。仿佛走进了心灵的避风港,让人沉浸在一种难以言喻的宁静与美好之中。
-
设计选材:黑色是包容的颜色,因为接受了所有,所以才能衬托出星星的闪耀
赖于窗外明亮的自然光线,空间大胆地使用大面积黑色压暗内部场景,整个家以深色系为主旋律,采用了相对理性的灰黑,克制的大地摩卡色调,宛如一个静谧的港湾,在城市的喧嚣中独树一帜。运用不同材质,以及不同大理石的纹理特色去赋予场景金光熠熠的璀璨效果,居于其间而不显压抑,反而以黑色的底衬托出细节处美轮美奂的质感。
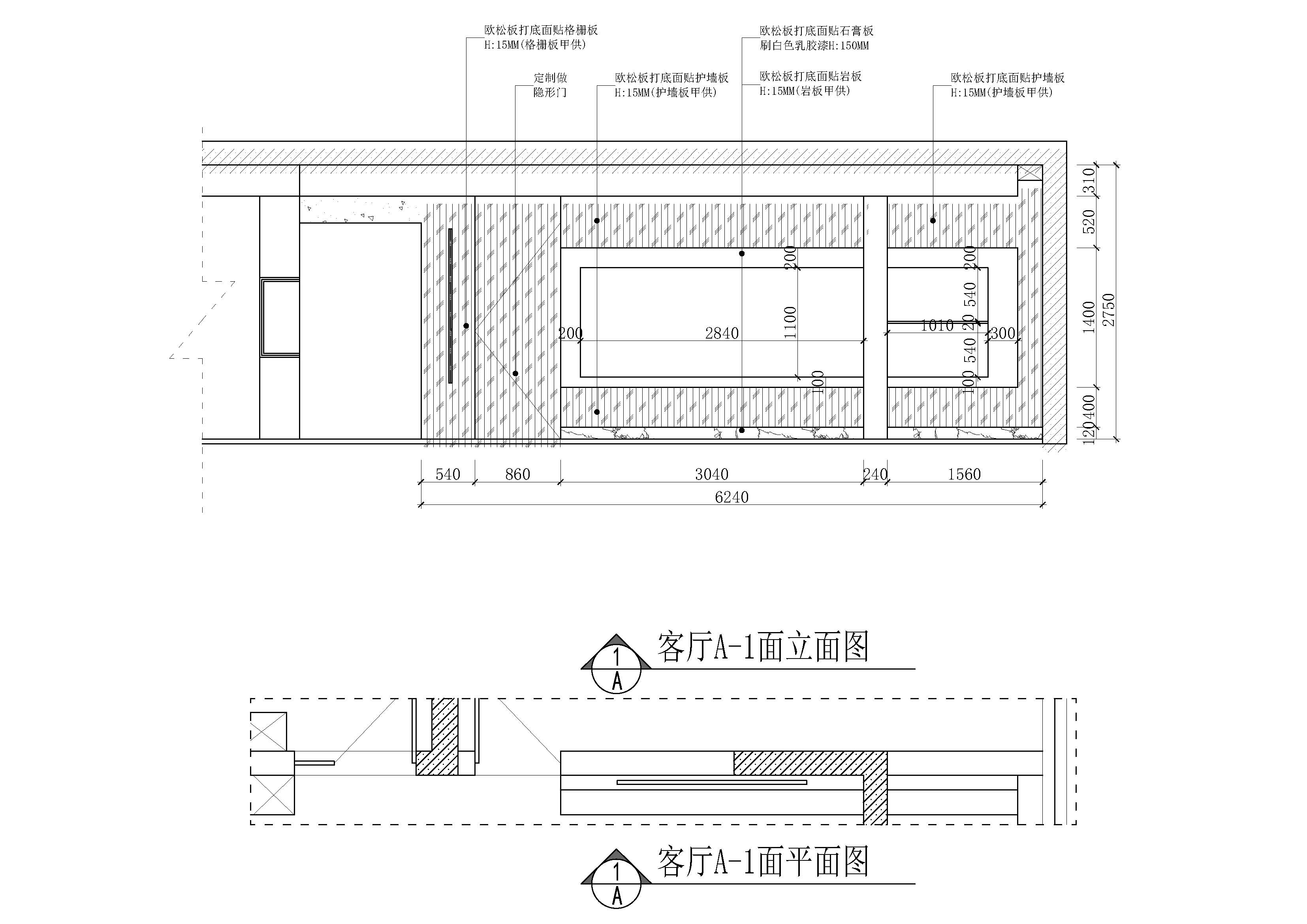
客厅选用模块化的竹节沙发,组合方式灵活,适合交互性公共区域,电视墙采用了嵌入式,藏匿好背后的各种电源线,没有做过多的造型设计。木纹与纯色的碰撞,一深一浅,一浓一淡,每一处细节都经过深思熟虑。客厅是一家人的主场,链接着过往,当下时光与未来畅想,深信家中之物都承载着每个人的归属感与各个时期的记忆,
吊顶大弧曲线型柔和了空间的硬感。丰富的软装元素融入其中,将大胆突破、优雅脱俗的设计理念呼之欲出。空间中采用任何设计手法,都是为了优化居住环境。行走、停留、坐卧间,居于其中的人以平和自在的状态感受舒适。弧形的顶梁,一气呵成的实现了阳台与客厅之间的过渡。连贯的曲线光影下,不同材质交汇组合,一切都被镌刻下时间的印记,独具一种生命力的美感。
主卧套房配之以顶级生活设施,拥有独立化妆间,在繁忙的工作中喧嚣的城市里,为女主人保留一处可以深呼吸的独处小角落。留白处理的睡眠区,干净而雅致,温润的木、天然肌理感的涂料结合触感舒适的床品,别具中和之美,将休憩之所的安宁与舒展打造到了极致。当夜色落下帷幕,四时之景通过大屏玻璃窗,写进居住的时光中。
男孩房简约而又不失功能性的设计,在注重空间品味基调的同时,通过局部红色系点缀,营造多重层次的空间视觉。夜幕降临之时,卧室空间的一盏小台灯缓缓亮起,独处空间升华成疲惫时的自我疗愈形式。
女儿房以白色为基调,于无限清透之中融入一抹萌粉,当阳光洒落,与之交织出朦胧的趣艺。
-
用户体验:意式极简-艺术生活化
在自由意式风靡的时代浪潮中,风格化的定义已经成为掣肘的枷锁,去标签化的自由应用则代表着更具可见性的未来。跳脱开寻常思维下的设计,更注重感官的享受主义,在千篇一律的水泥森林中,绽放神秘耀眼的鎏金花束。
家给予我们安全感和归属感,无论外面的世界多么喧嚣,回到家里,我们可以放下所有的防备,享受真正的放松和自由。这可能是意式空间的真正“意”义所在......

