恒伊美业丹阳店
2
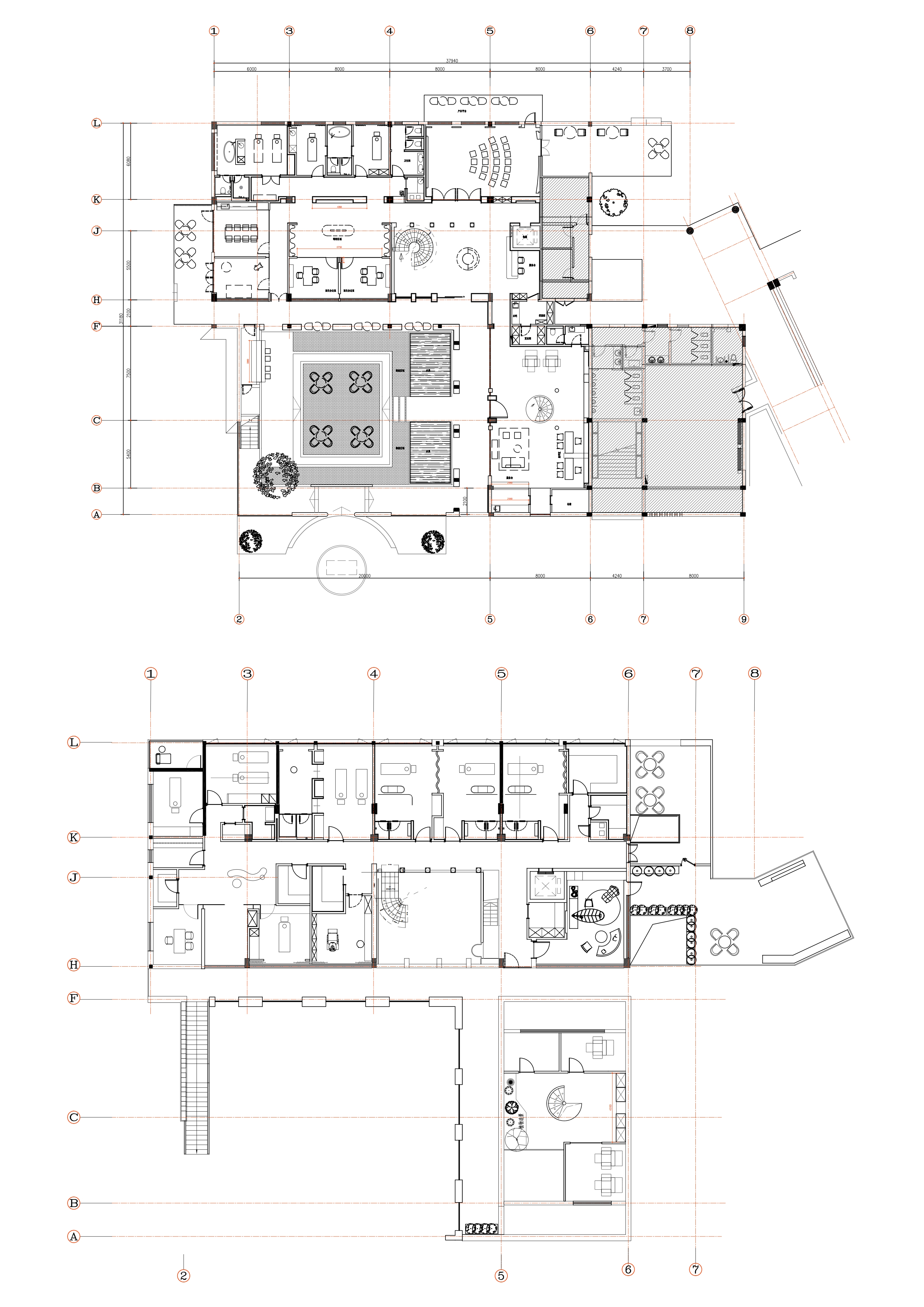
作品说明
- 项目类型:公共
- 项目地点:丹阳市
- 建筑面积:1500㎡
- 项目造价:800万元
- 主案设计师: 南洋
- 竣工时间:2025 年
0
0

认证 · 让您身份增值