金堂奖
金堂奖简介
参赛指南
参赛入口
委托报名
参赛记录
设计师V网站
V网站介绍
V网热度榜
作品展示
秒景AI设计
进入AI设计
操作指南
开通会员
* 不支持7天无理由退货
了解更多
五大会员回报
一、五种秒生图 · 让您秒速谈单
文生图、全屋设计、线稿变精装、毛坯变精装、旧房翻新
——自研Ai、前期提案0成本,以图锁客、签单神器
二、秒生爆款文案 · 让您轻松日更
Ai秒生小红书爆款文案、专业级参赛文案
三、小程序分发 · 让您直达业主
V网站小程序支持多平台分享、高效引流
四、个人主页 · 让您专属展示
个人作品专属展示,设计师私属商务名片
五、红
认证 · 让您身份增值
“行业奥斯卡”金堂奖加
认证,让您增值
限时优惠,免费试用3天
金堂奖会员
¥
399
/
年
¥880
终身会员2980元(不限年份、永久使用)
在线支付
在线支付安全认证
安全可靠
您的信息将完全加密
即买即用
享受更多优质会员服务
应付金额:
¥
399
已扫码
请在手机上完成支付
点击刷新
请用微信扫码支付
支付即同意并接受
《金堂奖个人订阅服务协议》
恭喜,您已成功开通金堂奖VIP会员!
会员到期时间:2025-03-10
将于
10
秒后,跳转至
秒景AI设计,
立即跳转
关闭
简介
报名
记录
V网站简介
权益
我的V网站
主页
发布作品
金堂奖
秒景AI
V网站
我的
立即红
认证,享会员五大回报
您免费试用时间已到期,
立即红
认证,享会员五大回报
您的体验仅剩
2天
,立即认证享无限使用!
您的体验仅剩
1天
,立即认证享无限使用!
您的体验仅剩
1小时
,立即认证享无限使用!
立即认证
领取三天试用期
恭喜您成为
金堂奖会员
立享五大回报
会员有效期截止
返回
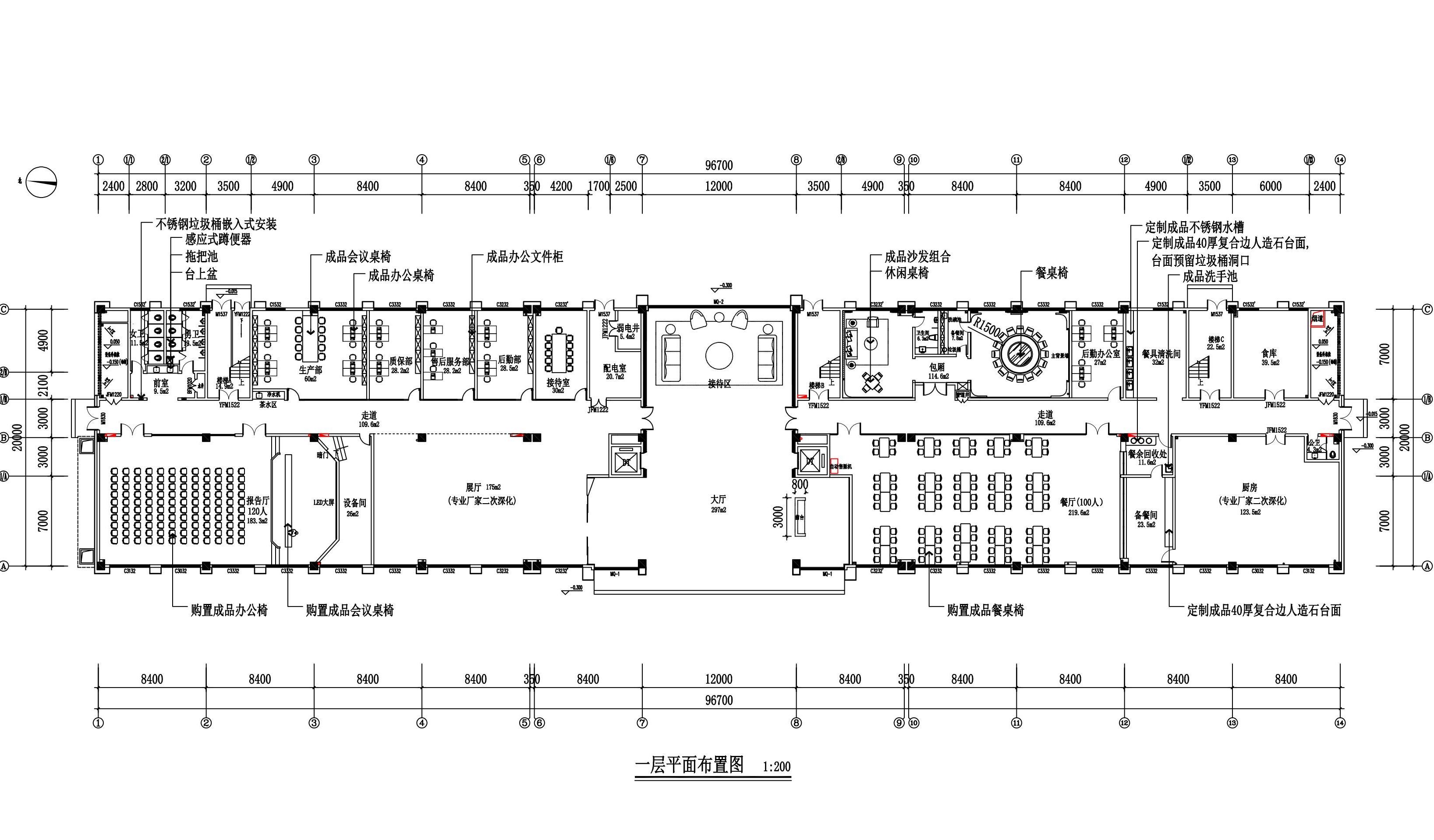
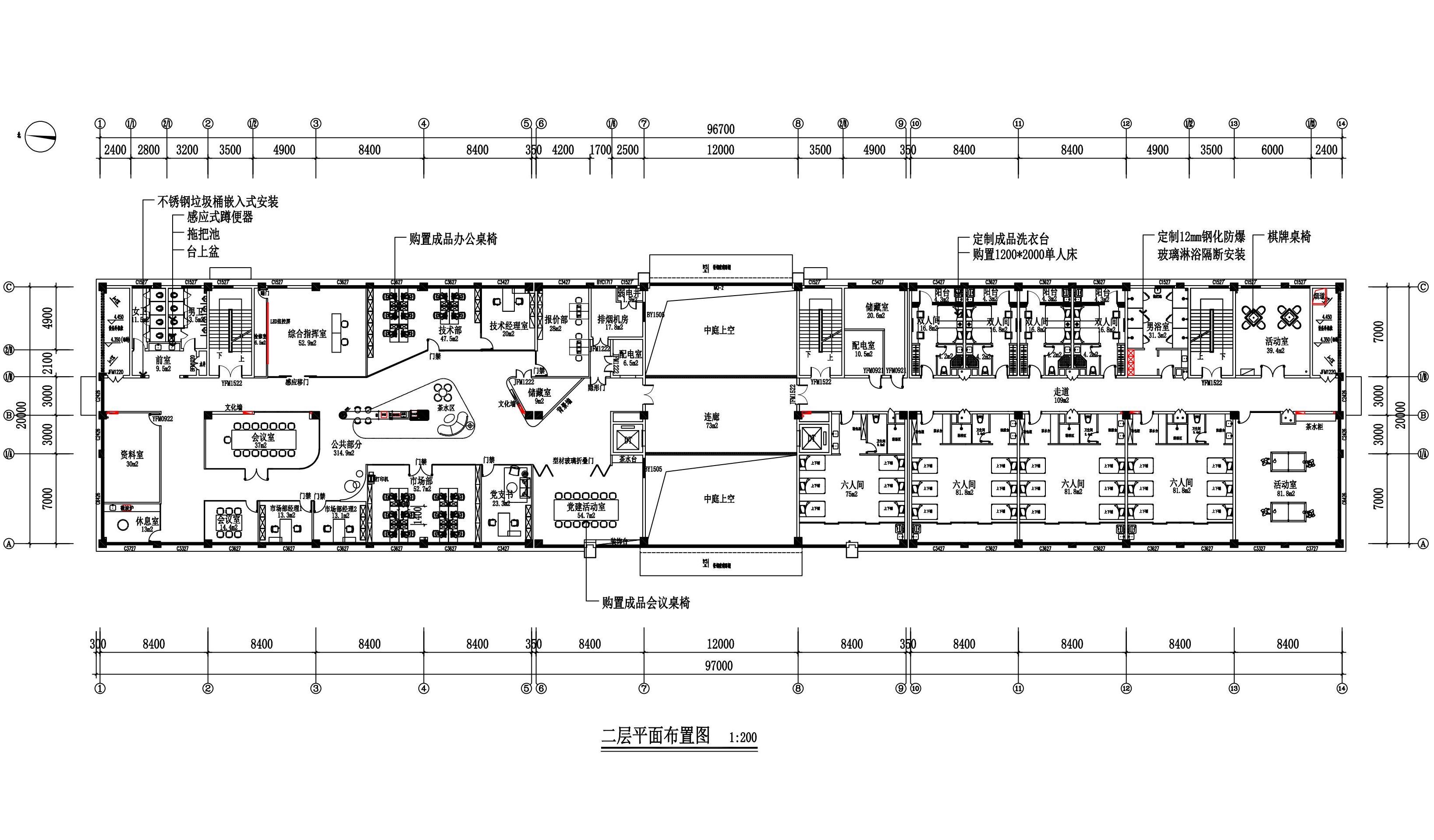
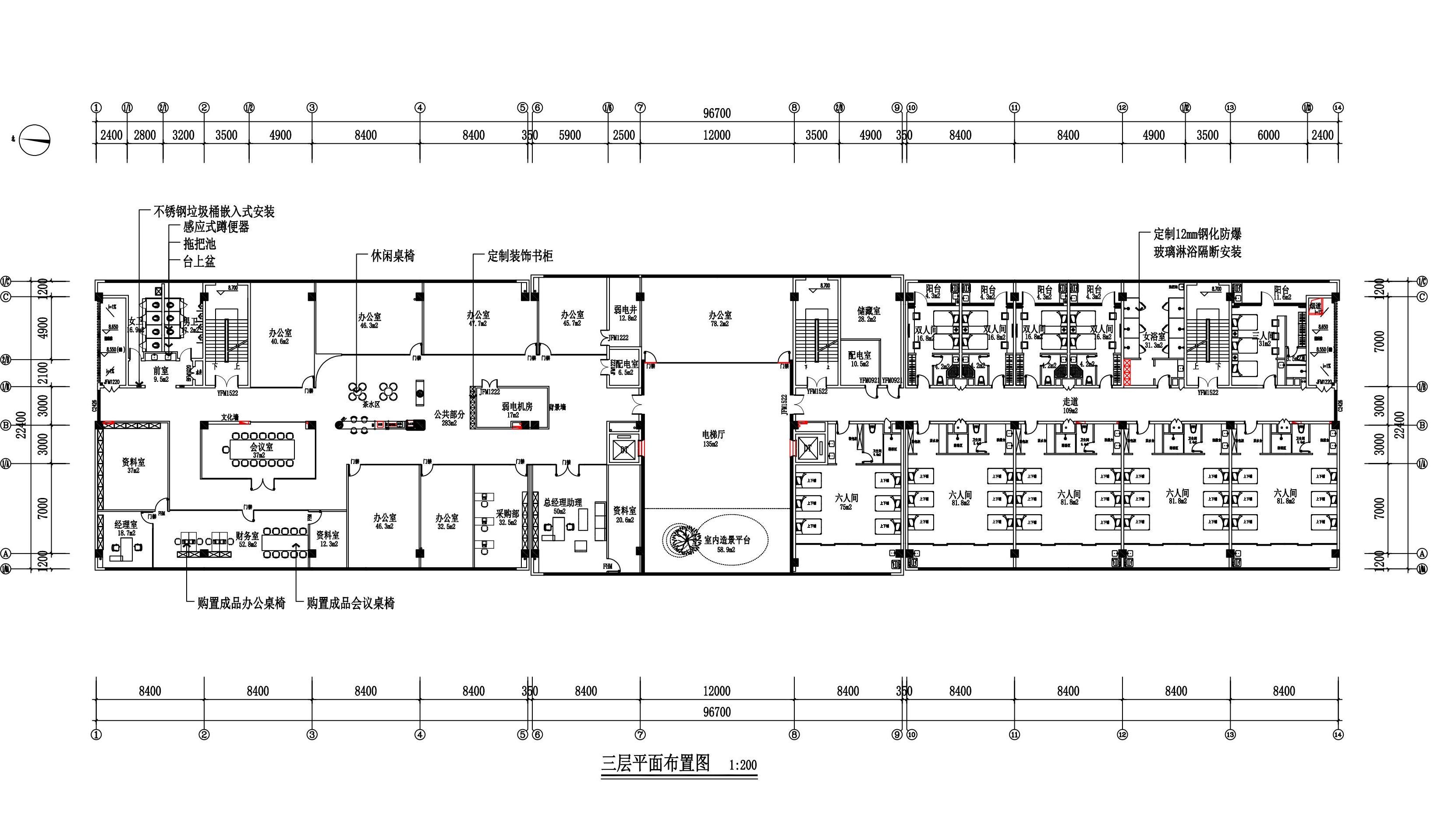
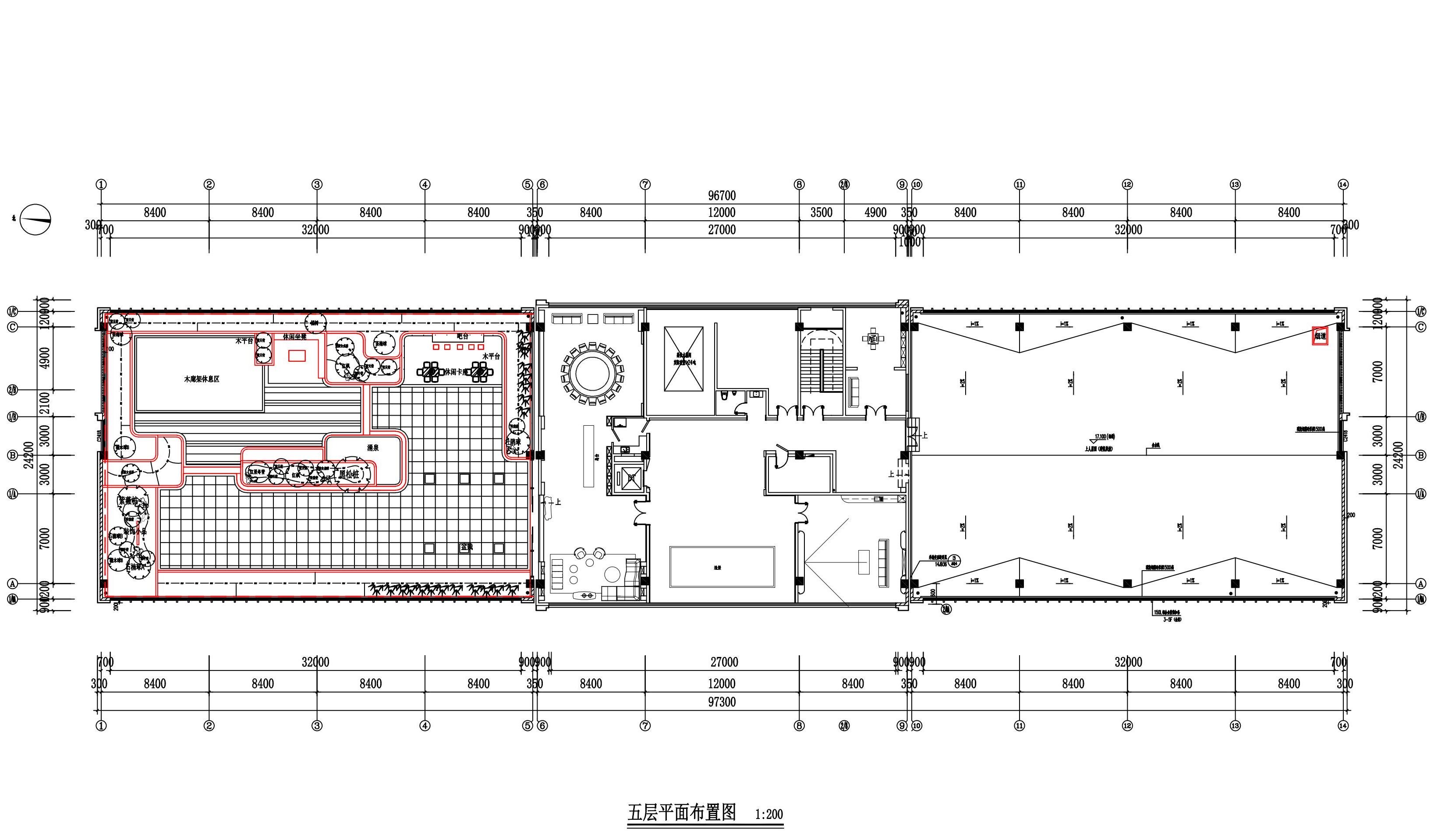
施普瑞电力公司办公楼
84
作品说明
项目类型:办公
项目地点:镇江市
建筑面积:8800㎡
项目造价:2000万元
主案设计师: 南洋
竣工时间:2023
入围作品
项目定位:
建筑是关于幸福的,人们想在一个空间里感觉良好,建筑提供庇护,同时提供舒适。
空间意境:
简洁大方,营造有品质的综合办公环境。
空间布局:
整座大楼内层的空间,都采用了回游动线,摒弃传统单一过道,使空间更灵动。
设计选材:
主要材料采用的防火耐高温材料,会所空间采用原木贴皮木饰面。
用户体验:
整体大楼有气势,简洁大方。内部空间舒适。
0
1
南洋
主理人
私信我
镇江市
工作地点
联系方式
待完善
了解更多
恒大大平层
点击了解更多
天波大平层
点击了解更多
恒伊美业丹阳店
点击了解更多
施普瑞电力公司办公楼
点击了解更多