深圳湾斐瑞酒店改造
167
作品说明
- 项目类型:酒店
- 项目地点:深圳市
- 建筑面积:6200㎡
- 项目造价:3000万元
- 参与设计师:曾冠生(主创)、陈春建、朱梓坚、罗文国、林白、禹淼
- 竣工时间:2024年10月
- 设计机构:墨照建筑设计事务所
票数 : 0
-
项目定位:酒店东侧的湿地公园是深圳海岸线南扩后珍贵的城市地貌记忆。它与邻近的世界之窗公园构成酒店宝贵的自然景观资源,南向的深圳湾超级总部在未来将成为酒店外部的一道亮丽城市风景线。自城市主干道转入酒店支路,高大小叶榄仁列植成荫,都市喧嚣被逐渐隔绝。因此,我们希望将场地外部自然脉络引入空间体验,营造惬意舒心的氛围,于喧嚣中辟一方静谧桃源。
-
空间意境:改造前的建筑立面是普通格子瓷砖,建筑形体有不规则的凹凸棱角,整体显得凌乱而怪异。为回应业主轻改造的诉求,设计通过新增格子框架,以极简几何语言包裹原有建筑,形成一个完整的外观形态。嫣红色的选用,使酒店在一片绿色环境中跳脱出来,成为视觉焦点。设计在格子框架上还点缀了穿孔波纹板,波纹的结构除了加强穿孔板的强度之外,其曲面造型也柔化了框架硬朗的几何线条。
为了突出酒店大堂,设计通过空间及景观的营造和丰富的立面材料来打造具有品质的入口形象。大悬挑的不锈钢雨棚满足落客功能的同时,创造出极具视觉张力的大堂入口。在紧凑有限的空间内,设计通过造景与建筑立面的结合,为入口营造雅致的空间体验。 -
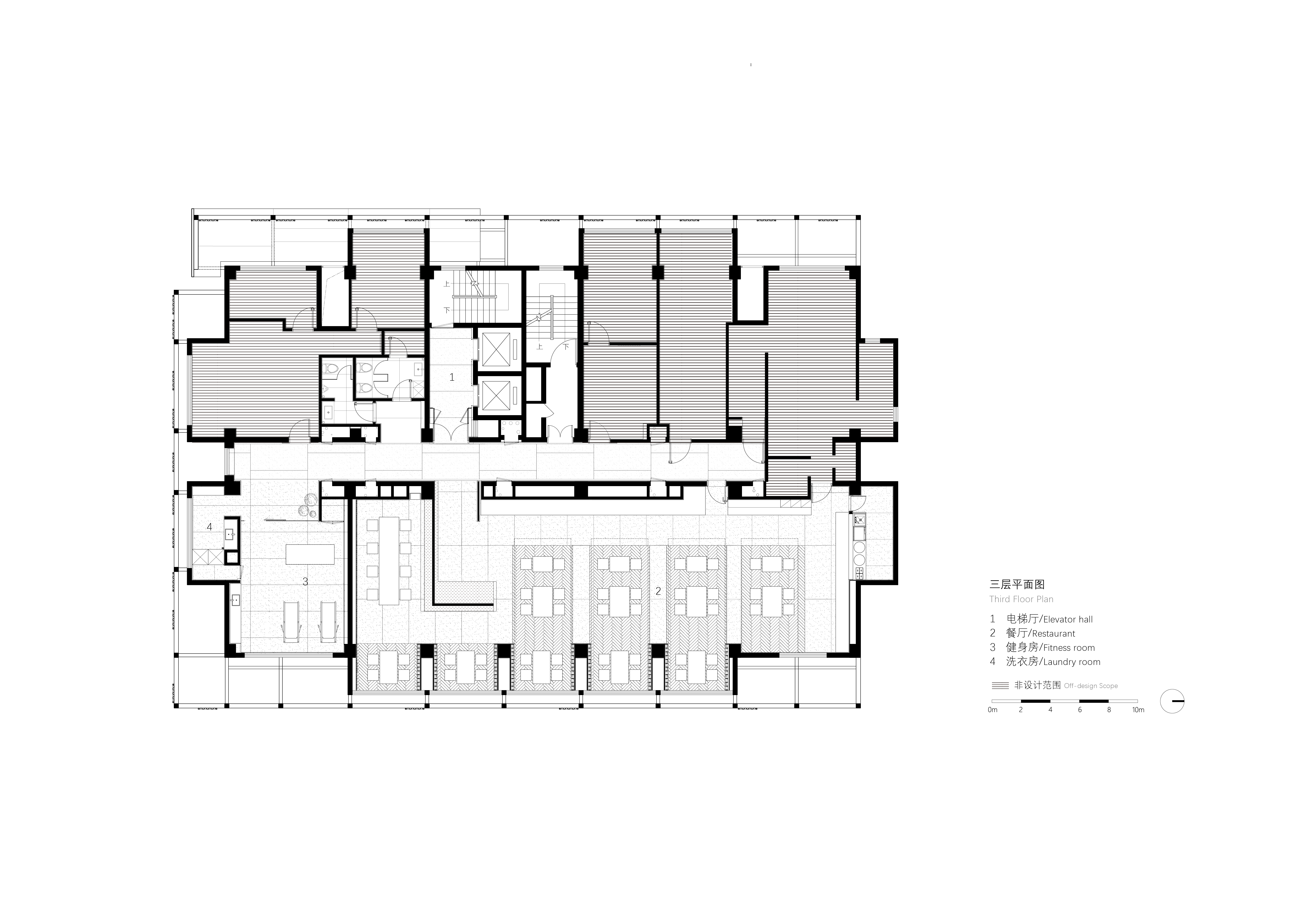
空间布局:受限于产权条件,首层大堂空间局促且直面西晒与杂乱街景。设计采用先抑后扬的手法:入口面以实墙隔绝干扰,仅留通透玻璃入口,并借南向窄庭引光造景。客人进入后,视线被引向纯净边庭,空间层层递进。超长前台成为核心视觉元素并增强空间纵深感,化解小空间的局促感。
餐厅同样运用了先抑后扬的设计手法,客人从昏暗电梯厅步入餐厅前厅,利用悬挂水磨石墙底部引光,客人随之转入明亮就餐区,窗外的树林景观从而豁然呈现。低矮层高的缺点通过强化梁墙连续感、铺装划分及吊顶限定巧妙化解,并且将大空间切分为不同就餐区。靠窗位置利用实墙划分空间并隐藏柱子形成取景框,同时辅以镂空格栅削弱厚重感。 -
设计选材:玻璃砖墙和方格铝型材不仅丰富了入口材料和形式的变化,也形成小尺度的视觉平衡,其灵感源自于具有传统岭南特色的彩窗及窗花。考虑到大堂看出窗外的效果,带有水纹肌理的玻璃砖墙在南面与通透玻璃间隔布置,呈现出朦胧与清晰画面之间的诗意过渡。
餐厅的室内色彩延续建筑外立面的色系,窗边的天花吊顶用不均匀的嫣红水泥纹路质感来衬托窗外的自然风景。同时用深色木格栅墙面辅以搭配,打造沉稳静谧的就餐氛围。清晨东向阳光筛落树影,营造温暖明亮的早餐氛围。随着一天中时间和光线的变化,色温由暖转中性,也顺应着早餐至下午茶的功能转换。 -
用户体验:在有限的空间里,设计利用先抑后扬以及借景的手法为游客营造了丰富的空间体验,并用质朴典雅的材料烘托宁静惬意的氛围,让游客能够远离城市喧嚣,感受日常的松弛与愉悦。
0
0

认证 · 让您身份增值