于趣味至中慢生活
138
作品说明
- 项目类型:别墅
- 项目地点:资阳市
- 建筑面积:1140㎡
- 项目造价:500万元
- 主案设计师: 杜文君
- 参与设计师:杜文君
- 竣工时间:2025年4月
- 设计机构:瀚唐空间设计
-
项目定位:以简约雅致的手法
对家进行重新构想让空间展现摩登之感的同时迸发出精神力量 -
空间意境:人与空间互动空间与时间对话纯粹 当代 灵动
-
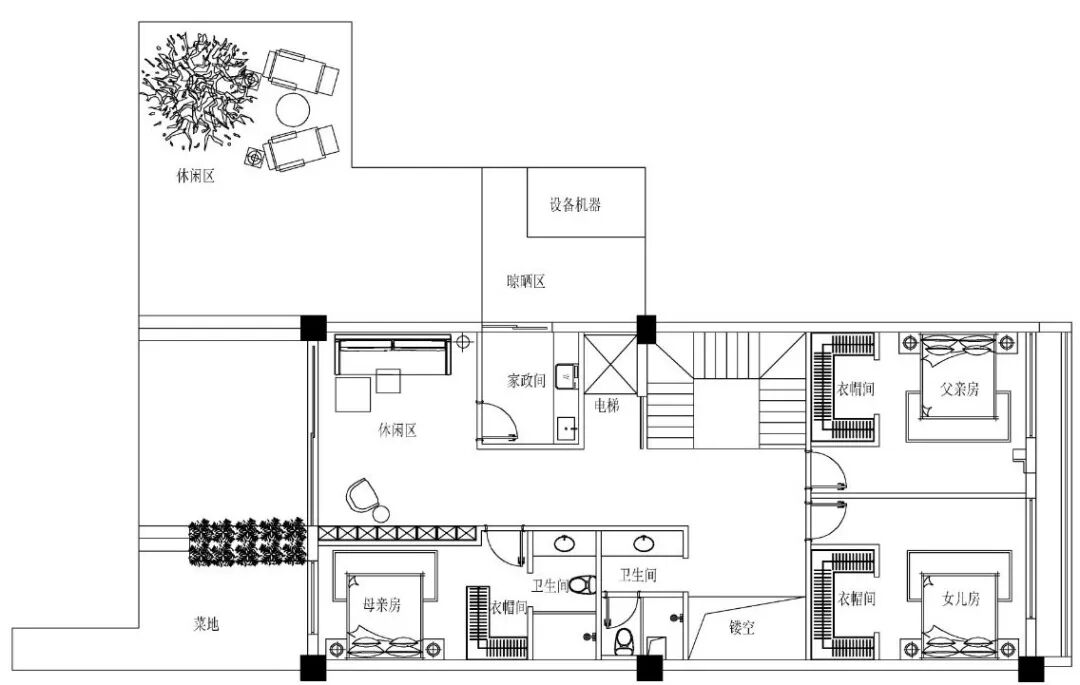
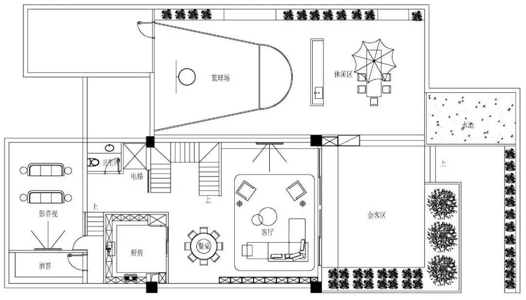
空间布局:公共区域被尽可能地被“打开”,动线变得更为开阔通透,也方便家人日常在其中穿行
-
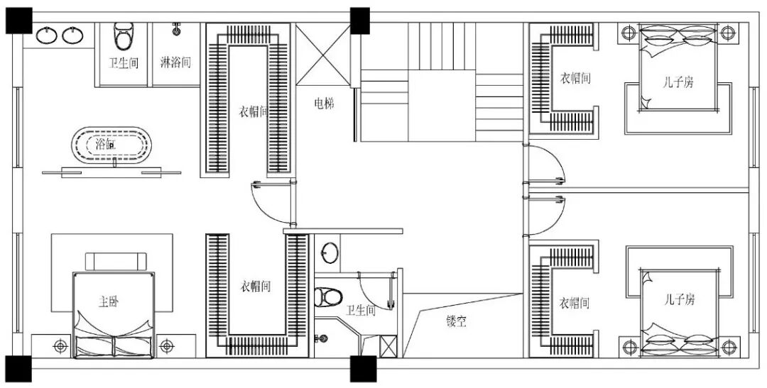
设计选材:心挑选的浅色胡桃木定制家具和整屋的黑白色相融合,空间被赋予了开放、优雅、宁静的特质。
-
用户体验:娱乐K歌、沉浸观影、品酒、嬉戏打闹……多元的生活方式,在有限空间内构建无界社交场。
0
0

认证 · 让您身份增值