-
项目定位:设计在品牌基因得解读下,汲取“隐”的概念。
-
空间意境:我们将立面内退,采用东方语境下庭院的方式作为连接内部和社区街道之间灰空间,亭廊引导我们视线的同时我们采用游园的动线拉长客人进入的动线,增强其体验感从而形成场域与情绪的缓慢舒展,塑造进入后的松弛感。
-
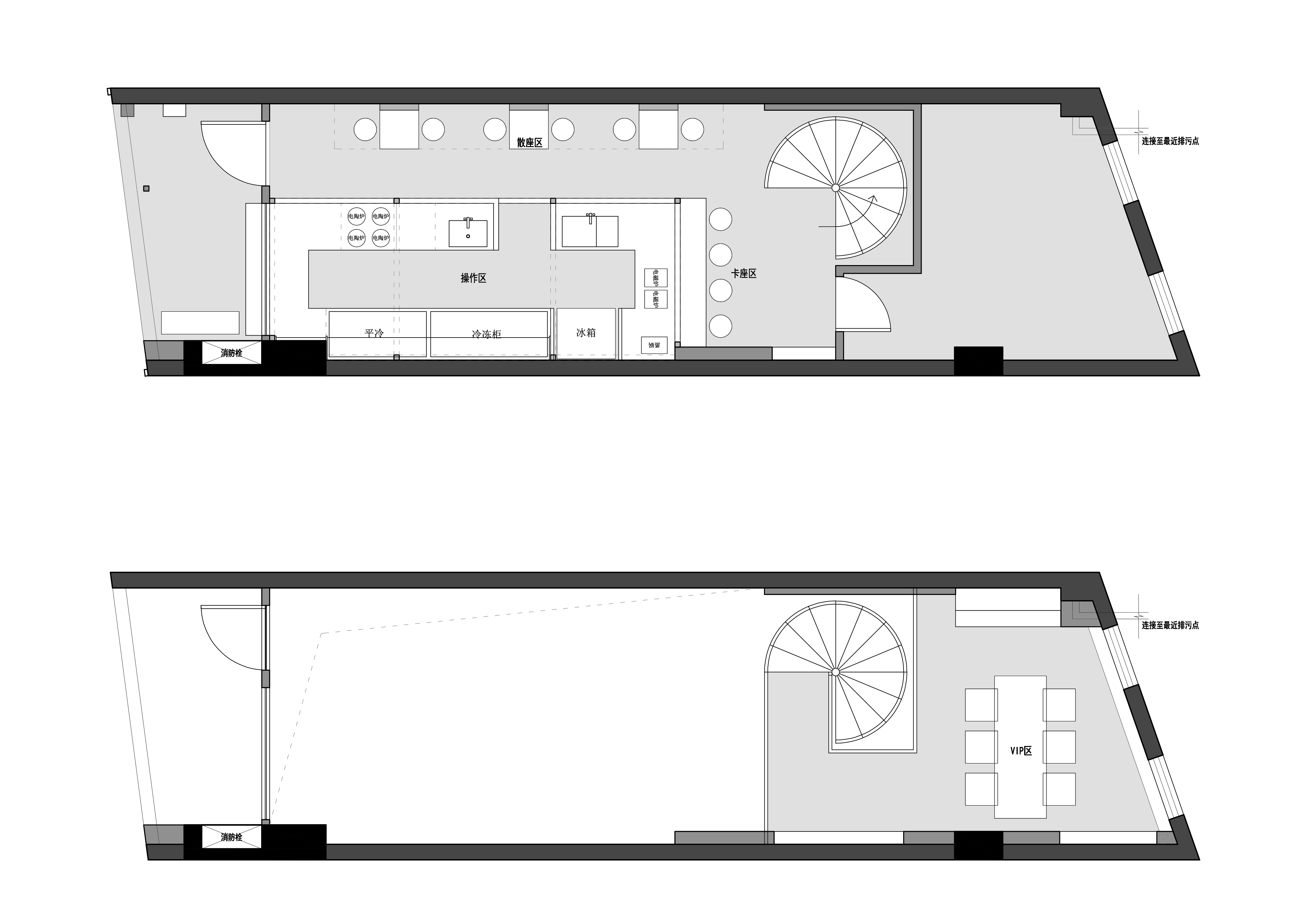
空间布局:我们刻意将核心操作区前置,营造忙碌互动的场景。同时用屋檐的形式降低客人的视觉,增强松弛感和互动性。两层空间的设定也满足了委托人后期举办小型沙龙的可能性。同时镜面包裹楼梯下,放大空间的同时也为空间制造了很多趣味性。
-
设计选材:我们采用风蚀已久但肌理依旧保存完整的老木板铺设地面,麻石和闽南砖雕铺陈吧台立面,粗粝触感里沉淀着年轮的温度。麻布的布帘,闽南个性的砖雕挂画,恰似旧时光里长出的新鲜诗行。
这里的时间是毛边、温吞的,当阳光洒向老旧的家具,吧台内部热气升起,连影子都生出温暖的包浆。 -
用户体验:装修这么好看,差点忘了自己是来吃糖水的
0
0

认证 · 让您身份增值
6