-
项目定位:立足空间功能需求与使用者生活习惯,构建兼具实用性和情感价值的室内环境。
-
空间意境:打破常用的极简配色,采用大花纹路来配合深色,碰撞出不一样的感觉。
-
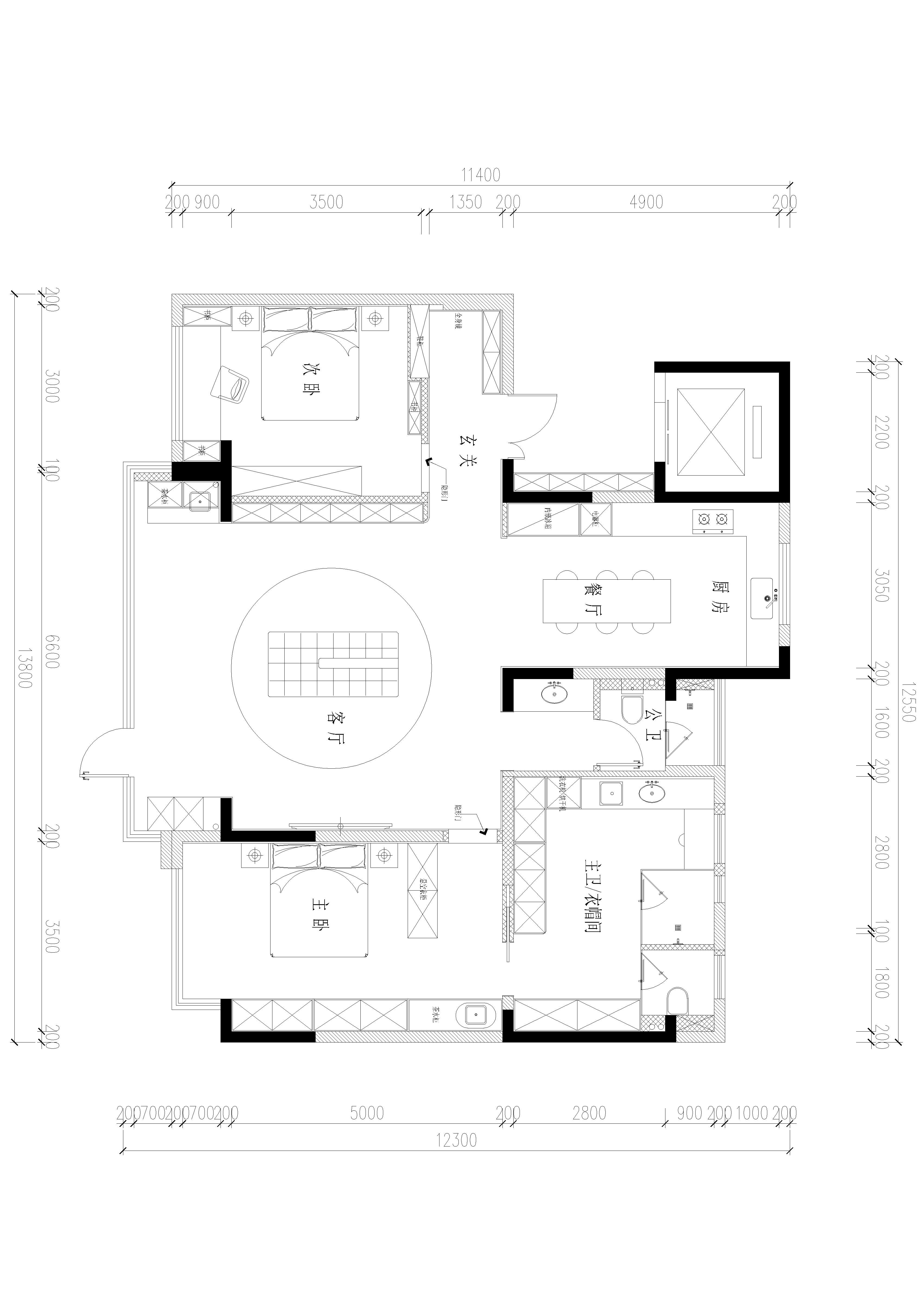
空间布局:空间布局采用开放通透+功能分区的设计逻辑,通过动线优化,材质对比来强化空间层次,色彩以深色为基底,搭配石材和软装提亮氛围。
-
设计选材:选材用了纯实木的木饰面以及岩板。
-
用户体验:大气而不失温馨,整体设计满足日常使用需求,又通过细节处理彰显设计个性,真正实现了功能适配和精神共鸣的双重目标!
0
0

认证 · 让您身份增值
137