颐和春天餐厅
248
作品说明
- 项目类型:餐饮
- 项目地点:杭州市
- 建筑面积:3400㎡
- 项目造价:2000万元
- 主案设计师: 任迪
- 参与设计师:任迪、王康、陈婧思、张自有、田达广、范紫琼、徐辰
- 竣工时间:2025.10
- 设计机构:由走空间设计实验室
-
项目定位:本项目以“时空对话”为核心设计策划理念,将现代艺术表达与东方传统美学进行当代表达与重构,打造一个兼具文化厚度与视觉张力的高端餐饮空间。设计并非对传统形式的简单复刻,而是通过解构东方建筑语汇、提炼自然与人文意象,在当代材料与工艺的支持下,构建一个融合宴饮、社交与文化体验的沉浸式空间,使餐厅成为承载品牌精神与东方生活美学的重要载体。
-
空间意境:空间场景突破传统中式餐厅的符号化表达,以现代艺术装置、几何构成与光影叙事重释东方意境。入口中庭以巨型红色旋转楼梯与垂落雕塑形成强烈视觉锚点,将书画写意的“一笔成势”转化为立体空间语言。水景、花艺、青花瓷等东方意象在镜面与金属材质的映衬下焕发当代气质,形成庄重而灵动、传统而前卫的复合型环境风格。
-
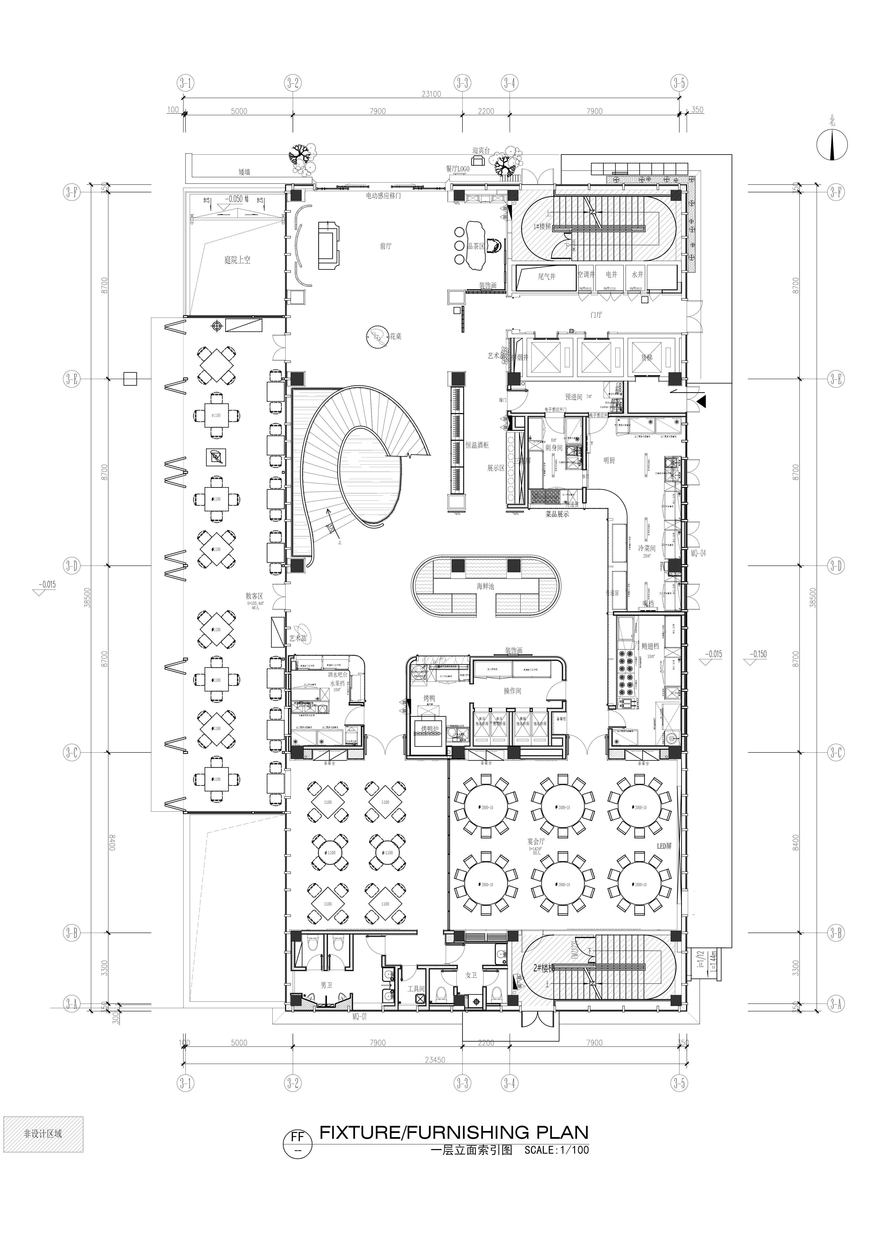
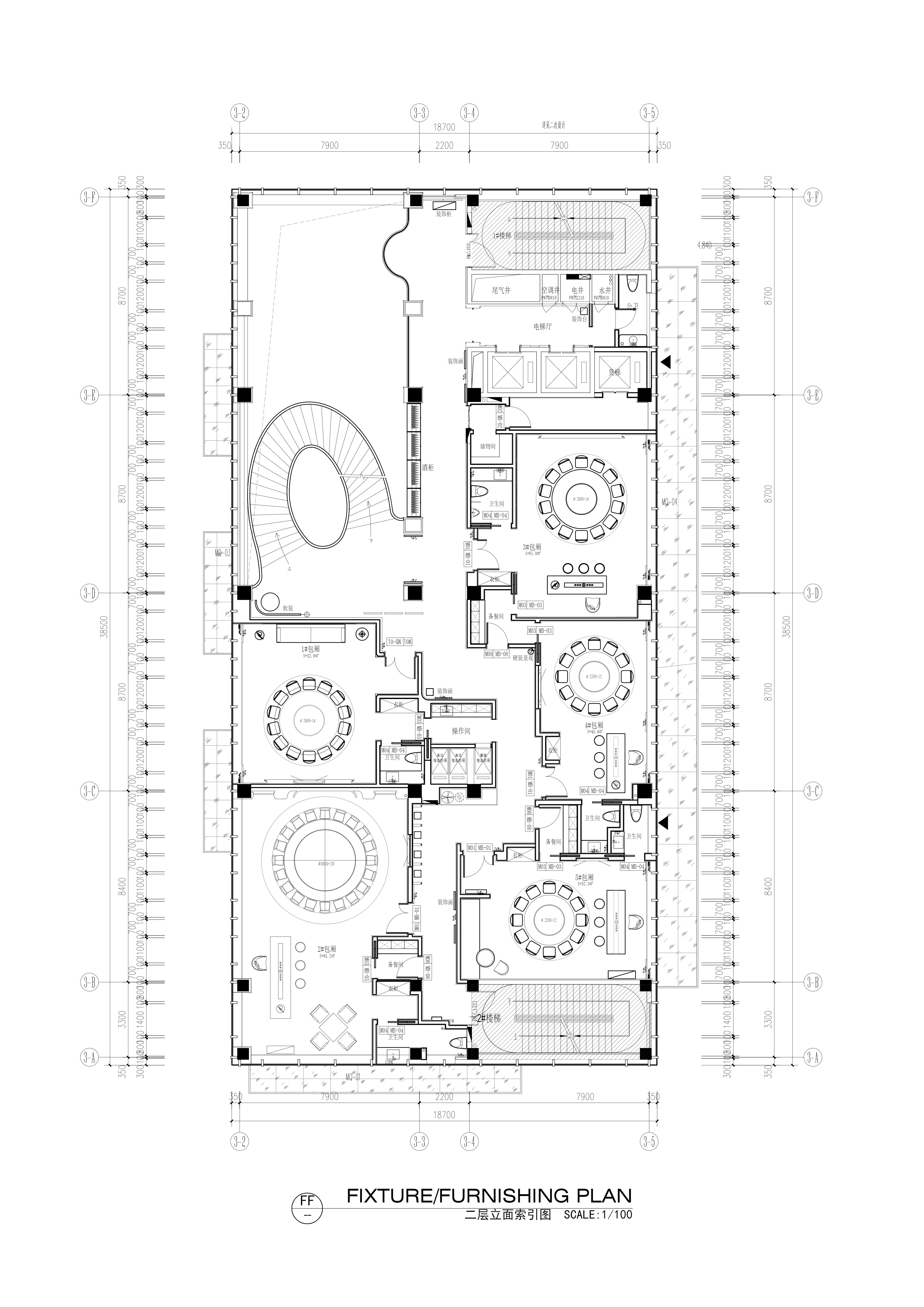
空间布局:空间布局以“空间序列”与“情绪递进”为核心逻辑,通过入口中庭、过渡厅、走廊、包厢及宴会厅的层层展开,引导宾客完成从都市喧嚣到宴饮雅境的心理过渡。旋转楼梯、弧形天花与镜面地面强化纵向与横向的空间张力,打破传统餐饮空间的平铺式布局,使动线本身成为一段具有仪式感与叙事性的空间体验。
-
设计选材:设计在选材上注重耐久性与审美长期价值,广泛运用玻璃、金属、石材、黑白瓷砖等经典且易维护的材料体系,通过比例、质感与光影关系完成空间表达,减少对复杂装饰的依赖。屏风式金属格栅与模块化构件在满足东方意象表达的同时,具备良好的施工效率与后期维护经济性,有效控制整体能耗与运营成本。
-
用户体验:空间投入使用后,为宾客带来强烈而完整的沉浸式体验。入口即形成鲜明记忆点,强化品牌识别度;内部空间在光影、材质与尺度的变化中营造出安静而尊贵的宴饮氛围。宾客在用餐过程中既能感受到东方文化的含蓄与礼序,又能体验现代空间的舒适与开放,整体被评价为“具有文化深度、仪式感强、适合重要宴请与社交活动的高品质餐饮空间”。
0
0

认证 · 让您身份增值