简奢雅筑
149
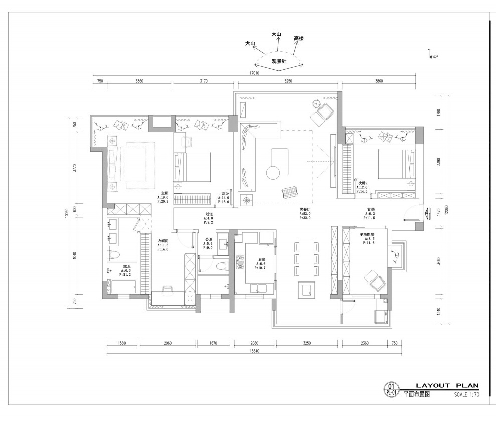
作品说明
- 项目类型:住宅公寓
- 项目地点:珠海市
- 建筑面积:150㎡
- 项目造价:106万元
- 主案设计师: 陈俞任
- 竣工时间:2025年7
-
项目定位:打造高端轻奢的现代大宅居住空间,以“品质生活+功能定制”为核心策划方向,兼顾大平层的空间尺度感与家庭居住的温馨实用性,针对高净值家庭的生活需求,融合社交会客、家庭互动、私密休憩等多元功能,打破传统豪宅仅重奢华的设计局限,实现空间美学与生活体验的深度融合,精准匹配现代高端家庭的居住审美与使用需求。
-
空间意境:空间场景以现代轻奢融合多元风格为创新核心,客厅采用高级灰调搭配大理石与金属线条打造沉稳的社交场景,餐厅以通透柜体与艺术餐桌营造精致的用餐氛围;儿童房用柔和的粉色系与童趣软装打造梦幻成长场景,主卧则以深木色与石材结合塑造静谧的休憩场景,卫浴空间通过极简的石材与玻璃隔断打造高级的洗护场景,各空间风格既统一于现代轻奢的主调,又能适配不同功能场景的氛围表达。
-
空间布局:空间布局采用“动静分区+洄游动线”的创新设计,将客厅、餐厅等公共社交区集中设置在户型核心位置,主卧、儿童房、卫浴等私密休憩区分布在户型两侧,实现动静区域的清晰分隔;公共区域采用开放式布局,客厅与餐厅无缝衔接形成开阔的社交空间,各功能区之间通过洄游动线连接,既提升了空间的通透感与利用率,又让家庭动线更流畅,同时私密区域的独立布局也保障了居住的私密性。
-
设计选材:选材上秉持低碳环保与高端质感结合的创新原则,地面选用大规格通体大理石瓷砖替代天然大理石,减少石材开采的环境影响且成本降低40%,同时兼具耐磨易清洁的特性;墙面采用环保级木饰面与石膏板结合的工艺,搭配可回收的金属装饰线条,软装选用科技布与环保皮质家具,卫浴空间采用防水防潮的岩板材质,既符合低碳环保的设计理念,又通过高性价比的材料组合实现了高端轻奢的空间质感,兼顾了经济性与美观性。
-
用户体验:从多维度提升了用户体验:公共区域的开阔布局满足了家庭聚会与商务会客的双重需求,轻奢的场景设计让社交体验更具品质;儿童房的童趣化设计贴合孩子的成长需求,让孩子拥有专属的玩乐与休憩空间;主卧的静谧布局与舒适软装提升了睡眠体验,卫浴空间的干湿分离与智能设备让洗护流程更便捷;整体空间既满足了高净值家庭对居住品质的追求,又通过人性化的功能设计让日常居住更舒适,实现了美学与实用的双重体验升级。
0
0

认证 · 让您身份增值